linkedin pixel
Tillbaka till sökresultatet
Fullskärm
Fullskärm
Tillbaka till sökresultatet
externalLinkIconAlla bilder
Nyproduktion
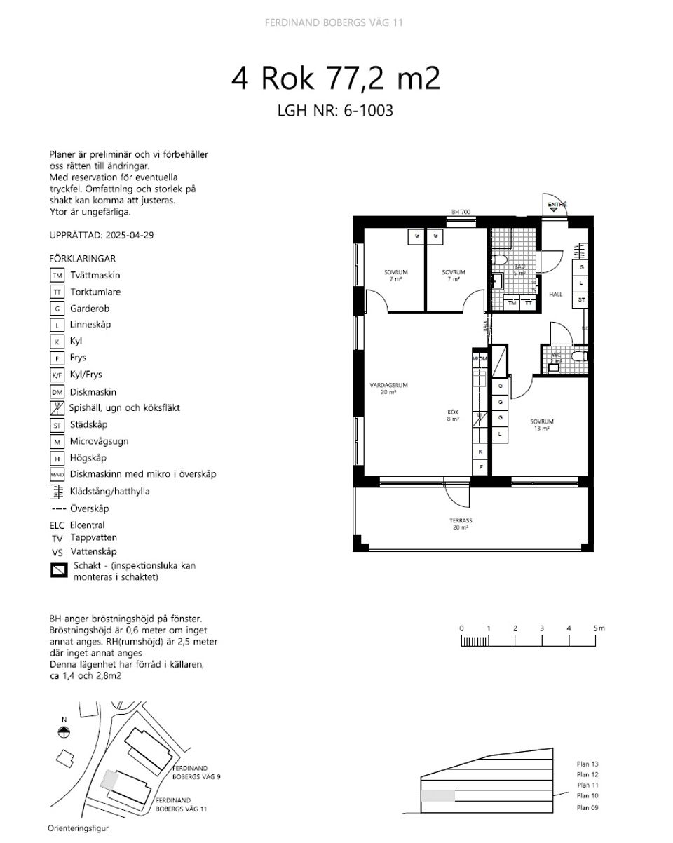
Lägenhet4 rok77

Fakta om bostaden

  • Pris5 995 000 kr
  • BoendetypLägenhet
  • Antal rum4 rok
  • Boyta77
  • UpplåtelseformBostadsrätt
  • Kvadratmeterpris (kr/m²) 77 857 kr/m²
  • Byggnadsår2025
  • Dagar på Boneoapril 2025
  • Våning 1 av 4
  • HissJa
  • Avgift till föreningen5 711 kr/mån

Beskrivning

VÄLKOMMEN PÅ VISNING AV GRANINGE STRAND!
Visning av projektet kommer att ske i Bobergska villan som är den vita villan i området. Skyltar finns på plats. Boka er gärna nedan under visningsknappen.

Nyproducerad gavellägenhet i det natursköna Graninge Strand, Saltsjö-Boo. Med en boarea på 77 kvadratmeter erbjuder denna bostad ett modernt och bekvämt boende nära havet. Lägenheten ligger på första våningen och har en ljus och luftig öppen planlösning, perfekt för sociala tillställningar och familjeliv.

Bostaden har tre sovrum, inklusive ett rymligt master bedroom med gott om förvaring. För ökad funktionalitet finns både ett badrum och en gäst-wc. Den stora terrassen i sydvästläge bjuder på generöst med sol och är perfekt för avkoppling eller umgänge. Förråd i källaren för extra förvaring.

Som en del av ett +55 boende, erbjuder Graninge Strand ett lugnt och naturnära område med hög standard på bostäderna. Här finns även tillgång till garage samt cykelparkering både inomhus och utomhus.

Övrigt:
Nu planeras det för nästa etapp i Graninge och ytterligare bostadsrättslägenheter. Husen blir en vidareutveckling i samma stil och kvalitét som de befintliga lägenheterna som uppfördes och såldes slut under 2022. Hög bostadsrättsstandard med öppna planlösningar samt stora balkonger och terrasser.
Maskinell utrustning såsom spishäll, ugn i arbetshöjd, mikrovågsugn, diskmaskin, kyl/frys, tvättmaskin och torktumlare.
Nyproduktion
Graninge, Nacka

Ferdinand Bobergs väg 11, lgh 06-1003

Lägenhet4 rok77

Mäklare

banner

Tjänster

Bolån

Räkna på bolån för Ferdinand Bobergs väg 11, lgh 06-1003
nordeaAlltid personlig ränta på ditt bolånRäkna här
Jämför bolån från olika banker!
lanekollPersonlig hjälp hela vägen hem!Räkna direkt!
Bostaden du tittar på matchar med 100 personer i BoneoMatch™

Hur många vill köpa din bostad?

Vi matchar din bostad mot över 500 000 köpsugna personer som går på visningar just nu.

Loading...
Nyproduktion
Graninge, Nacka

Ferdinand Bobergs väg 11, lgh 06-1003

Lägenhet4 rok77

Mäklare