linkedin pixel
Tillbaka till sökresultatet
Fullskärm
Fullskärm
Tillbaka till sökresultatet
externalLinkIconAlla bilder
Nyproduktion
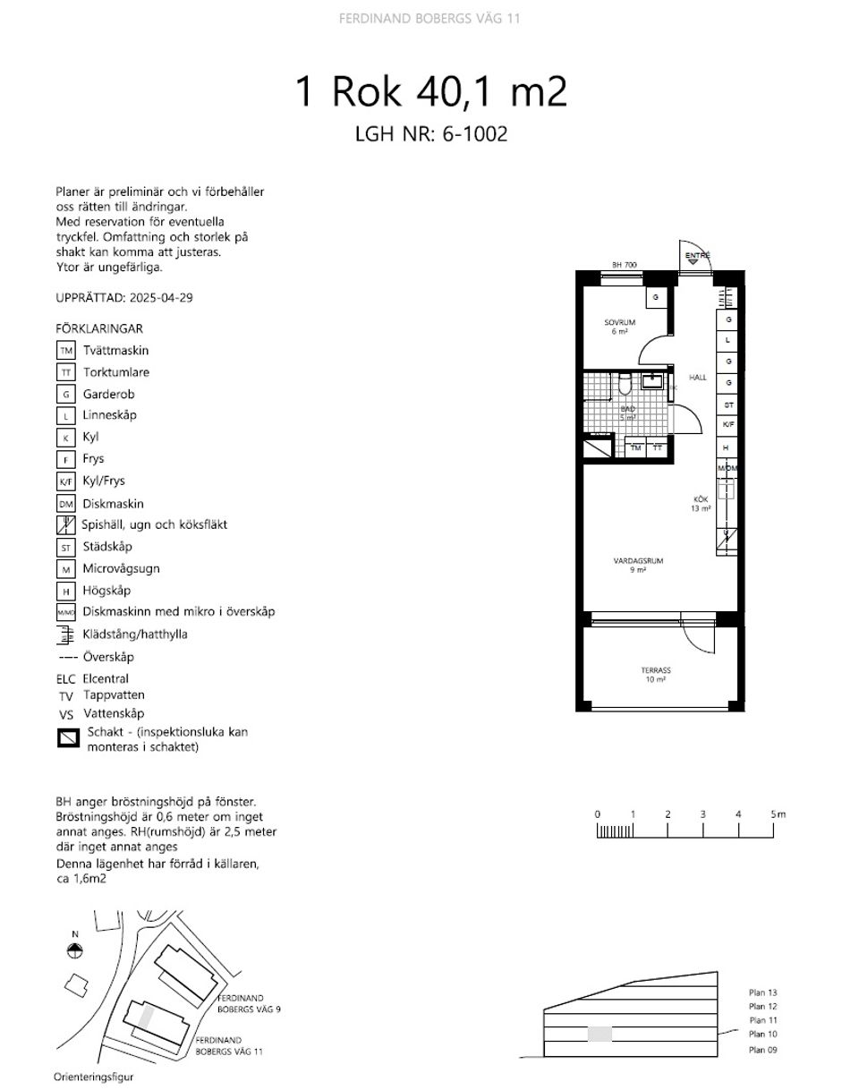
Lägenhet1 rok40

Fakta om bostaden

  • Pris2 945 000 kr
  • BoendetypLägenhet
  • Antal rum1 rok
  • Boyta40
  • UpplåtelseformBostadsrätt
  • Kvadratmeterpris (kr/m²) 73 625 kr/m²
  • Byggnadsår2025
  • Dagar på Boneoapril 2025
  • Våning 1 av 4
  • HissJa
  • Avgift till föreningen2 967 kr/mån

Beskrivning

Välkommen till Graninge Strand, där modern komfort möter natursköna omgivningar. Denna nyproducerade 1,5:a erbjuder en unik boendemiljö med närhet till både skärgårdsnatur och hav. Lägenheten är belägen på första våningen och har en genomtänkt planlösning med öppna ytor mellan kök och vardagsrum. Det lilla sovrummet ger en avskild och rofylld plats för vila.

Med hög standard på utrustning och materialval, är denna bostad perfekt för dig som söker ett stilrent och bekvämt hem. Den generösa terrassen om 10 kvm i sydvästläge blir en naturlig plats för avkoppling och sociala stunder, med solens strålar hela dagen.

Förvaring är lätt ordnad med ett praktiskt förråd i källaren.

Som en del av ett +55 boende, krävs det att någon i hushållet är minst 55 år. Graninge Strand erbjuder en harmonisk livsstil med närhet till både natur och service. Garage och cykelrum finns tillgängligt för enkel vardagspendling.

Övrigt:
Nu planeras det för nästa etapp i Graninge och ytterligare bostadsrättslägenheter. Husen blir en vidareutveckling i samma stil och kvalitét som de befintliga lägenheterna som uppfördes och såldes slut under 2022. Hög bostadsrättsstandard med öppna planlösningar samt stora balkonger och terrasser.
Maskinell utrustning såsom spishäll, ugn i arbetshöjd, mikrovågsugn, diskmaskin, kyl/frys, tvättmaskin och torktumlare.
Nyproduktion
Graninge, Nacka

Ferdinand Bobergs väg 11, lgh 06-1002

Lägenhet1 rok40

Mäklare

banner

Tjänster

Bolån

Räkna på bolån för Ferdinand Bobergs väg 11, lgh 06-1002
nordeaAlltid personlig ränta på ditt bolånRäkna här
Jämför bolån från olika banker!
lanekollPersonlig hjälp hela vägen hem!Räkna direkt!

Hur många vill köpa din bostad?

Med BoneoMatch™ ser du hur många som letar efter en liknande bostad i ditt område.

Läs mer
Loading...
Nyproduktion
Graninge, Nacka

Ferdinand Bobergs väg 11, lgh 06-1002

Lägenhet1 rok40

Mäklare