linkedin pixel
Fullskärm
Fullskärm
På G!
Först på Boneo
Lägenhet3 rok86

Fakta om bostaden

  • Pris2 900 000 kr
  • BoendetypLägenhet
  • Antal rum3 rok
  • Boyta86
  • UpplåtelseformBostadsrätt
  • Kvadratmeterpris (kr/m²) 33 721 kr/m²
  • Byggnadsår2024
  • Våning 2 av 6
  • HissJa
  • Avgift till föreningen5 660 kr/mån

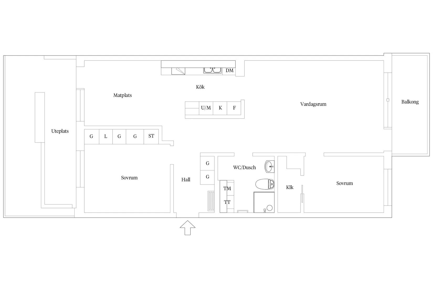
Beskrivning

Med ett eftertraktat cityläge saluförs nu denna sällsynta bostad på mycket populär adress. Här lockar en ytterst väldisponerad planlösning fördelad på 84 kvm om tre rum och kök, med stora sällskapsytor i kombination med härligt ljusinsläpp från generösa fönsterpartier i dubbla väderstreck. Kök, matsal och vardagsrum samsas i en social planlösning med möjlighet för möblering efter eget önskemål. De två sovrummen är väl tilltagna och generösa till storlek, fria från insyn med gott om plats för klädförvaring. Helkaklat badrum som erbjuder bekvämligheter som tvättmaskin och torktumlare. Den inglasade balkongen blir en given favoritplats med sitt uppskattade västerläge. Genomgående för hemmet är väl utvalda materialval och detaljer som tillsammans skapar en tilltalande helhet och en känsla av ett hem av högsta kvalitet. Goda förvaringsmöjligheter erbjuds i lägenheten samt ett källarförråd som tillhör bostaden.

Denna smakfulla trea ligger mitt i hjärtat av centrala Borås. Utanför dörren pulserar stadslivet med prisbelönta restauranger, caféer och shopping. Inom promenadavstånd finns daghem, skolor, gymnasier och utmärkta kommunikationsmöjligheter för att utforska staden. För den som längtar efter grönområden ligger Stadsparken bara runt hörnet. Fastigheten är utformad för funktionalitet och tillgänglighet med hiss från marknivå och ned till garaget.

Välkommen att anmäla ditt intresse!
På G!
Först på Boneo
Borås - Centrum, Borås

Skolgatan 18A

Lägenhet3 rok86

Mäklare

Mäklare

AwardBadge
Årets Mäklarkedja 2024, 2025
Vinnare av Boneo Awards
banner

Tjänster

Bolån

Räkna på bolån för Skolgatan 18A
nordeaAlltid personlig ränta på ditt bolånRäkna här
Jämför bolån från olika banker!
lanekollPersonlig hjälp hela vägen hem!Räkna direkt!
Bostaden du tittar på matchar med 1 284 personer i BoneoMatch™

Hur många vill köpa din bostad?

Vi matchar din bostad mot över 500 000 köpsugna personer som går på visningar just nu.

Loading...
På G!
Först på Boneo
Borås - Centrum, Borås

Skolgatan 18A

Lägenhet3 rok86

Mäklare

Mäklare

AwardBadge
Årets Mäklarkedja 2024, 2025
Vinnare av Boneo Awards