linkedin pixel
Fullskärm
Fullskärm
externalLinkIconAlla bilder
Villa5 rok109 + 941 001 m² tomt

Fakta om bostaden

  • Pris2 995 000 kr
  • BoendetypVilla
  • Antal rum5 rok
  • Boyta109
  • UpplåtelseformFriköpt
  • Biarea94
  • Tomtarea1 001 m²
  • Kvadratmeterpris (kr/m²) 27 477 kr/m²
  • Byggnadsår1959
  • Dagar på Boneojanuari 2026

Beskrivning

Välkommen till en trivsam och välrenoverad villa belägen på en lugn gata, där skogen börjar precis utanför tomtgränsen. Här bor du med naturen som närmsta granne, men med bekvämt avstånd till service och kommunikationer.

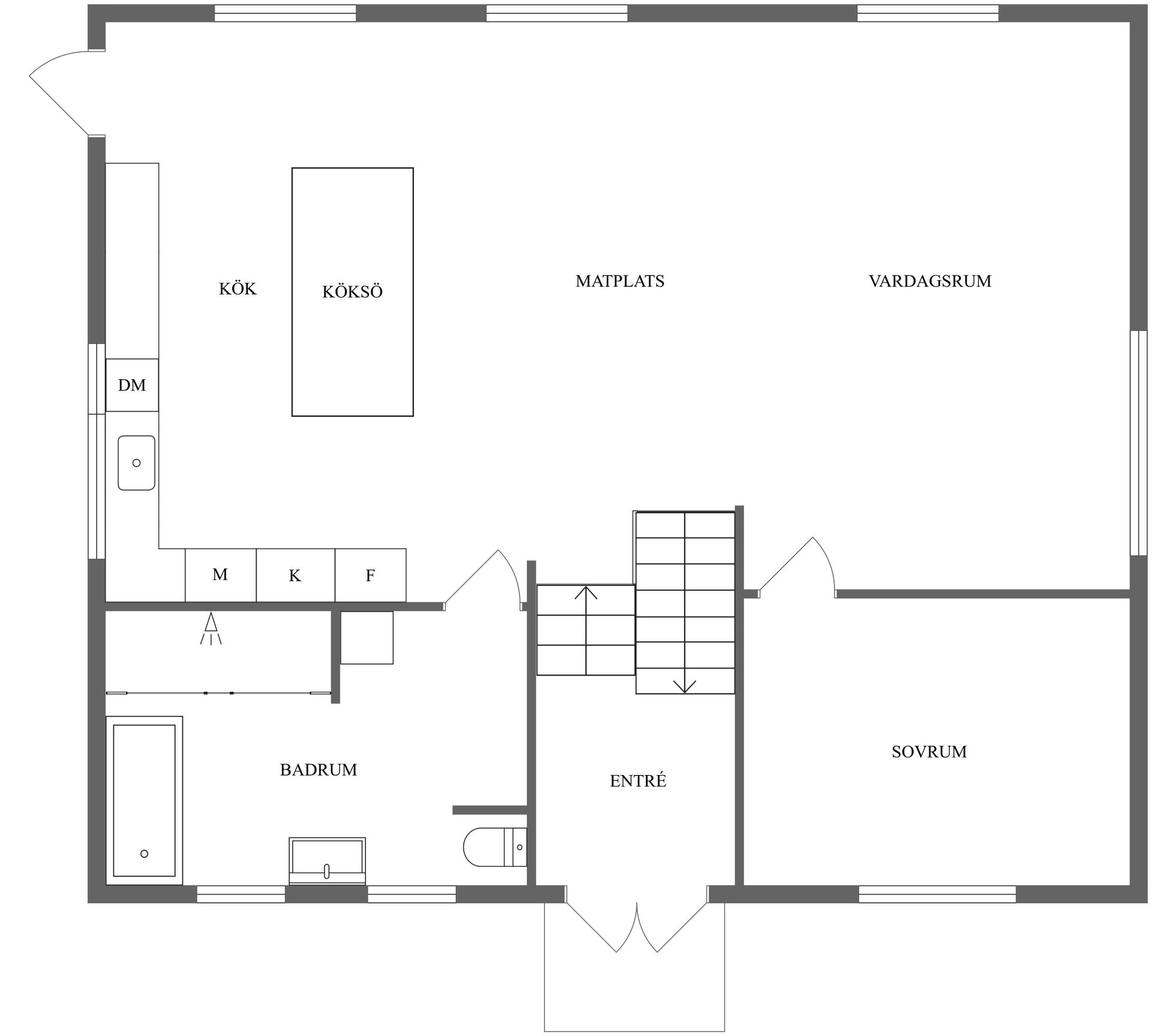
Huset har genomgått en omfattande renovering under de senaste åren - bland annat med ett stilrent kök från 2022 i öppen planlösning mot vardagsrummet. Köksön skapar en naturlig samlingspunkt för familj och vänner, med gott om utrymme för matlagning och umgänge. Även badrummet är helrenoverat 2022 och håller hög standard med moderna materialval.

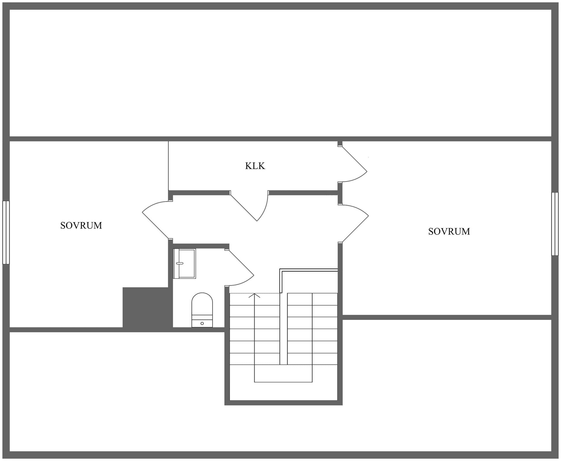
Entréplanet erbjuder generösa sociala ytor, ett av husets fyra sovrum samt direktaccess till den välskötta trädgården. På övre plan finns ytterligare två sovrum, en gäst-wc och gott om förvaringsutrymme via en större klädkammare samt kattvindar längs båda sidor av huset. Källaren rymmer ett stort sovrum, tvättstuga, pannrum, förråd och har dessutom intern access till garaget.

Fastigheten värms upp med energieffektiv bergvärme från Thermia, vilket ger låga driftskostnader - nuvarande ägare har haft en total elförbrukning om cirka 8 283 kWh/år. De flesta fönster byttes under 2022 och taket lades om 2018, vilket gör att du kan flytta in utan att tänka på större underhåll.

Trädgården är lättskött men inbjudande, med altan i soligt söderläge, förråd och fina planteringar. Ett perfekt hem för den som söker både komfort och ett naturnära läge.

Fastigheten ligger i Ringarum - en charmig ort mellan Söderköping och Valdemarsvik. Här finns mataffär, förskola, skola och goda pendlingsmöjligheter till bland annat Norrköping.

Visningar

Ringarum, Valdemarsvik

Lybecksvägen 19

Villa5 rok109 + 941 001 m² tomt

Mäklare

banner

Tjänster

Bolån

Räkna på bolån för Lybecksvägen 19
nordeaAlltid personlig ränta på ditt bolånRäkna här
Jämför bolån från olika banker!
lanekollPersonlig hjälp hela vägen hem!Räkna direkt!

Hur många vill köpa din bostad?

Med BoneoMatch™ ser du hur många som letar efter en liknande bostad i ditt område.

Läs mer
Loading...
Ringarum, Valdemarsvik

Lybecksvägen 19

Villa5 rok109 + 941 001 m² tomt

Mäklare