linkedin pixel
Fullskärm
Fullskärm
externalLinkIconAlla bilder
På G!
Först på Boneo
Lägenhet2 rok42

Fakta om bostaden

  • Pris1 600 000 kr
  • BoendetypLägenhet
  • Antal rum2 rok
  • Boyta42
  • UpplåtelseformBostadsrätt
  • Kvadratmeterpris (kr/m²) 38 095 kr/m²
  • Byggnadsår1944
  • Våning 3 av 3
  • HissNej
  • Avgift till föreningen3 716 kr/mån

Beskrivning

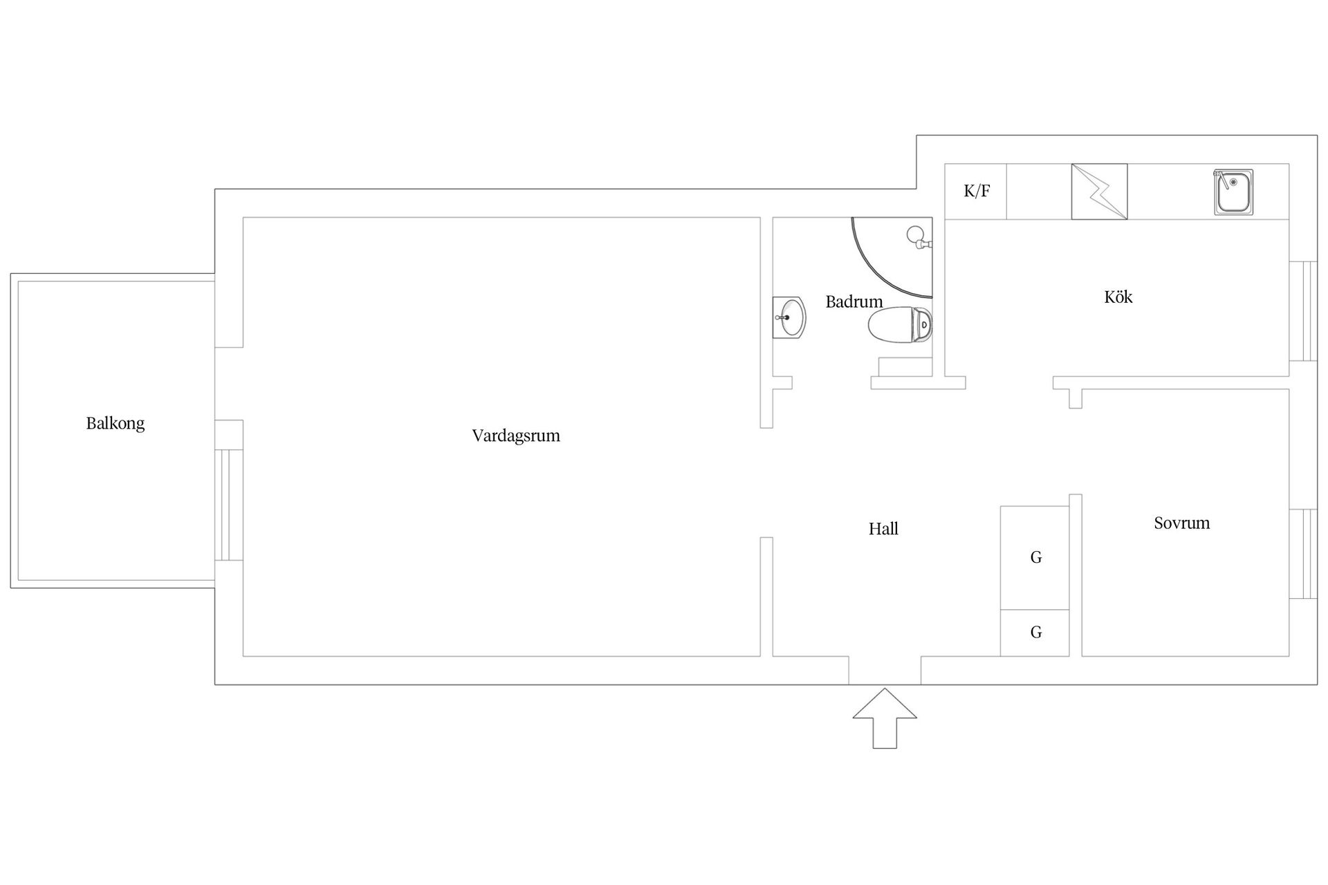
Högst upp i huset i lugnt läge ligger denna fina och charmiga genomgångsbostad. Bostaden ligger i ett lugnt område med mycket grönska precis utanför samt nära till naturen. En mycket trevlig bostad i gott skick med ett härligt ljust och rymligt vardagsrum och utgången till den soliga balkongen som vetter mot väster. Bostaden karaktäriseras av detaljer så som plankgolv i furu, högt i tak och fönsterbänkar i sten. Klassiskt kök i vitt och ett badrum som är fullutrustat med både tvättmaskin och handdukstork. Omgivningen utanför bostaden fönster ger en härlig grönska. Till bostaden hör både vinds- och källarförråd.

En mycket charmig och trivsam bostad i populärt område väntar dig här. Här bor du med närhet till Wieselgrensplatsen som erbjuder goda kommunikationer med buss och spårvagn som tar dig till centrala Göteborg på ca 10 min. I närheten finns förskolor, skolor, gym och även flera matbutiker samt restauranger att utforska. På gångavstånd når man Flunsåsparken eller Ramberget och Keillers park, perfekt för promenader och en av Göteborgs bästa utsikt. Bara några minuter bort ligger Backaplan som erbjuder ännu större serviceutbud. Här har du ett boende med allt du kan tänkas behöva.
På G!
Först på Boneo
Centrala Hisingen, Göteborg

Östanvindsgatan 9C

Lägenhet2 rok42

Mäklare

Mäklare

AwardBadge
Årets Mäklarkedja 2024, 2025
Vinnare av Boneo Awards
banner

Tjänster

Bolån

Räkna på bolån för Östanvindsgatan 9C
nordeaAlltid personlig ränta på ditt bolånRäkna här
Jämför bolån från olika banker!
lanekollPersonlig hjälp hela vägen hem!Räkna direkt!
Bostaden du tittar på matchar med 623 personer i BoneoMatch™

Hur många vill köpa din bostad?

Vi matchar din bostad mot över 500 000 köpsugna personer som går på visningar just nu.

Loading...
På G!
Först på Boneo
Centrala Hisingen, Göteborg

Östanvindsgatan 9C

Lägenhet2 rok42

Mäklare

Mäklare

AwardBadge
Årets Mäklarkedja 2024, 2025
Vinnare av Boneo Awards