linkedin pixel
Skummeslövsstrand, Laholm

Rågångsvägen 5

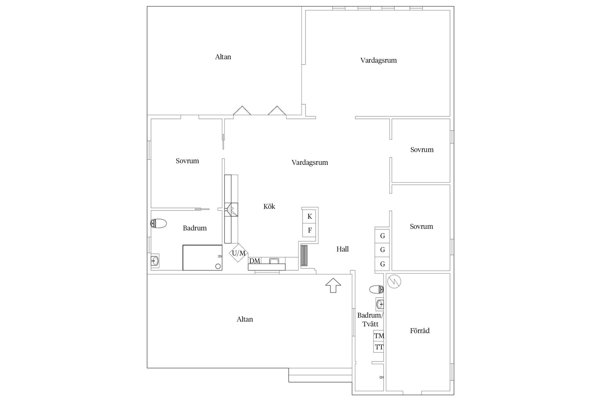
Villa5 rok133 + 15955 m² tomt

Fakta

  • Pris6 495 000 kr
  • BoendetypVilla
  • Rum5 rok
  • Boyta133
  • UpplåtelseformFriköpt
  • Biarea15
  • Tomtarea955 m²
  • Pris/m² 48 835 kr/m²
  • Byggnadsår1983
  • Dagar på Boneojuli 2025

Beskrivning

Havet alldeles nära!

Här i mysiga Skummeslövsstrand, på fantastiskt läge med havet alldeles nära, hittar den här smakfullt renoverade 1-plansvillan. Här njuter man av både solnedgångar och havsutsikt, och det råder ett lugn över området som får en att sakta ner och andas in.

Huset är totalrenoverat med ny fasad, ny isolering, nytt tak, nytt golvbjälklag, nya fönster, ny värmepump etc. Fasaden är liggande panel av svenskt trä, kokt i linolja och nära underhållsfritt. Träet grånar naturligt och doftar helt fantastiskt, doften påminner om en solvarm tallskog och är helt enkelt ljuvlig. Trätrallen är i samma vackra miljöklassade trä.

Här ryms tre sovrum samt två nyrenoverade badrum och ett vackert kök i klassiskt vitt från svenska Bomankök, 2022. Ljusa laminatgolv i alla rum och alla väggar målade i en bruten vit.

Vardagsrummet är öppet upp i nock med synliga bjälkar, altandörrar ut till trädäcket från både vardagsrummet och master bedroom. Stort glasparti som är helt öppningsbart från köket ut på trädäcket och utsikten över havet, här får man känslan av att inne och ute flyter samman på ett harmoniskt sätt, här vill man bara stanna upp och njuta.

På tomten är det förberett för ett attefallshus, och både fasad och trall i samma som huset finns.

I mysiga Skummeslöv finns allting inom räckhåll och byn är en härlig blandning av lantligt sommarboende och åretruntboende.
Här finns charmiga restauranger varav några är öppna året runt, ett bageri med bistro och en välsorterad livsmedelsbutik och flera förskolor. Här finns tennisbanor, padelbanor, vackra löparslingor, tempererad utomhusbassäng med stor lekplats och inte minst Sveriges längsta sandstrand!

Läget är optimalt för dig som vill ha nära såväl till Båstad med hela sitt utbud som till Mellbystrand och Laholm, dessutom är både E6 och tågstationen inom några minuters räckhåll vilket gör pendlingen smidig och enkel.

Välkomna till det här härliga huset med havet nära intill!



Mäklare

Ulrika Åbrink
Ansvarig mäklare
AwardBadge
Årets Mäklarkedja 2024
Vinnare av Boneo Awards
Bjurfors Båstad
Köpmangatan 4, Båstad
Agency
Agency
AwardBadge
Årets Mäklarkedja 2024
Vinnare av Boneo Awards
banner

Planritning

Tjänster

Bolån

Räkna på bolån för Rågångsvägen 5
nordeaAlltid personlig ränta på ditt bolånRäkna här
Jämför bolån från olika banker!
lanekollPersonlig hjälp hela vägen hem!Räkna direkt!

Hur många vill köpa din bostad?

Med BoneoMatch™ ser du hur många som letar efter en liknande bostad i ditt område.

Läs mer
Loading...