linkedin pixel
Tillbaka till sökresultatet
Fullskärm
Fullskärm
Tillbaka till sökresultatet
externalLinkIconAlla bilder
Lägenhet1 rok43,50

Fakta om bostaden

  • Pris595 000 kr
  • BoendetypLägenhet
  • Antal rum1 rok
  • Boyta43,50
  • UpplåtelseformBostadsrätt
  • Kvadratmeterpris (kr/m²) 13 678 kr/m²
  • Byggnadsår1971
  • Dagar på Boneojuli 2025
  • Våning 3 av 3
  • HissNej
  • Avgift till föreningen3 087 kr/mån

Beskrivning

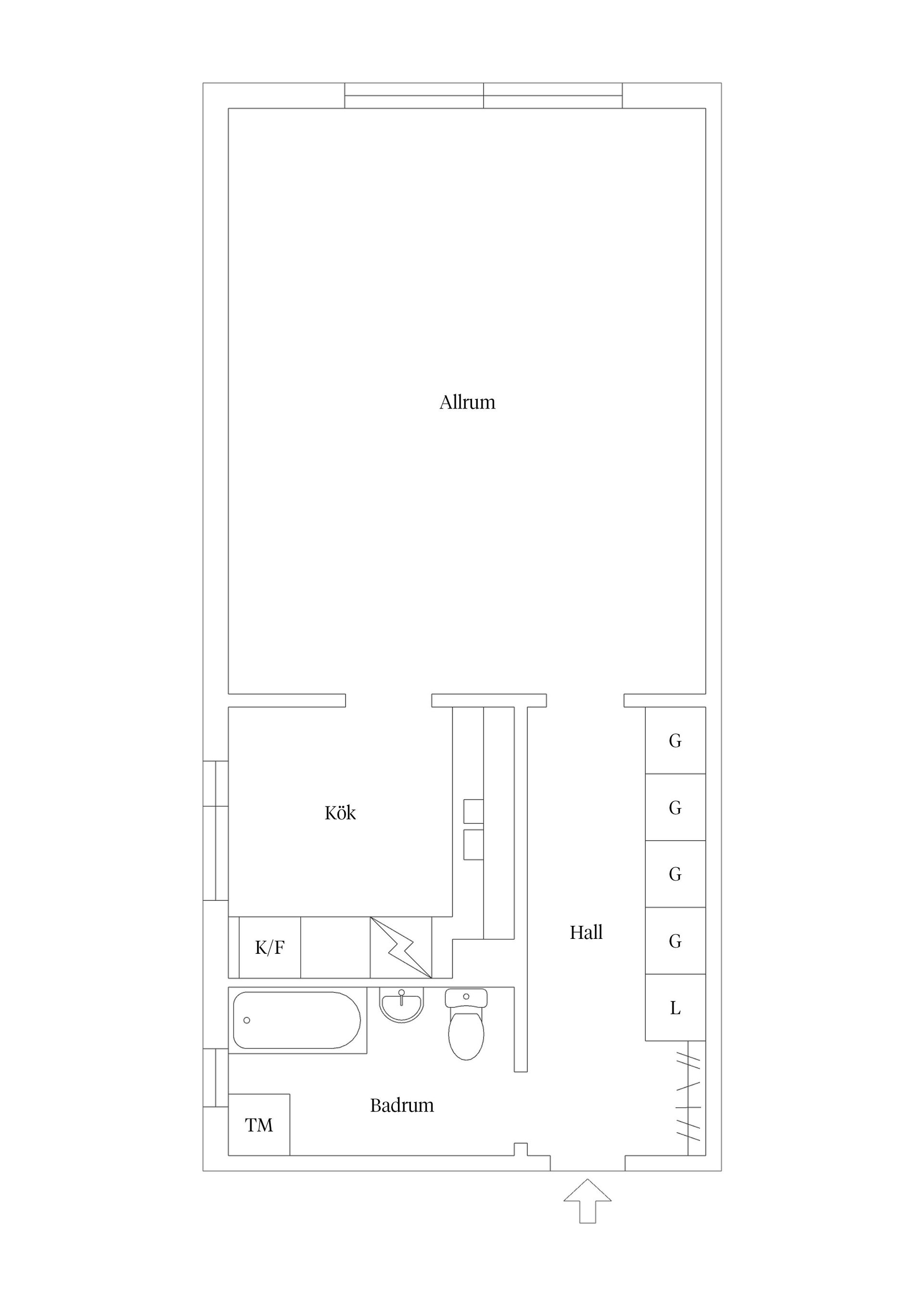
Högst upp i huset välkomnas du till denna kvadratsmarta enrummare på trivsamt hörnläge. Här erbjuds ett bekymmersfritt och bekvämt boende på hela 43,5 kvadratmeter, där det generösa ljusinsläppet bidrar till en luftig och inbjudande atmosfär. Perfekt som första boende, studentlägenhet – eller varför inte som övernattningslägenhet?

Hallen är inbjudande och erbjuder optimal förvaring i flera garderober. Från hallen når du allrummet, som har plats för både en större säng och en rymlig soffgrupp. Köket är stilrent och har goda arbetsytor samt gott om förvaring i skåp. Här finns även plats för en mindre matgrupp vid fönstret, med fin utsikt över föreningens grönskande innergård. Badrummet har ett härligt ljusinsläpp och är utrustat med egna tvättmöjligheter som underlättar vardagen. Ett extra stort plus är att det i den inre reparationsfonden finns över 7 900 kr som kommer vara en trygghet för nästa ägare.

På Lybecksvägen 5C bor du i en stabil och välskött förening med ett utmärkt läge. Utanför porten möts du av grönskande omgivningar och mysiga promenadstråk. I närområdet finns välsorterade livsmedelsbutiker, gym och annan service du kan behöva. Kommunikationerna är goda, med fina cykelvägar in till citykärnan och en busshållplats endast en kort promenad bort.

Visningar

Djurängen, Kalmar

Lybecksvägen 5C

Lägenhet1 rok43,50

Mäklare

Mäklare

AwardBadge
Årets Mäklarkedja 2024, 2025
Vinnare av Boneo Awards
banner

Tjänster

Bolån

Räkna på bolån för Lybecksvägen 5C
nordeaAlltid personlig ränta på ditt bolånRäkna här
Jämför bolån från olika banker!
lanekollPersonlig hjälp hela vägen hem!Räkna direkt!

Hur många vill köpa din bostad?

Med BoneoMatch™ ser du hur många som letar efter en liknande bostad i ditt område.

Läs mer
Loading...
Djurängen, Kalmar

Lybecksvägen 5C

Lägenhet1 rok43,50

Mäklare

Mäklare

AwardBadge
Årets Mäklarkedja 2024, 2025
Vinnare av Boneo Awards