linkedin pixel
Jägersro, Malmö

Jägersrovägen 12A

Lägenhet1 rok34,50

Fakta

  • Pris795 000 kr
  • BoendetypLägenhet
  • Rum1 rok
  • Boyta34,50
  • UpplåtelseformBostadsrätt
  • Pris/m² 23 043 kr/m²
  • Byggnadsår1955
  • Dagar på Boneo45 dagar
  • Våning 2 av 3
  • HissNej
  • Månadsavgift3 029 kr

Beskrivning

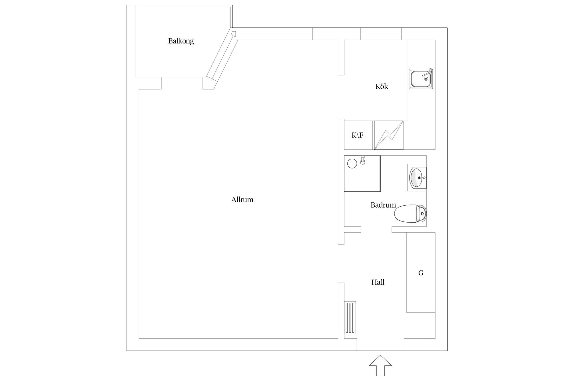
Välkommen till denna ljusa och trivsamma 1:a om 34,5 kvm, perfekt belägen i populära Jägersro. Bostaden erbjuder smart planerade kvadratmeter, fint ljusinsläpp och en underbar balkong som förlänger rummet under årets varmare månader. Lägenheten bjuder på genomgående fina ytskikt, ett rymligt allrum med sovplats, renoverat kök och ett fräscht badrum i modern stil. En smart planerad bostad där varje kvadratmeter tagits tillvara – perfekt som första lägenhet, övernattningsbostad eller för dig som vill bo yteffektivt utan att tumma på komfort.

Området är lugnt och familjevänligt med goda kommunikationer till centrala delar av staden. Här finns goda möjligheter att både cykla och ta kollektivtrafik med både buss och tåg till stadens puls, samtidigt som du bor i ett område som erbjuder en trygg och rofylld miljö. I närområdet finns även matbutiker, restauranger och andra bekvämligheter, vilket gör det enkelt att få vardagen att gå ihop. Med närhet till både natur och stadens utbud är detta ett perfekt läge för dig som vill ha det bästa av två världar. Denna bostad är ett utmärkt val för den som söker både funktion, komfort och ett bra läge!

Välkommen på visning!

Visningar

Mäklare

Christian Cindric
Ansvarig mäklare
Christian Cindric
AwardBadge
Årets Mäklarkedja 2024
Vinnare av Boneo Awards
Bjurfors Malmö Öster
Sallerupsvägen 126, MALMÖ
Agency
Agency
AwardBadge
Årets Mäklarkedja 2024
Vinnare av Boneo Awards
banner

Planritning

Tjänster

Bolån

Räkna på bolån för Jägersrovägen 12A
nordeaAlltid personlig ränta på ditt bolånRäkna här
Jämför bolån från olika banker!
lanekollPersonlig hjälp hela vägen hem!Räkna direkt!
Bostaden du tittar på matchar med 191 personer i BoneoMatch™

Hur många vill köpa din bostad?

Vi matchar din bostad mot över 500 000 köpsugna personer som går på visningar just nu.

Loading...