linkedin pixel
Tillbaka till sökresultatet
Fullskärm
Fullskärm
Tillbaka till sökresultatet
externalLinkIconAlla bilder
Lägenhet2 rok70

Fakta om bostaden

  • Pris3 490 000 kr
  • BoendetypLägenhet
  • Antal rum2 rok
  • Boyta70
  • UpplåtelseformBostadsrätt
  • Kvadratmeterpris (kr/m²) 49 857 kr/m²
  • Byggnadsår1945
  • Dagar på Boneoaugusti 2025
  • Våning 1 av 4
  • HissNej
  • Avgift till föreningen3 701 kr/mån

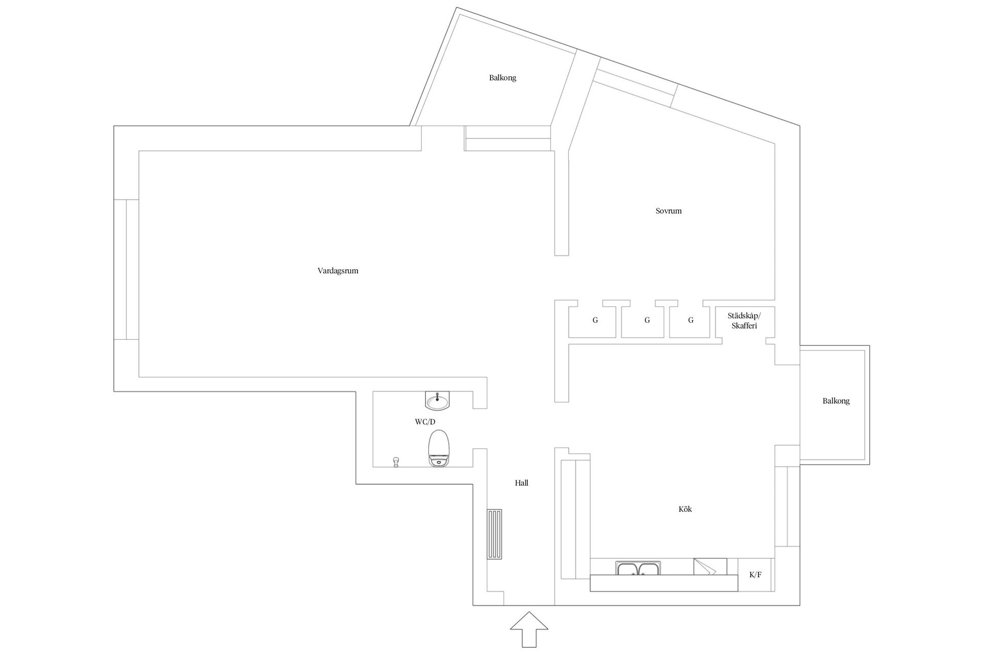
Beskrivning

Ursprungligen en trea som öppnats upp. Kan enkelt bli till en trea på flera olika sätt.
Centrumdröm med två balkonger. Helt nytt helkaklat badrum, högt till tak, brädgolv och ekparkett.
Stort kök med generös matplats, litet rum som låg bredvid är nu ihopslaget med köket för att skapa den stora matplatsen.
Rymligt sovrum med tre garderober.

Mycket stort vardagsrum med fönster i söder och balkong och fönster i väster.

Stort vindsförråd och ett källarförråd tillhör bostaden.

P-platser finns på innergården, fn utan kö.

Här bor du centralt med citypulsen runt knuten och hela dess utbud av butiker och restauranger. Goda kommunikationsmöjligheter med exempelvis bussförbindelser till Malmö nära inpå.
Södra Esplanadens välkända lindallé utanför fönstret och dessutom på promenadavstånd till Stadsparken. Liten välskött förening med låga avgifter och som varit Brf sedan huset byggdes 1944.

Tillträdet är helt flexibelt.

Välkommen på visning !
Lund - Centrum, Lund

Mariagatan 9

Lägenhet2 rok70

Mäklare

Mäklare

AwardBadge
Årets Mäklarkedja 2024, 2025
Vinnare av Boneo Awards
banner

Tjänster

Bolån

Räkna på bolån för Mariagatan 9
nordeaAlltid personlig ränta på ditt bolånRäkna här
Jämför bolån från olika banker!
lanekollPersonlig hjälp hela vägen hem!Räkna direkt!
Bostaden du tittar på matchar med 924 personer i BoneoMatch™

Hur många vill köpa din bostad?

Vi matchar din bostad mot över 500 000 köpsugna personer som går på visningar just nu.

Loading...
Lund - Centrum, Lund

Mariagatan 9

Lägenhet2 rok70

Mäklare

Mäklare

AwardBadge
Årets Mäklarkedja 2024, 2025
Vinnare av Boneo Awards