linkedin pixel
Lund - Centrum, Lund

Slöjdgatan 12

Lägenhet1 rok24

Fakta

  • Pris1 995 000 kr
  • BoendetypLägenhet
  • Rum1 rok
  • Boyta24
  • UpplåtelseformBostadsrätt
  • Pris/m² 83 125 kr/m²
  • Byggnadsår2019
  • Dagar på Boneo51 dagar
  • Våning 2 av 5
  • HissJa
  • Månadsavgift2 403 kr

Beskrivning

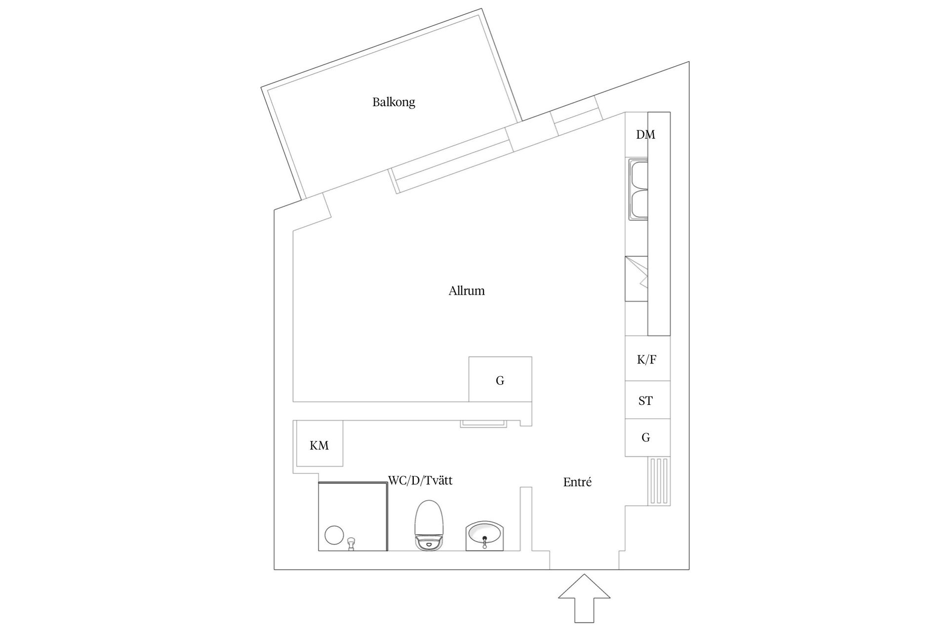
Välkommen in i denna lägenhet om 24 kvadratmeter! Bostaden utgörs av ett rum och kök som tillsammans bildar en ljus och väldisponerad bostad med stilrena ytskikt.

Det första som möter dig i denna bostad är en funktionell hall med hatthylla och bra förvaring. Sedan kommer vi till ett ljust, litet men lättmöblerat allrum med stora fönster och plats för säng och matgrupp. Köket ger gott om arbetsyta och erbjuder allt som behövs för den matlagningsglade.
Badrummet är stort, fräscht och funktionellt och har toalett, dusch, kommod, handdukstork och kombinerad tvättmaskin/torktumlare.

I den här ettan finns en stor balkong som verkligen höjer livskvaliteten för dig som boende. Här kan du njuta av härliga kvällar med både familj och vänner. Balkongen nås från allrummet och erbjuder lättmöblerade ytor och plats för ett mindre bord.

Det centrala läget här på Slöjdgatan är perfekt för dig som vill kunna promenera till det mesta. Ett stenkast från lägenheten ligger Lunds centralstation, perfekt för dig som pendlar! Dessutom är det inte långt till restauranger, bra kommunikationer, gym och butiker.
Välkommen på visning!

Mäklare

Joel Tingfors
Ansvarig mäklare
AwardBadge
Årets Mäklarkedja 2024
Vinnare av Boneo Awards
Bjurfors Lund Väster
Trollebergsvägen 12, Lund
Agency
Agency
AwardBadge
Årets Mäklarkedja 2024
Vinnare av Boneo Awards
banner

Planritning

Tjänster

Bolån

Räkna på bolån för Slöjdgatan 12
nordeaAlltid personlig ränta på ditt bolånRäkna här
Jämför bolån från olika banker!
lanekollPersonlig hjälp hela vägen hem!Räkna direkt!
Bostaden du tittar på matchar med 281 personer i BoneoMatch™

Hur många vill köpa din bostad?

Vi matchar din bostad mot över 500 000 köpsugna personer som går på visningar just nu.

Loading...