linkedin pixel
Tillbaka till sökresultatet
Fullskärm
Fullskärm
Tillbaka till sökresultatet
externalLinkIconAlla bilder
På G!
Först på Boneo
Villa5 rok113 + 6307 m² tomt

Fakta om bostaden

  • Pris5 295 000 kr
  • BoendetypVilla
  • Antal rum5 rok
  • Boyta113
  • UpplåtelseformÄganderätt
  • Biarea6
  • Tomtarea307 m²
  • Kvadratmeterpris (kr/m²) 46 858 kr/m²
  • Byggnadsår2013

Beskrivning

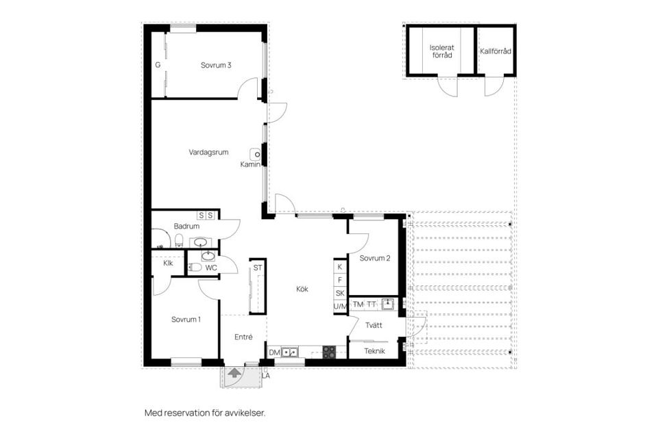
Välkommen till ett hem där trivsel, funktion och bekvämlighet går hand i hand! Denna stilrena enplansvilla byggd av Skanska 2013 är perfekt för den moderna familjen som söker ett bekymmersfritt boende i ett lugnt och barnvänligt kvarter.

Villan erbjuder ett smart planerat boende om 3 sovrum, ett ljust vardagsrum med mysig kamin, separat tvättstuga med egen ingång från carport samt två praktiska förråd i trädgården – ett isolerat och ett oisolerat. Här bor du i ett modernt område där alla hus är nyare och miljön känns både enhetlig och välkomnande.

Köket är rymligt och har gott om förvaring, perfekt för familjelivet. Här finns plats för både vardagsmatlagning och festligare middagar. Vardagsrummet har generösa ytor och kamin som skapar extra värme och stämning under årets kallare månader. Från vardagsrummet nås trädgården, som erbjuder plats för både lek och avkoppling. Hela huset har dessutom vattenburen golvvärme.

Bostaden har tre rymliga sovrum som enkelt rymmer både sängar och förvaringsmöbler. Här finns dessutom både ett helkaklat badrum och en separat toalett – smidigt när hela familjen ska iväg samtidigt på morgonen!

Tvättstugan, med sin egna entré från carporten, är praktiskt utformad och gör vardagens logistik enkel. De två förråden ger extra plats för allt från verktyg och trädgårdsredskap till cyklar och säsongssaker.

Området är perfekt för barnfamiljer – här bor ni lugnt och tryggt med gångavstånd till både förskola och skola. Omgivningarna är gröna och trevliga, med lekplatser, gångvägar och närhet till både natur och service.

Välkommen till ett hem att trivas i – modernt, lättskött och med allt på ett plan!
På G!
Först på Boneo
Gustavslund, Helsingborg

Kvannegatan 10

Villa5 rok113 + 6307 m² tomt

Mäklare

banner

Tjänster

Bolån

Räkna på bolån för Kvannegatan 10
nordeaAlltid personlig ränta på ditt bolånRäkna här
Jämför bolån från olika banker!
lanekollPersonlig hjälp hela vägen hem!Räkna direkt!
Bostaden du tittar på matchar med 71 personer i BoneoMatch™

Hur många vill köpa din bostad?

Vi matchar din bostad mot över 500 000 köpsugna personer som går på visningar just nu.

Loading...
På G!
Först på Boneo
Gustavslund, Helsingborg

Kvannegatan 10

Villa5 rok113 + 6307 m² tomt

Mäklare