linkedin pixel
Fullskärm
Fullskärm
externalLinkIconAlla bilder
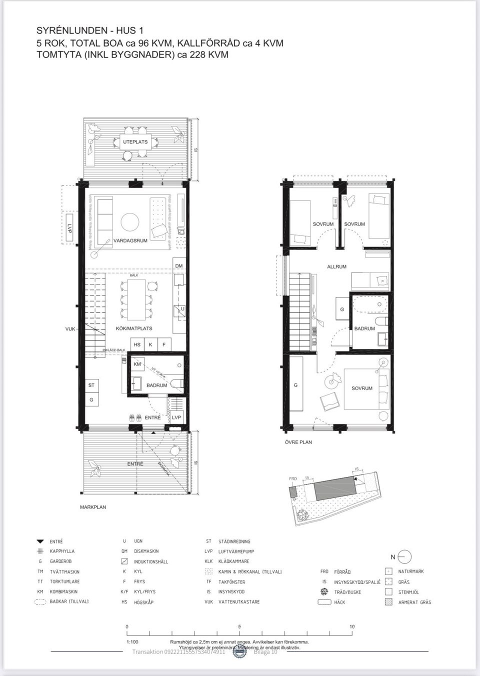
Parhus5 rok96

Fakta om bostaden

  • Pris2 795 000 kr
  • BoendetypParhus
  • Antal rum5 rok
  • Boyta96
  • UpplåtelseformBostadsrätt
  • Kvadratmeterpris (kr/m²) 29 115 kr/m²
  • Byggnadsår2024
  • Dagar på Boneo2 dagar
  • Våning 2 av 2
  • Avgift till föreningen5 601 kr/mån

Beskrivning

Utsikt mot Bro Hofs grönska

**Denna bostad kan förvärvas av både juridisk och privatperson**
En golfsving bort ligger en av Europas finaste golfbanor, på cykel och promenadavstånd ligger Mälaren, ridhus och fina naturreservat! Bro Mälarstrand är en vacker och ny stadsdel som växer fortfarande.
Varmt välkommen till detta fint belägna parhus om 96 kvm i två plan, beläget på en eftertraktad hörntomt med solig altan och genomtänkt planlösning. Huset är ritat av den prisbelönta arkitektbyrån Arrhov-Frick och präglas av genomtänkt planlösning och noggrant utvalda material. Huset är från 2024.

Bekväm och energieffektiv, vattenburen golvvärme i hela huset, fina trägolv, stora fönsterpartier och fina vita väggar ger en luftig och ljus känsla i alla rum. Fullt utrustat kök från Haga kök med kompositstenbänkar och integrerade vitvaror från Bosch. Det här är ett hem som sticker ut på insidan och smälter in i den naturnära miljön. Två fullstora badrum varav ett med badkar och ett med dusch. Kombitvättmaskin i badrummet på entréplan.

Två parkeringsplatser ingår, likaså ett tillhörande uthus med förråd om 4kvm - allt för att underlätta vardagen. Fin gräsmatta som löper runt huset och inramas av häck, trädäck på baksidan ger plats för långa sommarkvällar i solen, med naturen precis runt hörnet. Tomt på 228kvm som med det fina hörnläget ger fina ytor att nyttja.

Energisnålt hus med låga uppvärmningskostnader och klass C som ger rabatterad ränta på bolån (Grönt bolån).

**Observera att denna specifika bostad även kan förvärvas av juridisk person enligt tidigare avtal med föreningen.

Läget är svårslaget - ett stenkast från Bro Hof Slott och dess golfklubb, med närhet till naturreservat, badplatser, öar och populär skola Campus Bro Mälarstrand (F-åk 9). Perfekt för dig som söker ett liv i balans mellan natur och bekvämlighet.

Visningar

Bro Mälarstad, Upplands-Bro

Assurs väg 30

Parhus5 rok96

Mäklare

banner

Tjänster

Bolån

Räkna på bolån för Assurs väg 30
nordeaAlltid personlig ränta på ditt bolånRäkna här
Jämför bolån från olika banker!
lanekollPersonlig hjälp hela vägen hem!Räkna direkt!

Hur många vill köpa din bostad?

Med BoneoMatch™ ser du hur många som letar efter en liknande bostad i ditt område.

Läs mer
Loading...
Bro Mälarstad, Upplands-Bro

Assurs väg 30

Parhus5 rok96

Mäklare