linkedin pixel
Tillbaka till sökresultatet
Fullskärm
Fullskärm
Tillbaka till sökresultatet
externalLinkIconAlla bilder
Lägenhet4 rok131,50

Fakta om bostaden

  • Pris5 495 000 kr
  • BoendetypLägenhet
  • Antal rum4 rok
  • Boyta131,50
  • UpplåtelseformBostadsrätt
  • Kvadratmeterpris (kr/m²) 41 787 kr/m²
  • Byggnadsår2006
  • Dagar på Boneoseptember 2025
  • Våning 2
  • HissNej
  • Avgift till föreningen7 238 kr/mån

Beskrivning

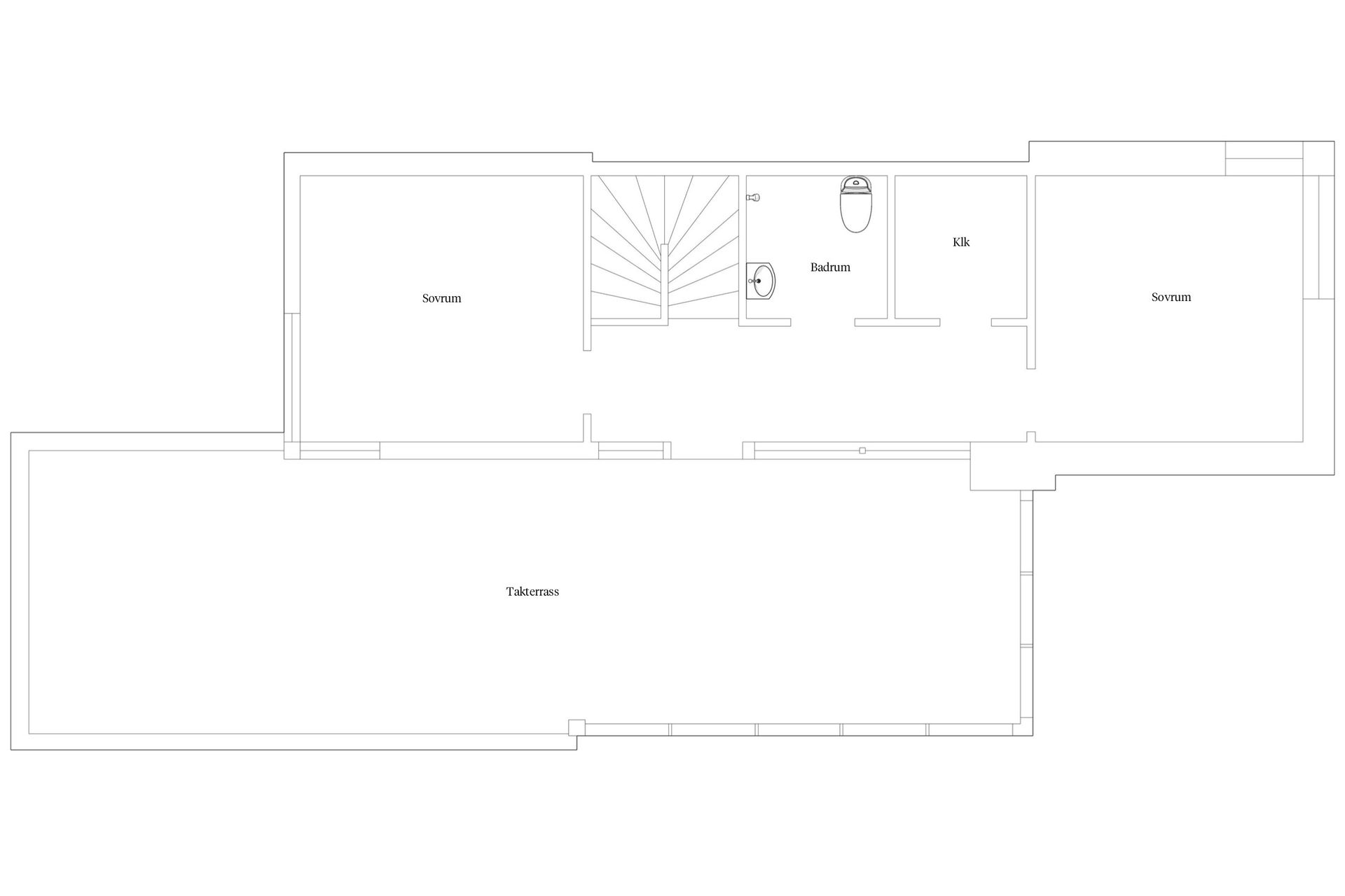
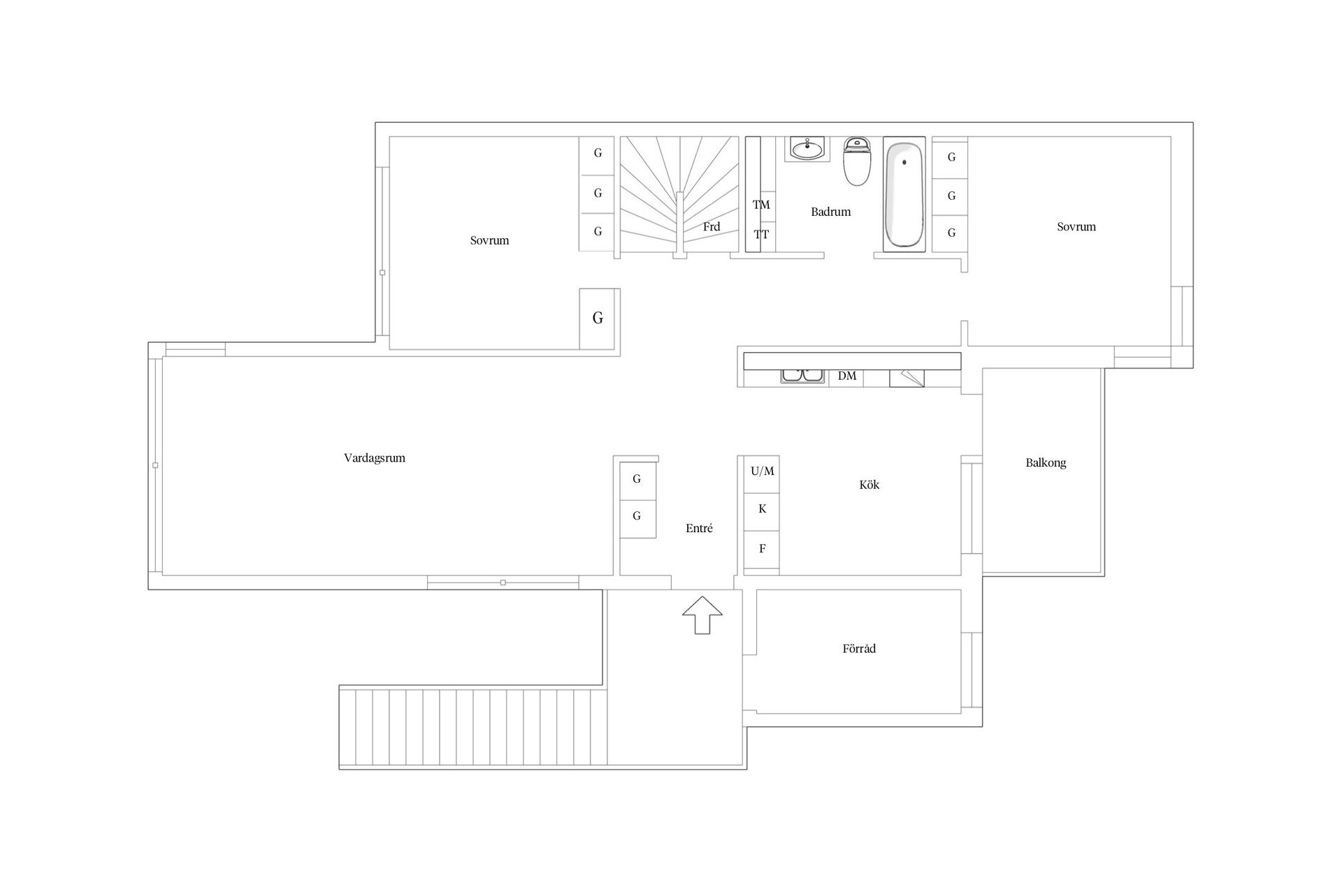
Nu finns chansen att förvärva denna unika etagelägenhet, en bostad som sällan är till salu och som passar perfekt för den som söker hög boendekvalité i ett av Västerås mest attraktiva områden! Boendet karaktäriseras av magisk takterrass om ca 40kvm med grönskande utsikt och Mälarglimt, balkong med plats för sittgrupp samt generöst ljusinsläpp. Utöver detta påträffas även praktiskt kök med gott om förvaring, väl tilltaget vardagsrum med öppen planlösning mot matsalsdel, tre rogivande sovrum med ljusinsläpp från två väderstreck samt dubbla helkaklade badrum med golvvärme.

Här bor ni i en stabil BRF förening med modern fastighet samt välskött ekonomi. Låg belåningsgrad om 7078kr/kvm (årsredovisning 2024). Förråd i anslutning till lägenheten. Garanterad garageplats (750kr/mån). Lugnt, barnvänligt och populärt område med direkt närhet till skolor, förskolor, Mälaren samt citys fulla utbud.

Välkommen hem!
Annedal, Västerås

Valhallagatan 31D

Lägenhet4 rok131,50

Mäklare

Mäklare

AwardBadge
Årets Mäklarkedja 2024, 2025
Vinnare av Boneo Awards
banner

Tjänster

Bolån

Räkna på bolån för Valhallagatan 31D
nordeaAlltid personlig ränta på ditt bolånRäkna här
Jämför bolån från olika banker!
lanekollPersonlig hjälp hela vägen hem!Räkna direkt!

Hur många vill köpa din bostad?

Med BoneoMatch™ ser du hur många som letar efter en liknande bostad i ditt område.

Läs mer
Loading...
Annedal, Västerås

Valhallagatan 31D

Lägenhet4 rok131,50

Mäklare

Mäklare

AwardBadge
Årets Mäklarkedja 2024, 2025
Vinnare av Boneo Awards