linkedin pixel
Tillbaka till sökresultatet
Fullskärm
Fullskärm
Tillbaka till sökresultatet
externalLinkIconAlla bilder
På G!
Först på Boneo
Lägenhet1 rok36

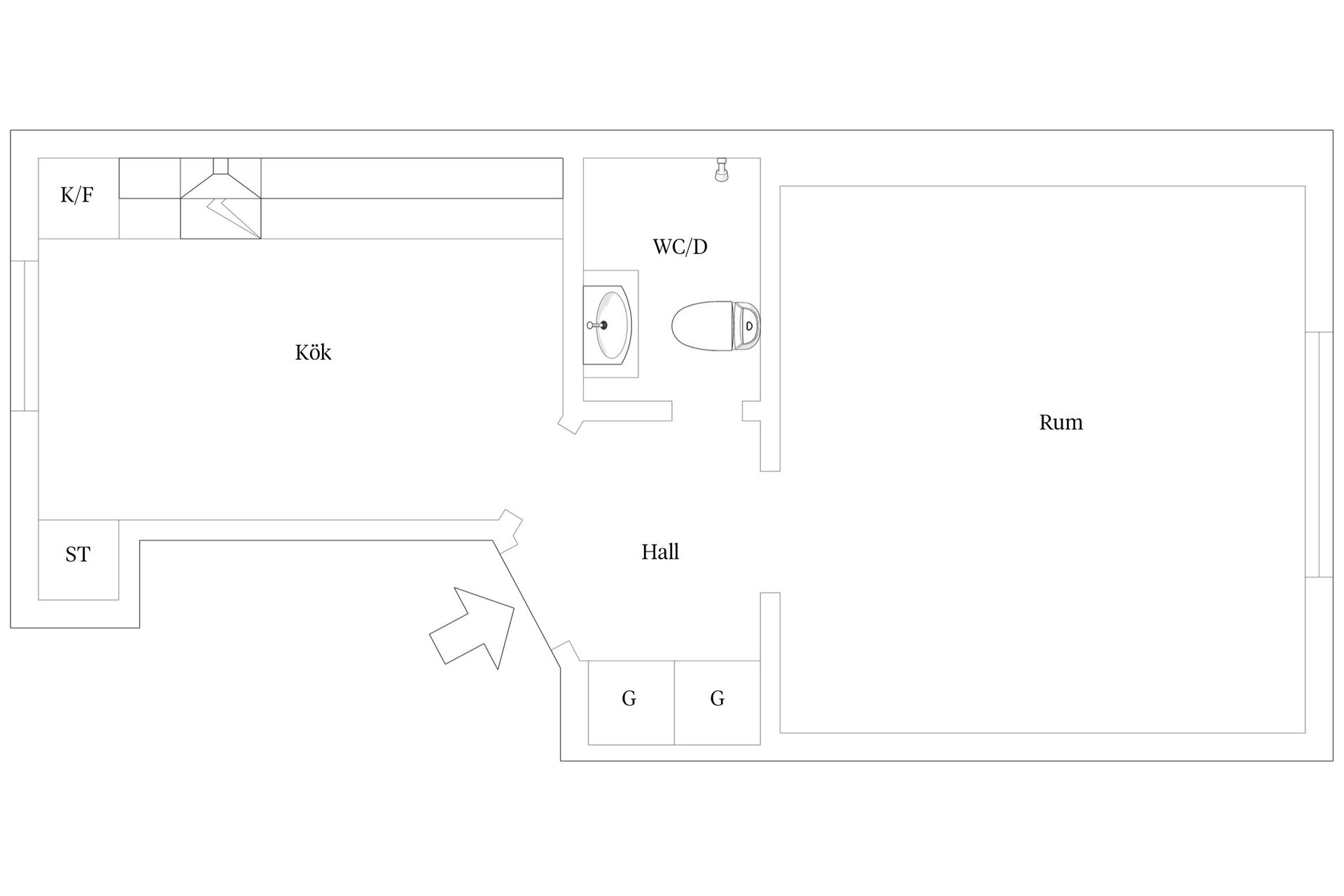
Fakta om bostaden

  • BoendetypLägenhet
  • Antal rum1 rok
  • Boyta36
  • UpplåtelseformBostadsrätt
  • Byggnadsår1929
  • Våning 3 av 3
  • HissNej
  • Avgift till föreningen3 502 kr/mån

Beskrivning

I hjärtat av ett av stadens mest omtyckta landshövdingehus från 1929 finner du denna välplanerade enrummare där 20-talets charm möter dagens funktionalitet. De höga fönstren låter ljuset flöda in och samspelar vackert med den generösa takhöjden, vilket skapar en luftig och välkomnande atmosfär. Tidstypiska detaljer som bevarat skafferi och gedigna materialval ger karaktär och personlighet, medan den genomtänkta planlösningen gör vardagen smidig och trivsam. Här får du ett hem där varje kvadratmeter är väl utnyttjad och där historien sitter i väggarna utan att kompromissa med modern bekvämlighet.

Gamlestaden är en av Göteborgs mest charmiga stadsdelar, där sekelskiftesbyggnader och historisk atmosfär möter modern utveckling. Här bor du med en perfekt balans mellan stadspuls och grönområden. Med närhet till ett brett utbud av restauranger och caféer bor du här i en oslagbar matdestination. Precis utanför föreningen kan du njuta av en genuin fransk upplevelse på bistron Le 20ème eller avnjuta en fantastisk pizza på Dubbelhakan. På kort promenadavstånd ligger även Wine Mechanics, där mat och egentillverkat vin möts i perfektion, samt de lokala favoriterna Rolling Bistro och Mug Worths. Det nyaste tillskottet är Forum, som huserar på 1500 kvadratmeter i Gamlestadens fabriker och är inget mindre än Nordens första och största samlade varuhus för antikviteter, vintage, konst, design och mode. Här har du närhet till det mesta vardagen kan önska – flertalet gym, matbutiker och promenadstråk i rofyllda miljöer ligger inom gångavstånd. Med utmärkta kommunikationer från Gamlestadens resecentrum tar du dig till city på bara några minuter.

Välkomna till ett hem att trivas i!
På G!
Först på Boneo
Gamlestaden, Göteborg

Brahegatan 8A

Lägenhet1 rok36

Mäklare

Mäklare

AwardBadge
Årets Mäklarkontor 2024Årets Mäklarkedja 2024, 2025
Vinnare av Boneo Awards
banner

Tjänster

Bolån

Räkna på bolån för Brahegatan 8A
nordeaAlltid personlig ränta på ditt bolånRäkna här
Jämför bolån från olika banker!
lanekollPersonlig hjälp hela vägen hem!Räkna direkt!
Bostaden du tittar på matchar med 1 334 personer i BoneoMatch™

Hur många vill köpa din bostad?

Vi matchar din bostad mot över 500 000 köpsugna personer som går på visningar just nu.

Loading...
På G!
Först på Boneo
Gamlestaden, Göteborg

Brahegatan 8A

Lägenhet1 rok36

Mäklare

Mäklare

AwardBadge
Årets Mäklarkontor 2024Årets Mäklarkedja 2024, 2025
Vinnare av Boneo Awards