linkedin pixel
Fullskärm
Fullskärm
externalLinkIconAlla bilder
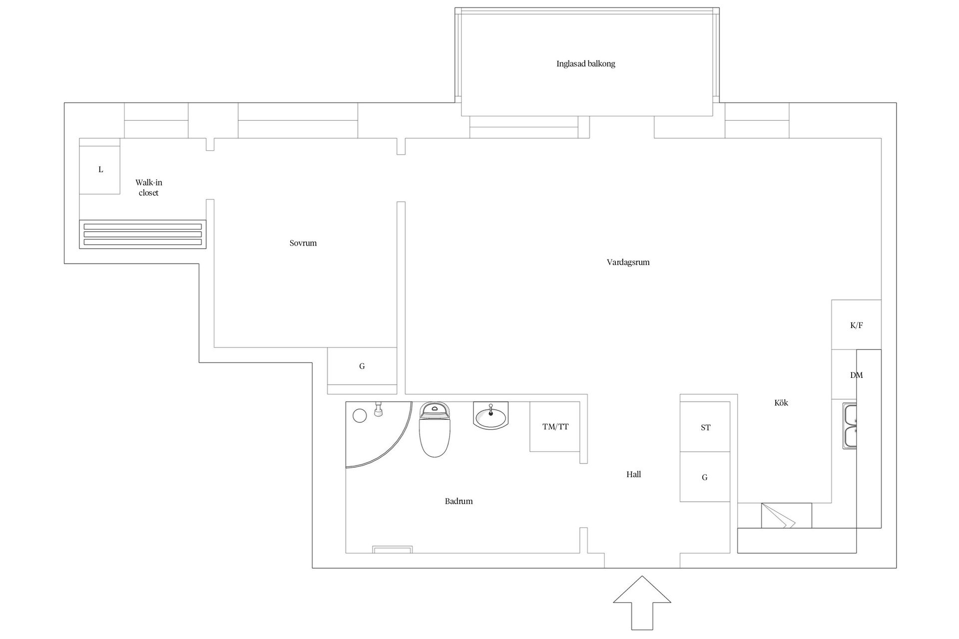
Lägenhet2 rok49

Fakta om bostaden

  • Pris2 595 000 kr
  • BoendetypLägenhet
  • Antal rum2 rok
  • Boyta49
  • UpplåtelseformBostadsrätt
  • Kvadratmeterpris (kr/m²) 52 959 kr/m²
  • Byggnadsår2016
  • Dagar på Boneo59 dagar
  • Våning 5 av 6
  • HissJa
  • Avgift till föreningen2 789 kr/mån

Beskrivning

Högt läge

Välkommen till denna fantastiska bostad mitt i Amhult. Äntligen erbjuds en välplanerad och modernt designad lägenhet, perfekt för dig som söker bekvämlighet och stil på attraktivt läge. Denna ljusa och rymliga tvåa färdigställdes 2016 och bjuder på kvalitet och komfort in i minsta detalj. Genomgående fina materialval skapar en stilren atmosfär i hela lägenheten.

Njut av avkopplande stunder på den högt belägna balkongen, perfekt för både soliga dagar och mysiga kvällar. Den öppna planlösningen mellan kök och vardagsrum skapar en känsla av rymd och gemenskap. Köket är stilrent vitt och utrustat med moderna vitvaror som gör matlagningen till en fröjd. Lägenheten erbjuder på ett separat sovrum med gott om förvaringsmöjligheter i garderob och klädkammare, samt ett helkaklat badrum med dusch och tvättutrustning.

För dig som vill bo på bekvämt promenadavstånd till all tänkbar service har Brf Landningsbanan ett helt perfekt läge. I Amhult finns det mesta man kan önska sig - närhet till havet, serviceutbudet i centrala Amhult och härliga grön- och strövområden. Kulturhuset Vingen erbjuder allt från restaurang och bio till konstutställningar och direktsända operaföreställningar och blir din närmsta granne. Bilen nås lätt genom att ta hissen ner i garaget under husen. För dig som hellre åker kommunalt ligger Amhults resecentrum bara någon minut bort. I högtrafik går bussarna var femte minut och tar dig smidigt in till Göteborg Central på endast 20 minuter.

Visningar

Torslanda - Amhult, Göteborg

Segelflyget 8

Lägenhet2 rok49

Mäklare

Tjänster

Bolån

Räkna på bolån för Segelflyget 8
nordeaAlltid personlig ränta på ditt bolånRäkna här
Jämför bolån från olika banker!
lanekollPersonlig hjälp hela vägen hem!Räkna direkt!
Bostaden du tittar på matchar med 128 personer i BoneoMatch™

Hur många vill köpa din bostad?

Vi matchar din bostad mot över 500 000 köpsugna personer som går på visningar just nu.

Loading...
Torslanda - Amhult, Göteborg

Segelflyget 8

Lägenhet2 rok49

Mäklare