linkedin pixel
Fullskärm
Fullskärm
Nyproduktion
Tomt

Fakta om bostaden

  • Pris4 625 000 kr
  • BoendetypTomt
  • UpplåtelseformÄganderätt
  • Dagar på Boneoseptember 2025

Beskrivning

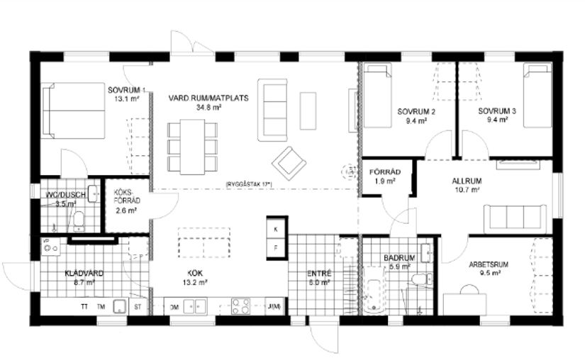
Välkommen hem till Villa Lycke - Klassisk – ett harmoniskt och hemtrevligt enplanshus där klassisk arkitektur möter smarta, moderna lösningar. Med sina 138 välplanerade kvadratmeter är detta ett hus som passar lika bra för den växande barnfamiljen som för det livsnjutande paret.

Redan i entrén möts du av en öppen, inbjudande planlösning där kök, matplats och vardagsrum smälter samman i en ljus och luftig social yta. Den centralt placerade kaminen ger både värme och atmosfär – perfekt för mysiga kvällar året runt. Från köket leder de helglasade dubbeldörrar rakt ut tillträdgården där långa sommarkvällar och soliga frukostar blir en del av vardagen.

Barnens del av huset erbjuder två rymliga sovrum, ytterligare sovrum eller kontor för den som jobbar hemifrån samt ett gemensamt allrum – en perfekt plats för lek, vila eller läxläsning. Föräldrasovrummet ligger lite mer avskilt, med eget badrum. Ytterligare en klädkammare i hallen gör vardagen både enklare och mer organiserad.

Kontakta ansvarig mäklare för mer information.

Denna försäljning avser enbart tomtmarken, separat avtal angående huset tecknas med A-hus.

Visningar

Nyproduktion
Bollebygd

Hultet (nyproduktion)

Tomt

Mäklare

banner

Tjänster

Bolån

Räkna på bolån för HULTET (NYPRODUKTION)
nordeaAlltid personlig ränta på ditt bolånRäkna här
Jämför bolån från olika banker!
lanekollPersonlig hjälp hela vägen hem!Räkna direkt!

Hur många vill köpa din bostad?

Med BoneoMatch™ ser du hur många som letar efter en liknande bostad i ditt område.

Läs mer
Loading...
Nyproduktion
Bollebygd

Hultet (nyproduktion)

Tomt

Mäklare