linkedin pixel
Budgivning pågår
Visa bud
Södermalm Katarina, Stockholm

Hökens gata 1

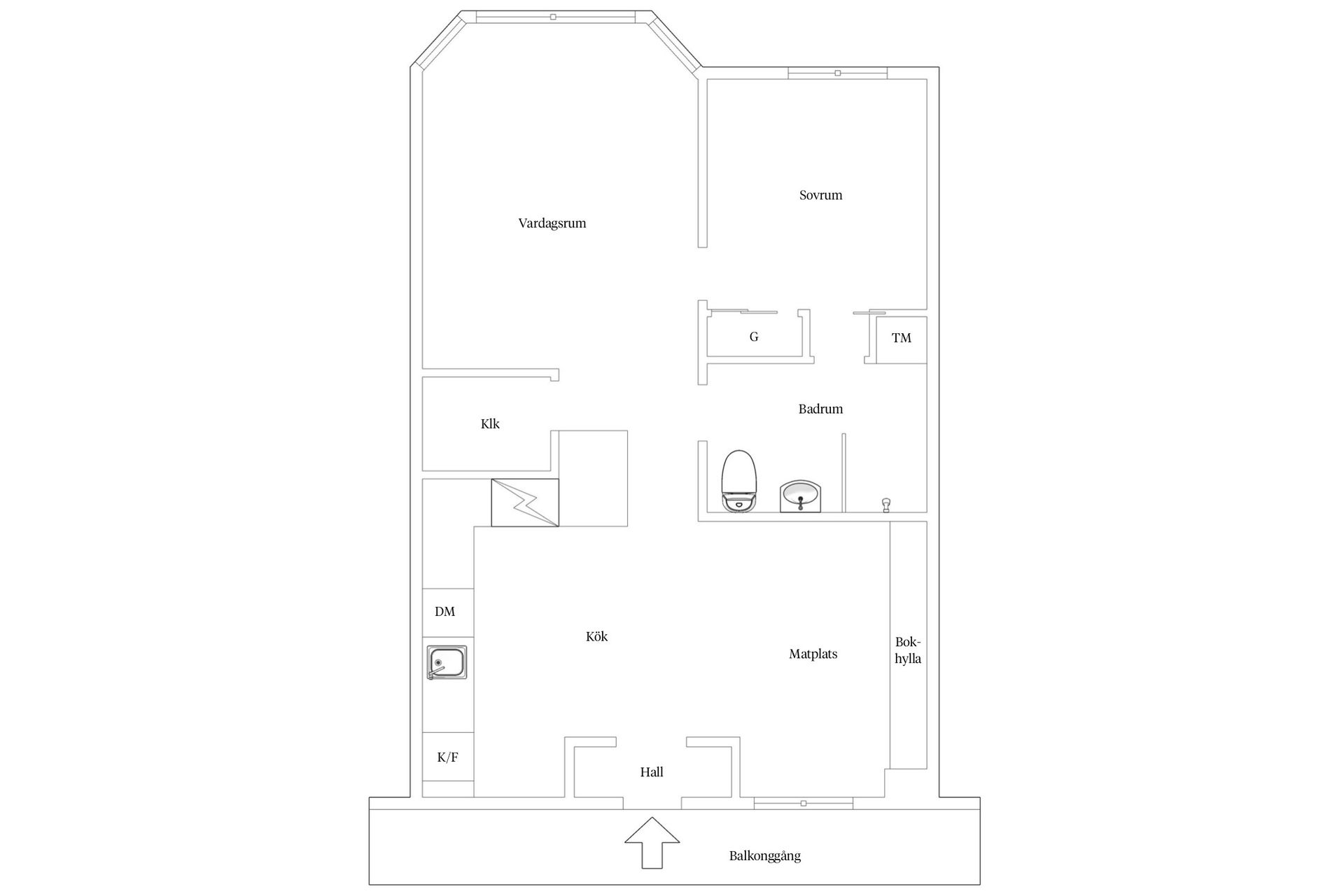
Lägenhet2 rok60

Fakta

  • Pris5 750 000 kr
  • BoendetypLägenhet
  • Rum2 rok
  • Boyta60
  • UpplåtelseformBostadsrätt
  • Pris/m² 95 833 kr/m²
  • Byggnadsår1984
  • Dagar på Boneo11 dagar
  • Våning 2 av 5
  • HissJa
  • Månadsavgift1 949 kr

Beskrivning

Varmt välkommen till denna välplanerade och ljusa tvåa med ett av Södermalms bästa lägen! Med en öppen planlösning, burspråk och möjlighet att enkelt göras om till tre rum erbjuder bostaden många fördelar. Lägenheten är renoverad med moderna materialval och erbjuder ett sovrum, vardagsrum i anslutning till kök och matplats, helkaklat badrum med tvättmaskin samt goda förvaringsmöjligheter.

Här bor du i en solid och välskött förening som äger marken med god ekonomi, låg avgift och stora hyresintäkter. Föreningen har en informativ hemsida: https://brfhokensgata1.bostadsratterna.se/

Här bor du i historiska kvarter med allt Söder har att erbjuda precis utanför porten med vackra promenadgator samt direkt närhet till Mosebacke Torg och Södra teaterns uteserveringar. Slussen och Götgatsbacken når du strax utanför porten med flertalet butiker, T-banelinjer och bussar som tar dig både inom och långt utanför Stockholms innerstads gränser. Promenera förbi vackra Katarina kyrka som erbjuder grönska och rekreation, vidare till Mäster Mikaels gata med sina charmiga små trähus och avsluta i Cornelisparken som bjuder på ytterligare vyer över Stockholm. Fortsätter du istället Nytorgsgatan söderut ligger Sofo på kort promenadavstånd med sina mysiga barer, små restauranger, caféer och specialbutiker.

Bostadens kombination av ljus, planlösning och läge gör den till ett hem att trivas i. Varmt välkommen på visning!

Mäklare

Hanna Lagemyr
Ansvarig mäklare
AwardBadge
Årets Mäklarkedja 2024
Vinnare av Boneo Awards
Bjurfors Södermalm
Götgatan 99, Stockholm
Agency
Agency
AwardBadge
Årets Mäklarkedja 2024
Vinnare av Boneo Awards
banner

Planritning

Tjänster

Bolån

Räkna på bolån för Hökens gata 1
nordeaAlltid personlig ränta på ditt bolånRäkna här
Jämför bolån från olika banker!
lanekollPersonlig hjälp hela vägen hem!Räkna direkt!
Bostaden du tittar på matchar med 2 735 personer i BoneoMatch™

Hur många vill köpa din bostad?

Vi matchar din bostad mot över 500 000 köpsugna personer som går på visningar just nu.

Loading...