linkedin pixel
På G!
Först på Boneo
Malmö City, Malmö

Östra promenaden 11B

Lägenhet3 rok82

Fakta

  • Pris3 995 000 kr
  • BoendetypLägenhet
  • Rum3 rok
  • Boyta82
  • UpplåtelseformBostadsrätt
  • Pris/m² 48 720 kr/m²
  • Byggnadsår1986
  • Våning 4 av 7
  • HissJa
  • Månadsavgift4 842 kr

Beskrivning

På ett högt och fritt läge, precis vid kanalen, finner du denna elegant renoverade trerummare med en fantastisk planlösning och balkong med vacker kanalutsikt. Här möts du av en interiör i absolut toppklass, där noggrant utvalda material och en perfekt finish genomsyrar varje detalj.

Det stilrena köket är smakfullt designat i en tidlös stil, och den genomgående fiskbensparketten ger en klassisk och exklusiv känsla. Badrummet imponerar med sin lyxiga utformning, komplett med dusch och både tvätt & torkmöjligheter.

Här bor du bekvämt med hiss från markplan och en trevlig innergård precis utanför porten. Föreningen är mycket välskött, man äger marken och har en låg skuldsättning/kvadratmeter på 2 892kr.

Varmt välkommen på visning!

Mäklare

Jasmin Palevic
Ansvarig mäklare
AwardBadge
Årets Mäklarkedja 2024
Vinnare av Boneo Awards
Bjurfors Malmö City
Tessins väg 2, Malmö
Agency
Agency
AwardBadge
Årets Mäklarkedja 2024
Vinnare av Boneo Awards
banner

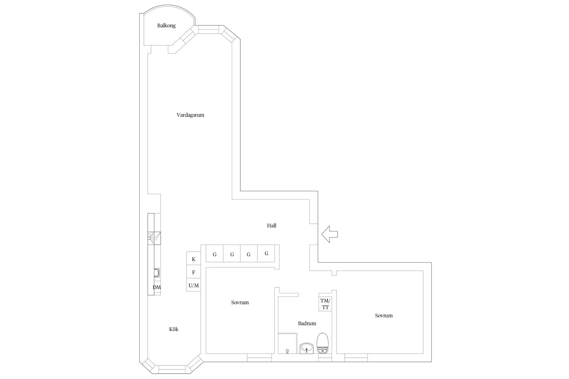
Planritning

Tjänster

Bolån

Räkna på bolån för Östra promenaden 11B
nordeaAlltid personlig ränta på ditt bolånRäkna här
Jämför bolån från olika banker!
lanekollPersonlig hjälp hela vägen hem!Räkna direkt!
Bostaden du tittar på matchar med 2 950 personer i BoneoMatch™

Hur många vill köpa din bostad?

Vi matchar din bostad mot över 500 000 köpsugna personer som går på visningar just nu.

Loading...