linkedin pixel
På G!
Först på Boneo
Norra Fäladen, Lund

Skarpskyttevägen 12F

Lägenhet3 rok95

Fakta

  • Pris2 695 000 kr
  • BoendetypLägenhet
  • Rum3 rok
  • Boyta95
  • UpplåtelseformBostadsrätt
  • Pris/m² 28 368 kr/m²
  • Byggnadsår1967
  • Våning 1 av 3
  • HissNej
  • Månadsavgift5 543 kr

Beskrivning

Välkommen till denna genomgående och insynsskyddade marklägenhet som erbjuder det lilla extra. Här får du en bostad som passar lika bra för barnfamiljen som för den som vill bo bekvämt och lättillgängligt på markplan.

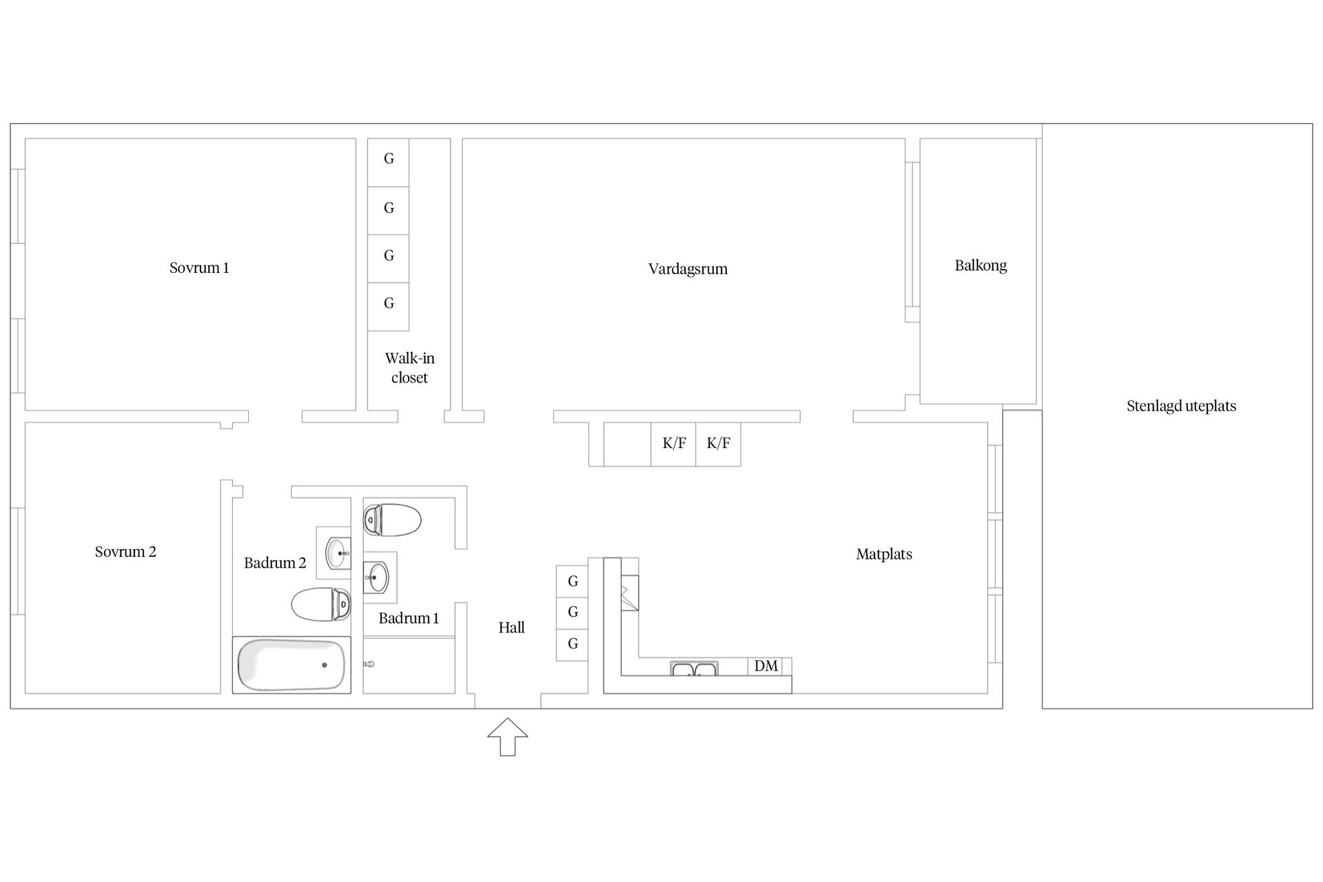
När man kliver in i bostaden möts man av en välkomnande hall med praktiskt klinkergolv och gott om plats för avhängning. Vidare nås det rymliga och stilrena köket som renoverades 2017, där vita köksluckor och en svart bänkskiva skapar en tidlös känsla. Här finns all maskinell utrustning man kan önska sig, såsom hel kyl och frys, diskmaskin och induktionshäll. Lägenheten erbjuder två badrum, renoverade 2005 respektive 2006, båda med duschmöjligheter och praktisk planering som underlättar vardagen.

De två sovrummen är väl tilltagna och det större rummet ger tack vare sin storlek möjlighet att delas av till två mindre sovrum om behovet finns. Förvaringsmöjligheterna är goda med en generös klädkammare som skapar en ordnad och lättsam vardag. Från vardagsrummet nås det inglasade uterummet som förlänger boytan och används gärna som ett extra rum större delen av året. Härifrån tar man sig vidare ut på den stora stenlagda uteplatsen, en privat oas perfekt för avkoppling, lek eller sociala tillställningar.

Läget är svårslaget med närhet till allt du behöver i vardagen. Inom gångavstånd finns ICA Supermarket, apotek, vårdcentral, tandläkare, café, pizzeria samt både Lidl och Willys. Dessutom goda bussförbindelser och ett stort utbud av restauranger. Välkommen på visning!

Mäklare

Hanna Cedergren
Ansvarig mäklare
AwardBadge
Årets Mäklarkedja 2024
Vinnare av Boneo Awards
Bjurfors Lund Väster
Trollebergsvägen 12, Lund
Agency
Agency
AwardBadge
Årets Mäklarkedja 2024
Vinnare av Boneo Awards
banner

Planritning

Tjänster

Bolån

Räkna på bolån för Skarpskyttevägen 12F
nordeaAlltid personlig ränta på ditt bolånRäkna här
Jämför bolån från olika banker!
lanekollPersonlig hjälp hela vägen hem!Räkna direkt!
Bostaden du tittar på matchar med 173 personer i BoneoMatch™

Hur många vill köpa din bostad?

Vi matchar din bostad mot över 500 000 köpsugna personer som går på visningar just nu.

Loading...