linkedin pixel
Väster, Hässleholm

Gethornskroken 15B

Lägenhet2 rok50,50

Fakta

  • Pris775 000 kr
  • BoendetypLägenhet
  • Rum2 rok
  • Boyta50,50
  • UpplåtelseformBostadsrätt
  • Pris/m² 15 347 kr/m²
  • Byggnadsår1953
  • Dagar på Boneo6 dagar
  • Våning 2 av 3
  • HissNej
  • Månadsavgift3 484 kr

Beskrivning

Stilren tvåa på omtycka Väster!

Välkomna hem till en ljus och välplanerad lägenhet där varje kvadratmeter är genomtänkt!

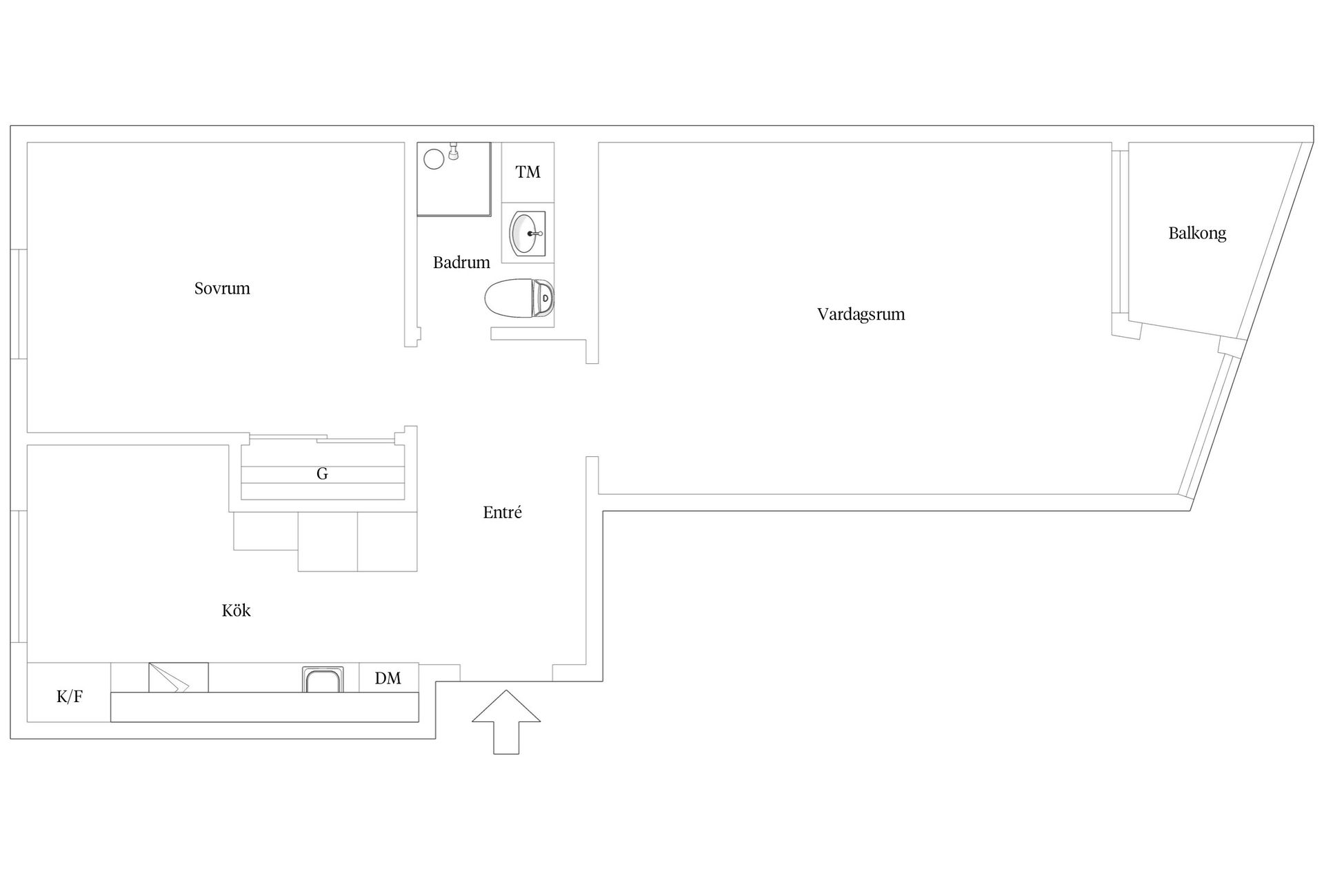
Redan i den öppna hallen möts ni av ett stilrent klinkergolv och praktisk förvaring för ytterkläder direkt till höger. Till vänster löper det smakfulla klinkergolvet vidare in i köket – ett rymligt och modernt utrymme med ljusa skåpluckor, rostfria handtag och ett stänkskydd i harmoniska toner som knyter samman golv och bänkskiva.

Köket är fullt utrustat med allt man kan önska: kyl/frys, diskmaskin, fläkt, integrerad ugn och mikro samt spishäll – här finns både funktion och stil!

Intill köket finner vi det rogivande sovrummet med plats för dubbelsäng, gott om förvaring bakom skjutdörrar och ett vackert golv som ger en ombonad känsla. Väggarna är målade i vitt, vilket förstärker ljuset och skapar en enhetlig stil genom hela bostaden.

Det helkaklade badrummet är placerat mellan sovrum och vardagsrum och erbjuder både komfort och förvaring med skåp, kommod, dusch, handdukstork samt en egen tvättmaskin.

Vardagsrummet bjuder in till umgänge med sitt charmiga burspråk och utgång till den mysiga balkongen. Här ryms både soffa och matbord – perfekt för både vardag och fest.

Ett inflyttningsklart hem att trivas i från första stund.

Varmt välkomna!

Visningar

Mäklare

Linda Friberg
Ansvarig mäklare
AwardBadge
Årets Mäklarkedja 2024
Vinnare av Boneo Awards
Bjurfors Hässleholm
Frykholmsgatan 5, Hässleholm
Agency
Agency
AwardBadge
Årets Mäklarkedja 2024
Vinnare av Boneo Awards
banner

Planritning

Tjänster

Bolån

Räkna på bolån för Gethornskroken 15B
nordeaAlltid personlig ränta på ditt bolånRäkna här
Jämför bolån från olika banker!
lanekollPersonlig hjälp hela vägen hem!Räkna direkt!
Bostaden du tittar på matchar med 333 personer i BoneoMatch™

Hur många vill köpa din bostad?

Vi matchar din bostad mot över 500 000 köpsugna personer som går på visningar just nu.

Loading...