linkedin pixel
Norra Sofielund, Malmö

Lönngatan 8B

Lägenhet2 rok57

Fakta

  • Pris1 495 000 kr
  • BoendetypLägenhet
  • Rum2 rok
  • Boyta57
  • UpplåtelseformBostadsrätt
  • Pris/m² 26 228 kr/m²
  • Byggnadsår1994
  • Dagar på Boneo5 dagar
  • Våning 1 av 2
  • HissNej
  • Månadsavgift4 718 kr

Beskrivning

Välkommen till denna tvåa som erbjuder fin planlösning & radhuskänsla i omtyckta Sofielund!

Bostaden är i ett större uppfräschningsbehov samt i renoveringsbehov på sina håll. Lägenheten är rökskadad (tobaksrök).
Vänligen kontakta ansvarig mäklare eller extra kontaktperson för ytterligare information.

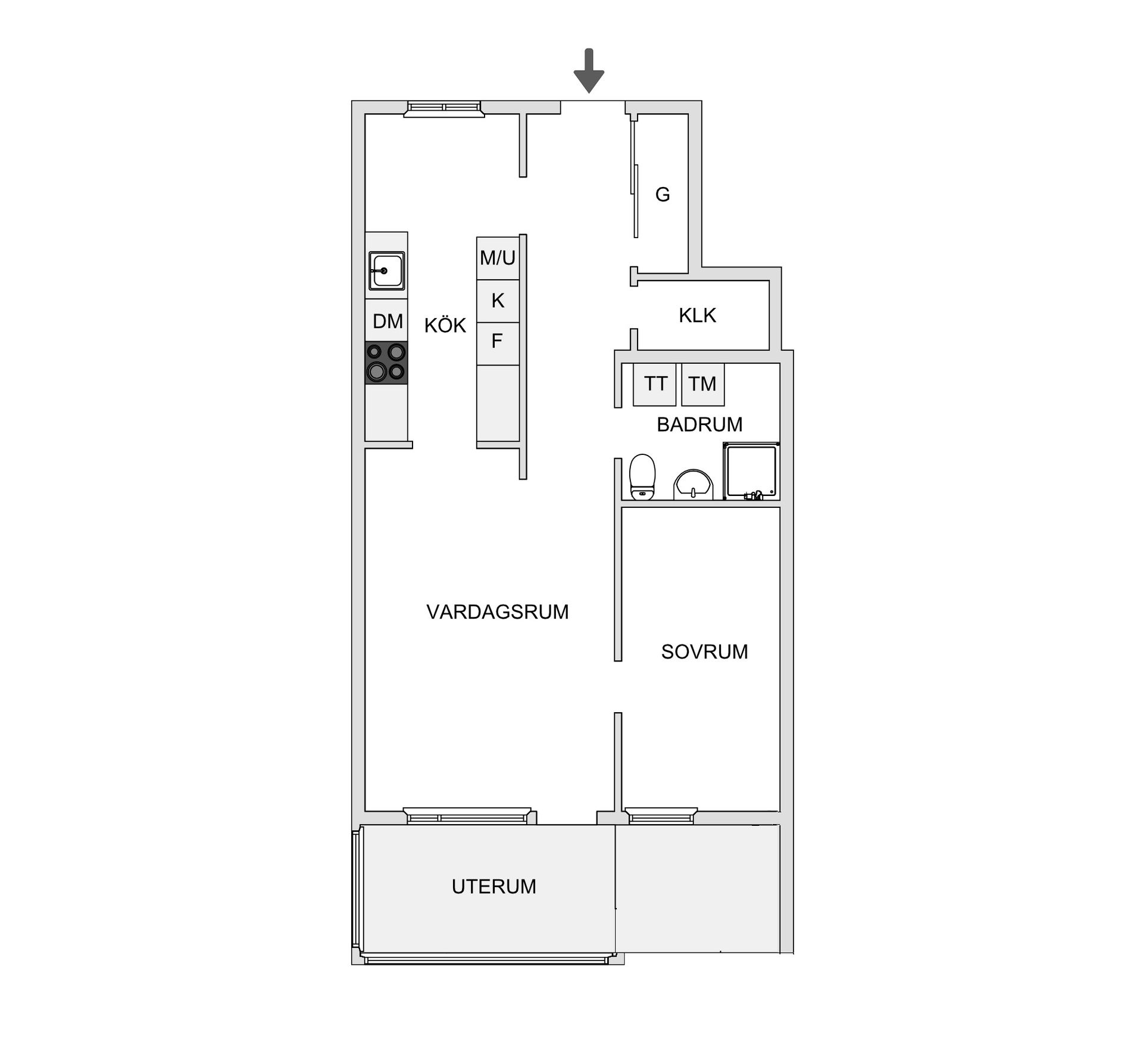
Bostaden erbjuder genomgående planlösning med utgång till uteplats och uterum i perfekt västerläge. Separat kök med plats för matbord, rymligt vardagsrum och ett sovrum med plats för både dubbelsäng och skrivbord. Bra förvaringsmöjligheter finns i hallen med skjutdörrsgarderob samt separat klädkammare.

I den välskötta föreningen finns både lekplats, grillplats och boulebana, samt en trivsam lokal som går att hyra för fest och gemenskap. Den inhägnade gården nås endast med passerbricka, vilket skapar en trygg och privat miljö.

Läget är centralt och eftertraktat samt med promenadavstånd till Möllevångstorget, Folkets Park och det pulserande stadslivet.
För pendlaren ligger både Södervärn och Triangeln nära, och det är även enkelt att nå inre Ringvägen.
Mobilia köpcentrum och grönskande Pildammsparken inom bekvämt räckhåll.

Lägenheten kommer att säljas i befintligt skick utan att städas och tömmas av ägaren!
Vill du veta mer? Du når mig på 0722-520346!

Visningar

Mäklare

Allen Markenbjörk
Ansvarig mäklare
Allen Markenbjörk
HusmanHagberg Malmö
Arena, Triangeln 4, Malmö
Agency
Agency
banner

Planritning

Tjänster

Bolån

Räkna på bolån för Lönngatan 8B
nordeaAlltid personlig ränta på ditt bolånRäkna här
Jämför bolån från olika banker!
lanekollPersonlig hjälp hela vägen hem!Räkna direkt!
Bostaden du tittar på matchar med 1 515 personer i BoneoMatch™

Hur många vill köpa din bostad?

Vi matchar din bostad mot över 500 000 köpsugna personer som går på visningar just nu.

Loading...