linkedin pixel
Fullskärm
Fullskärm
externalLinkIconAlla bilder
På G!
Först på Boneo
Villa8 rok198 + 981 035 m² tomt

Fakta om bostaden

  • BoendetypVilla
  • Antal rum8 rok
  • Boyta198
  • UpplåtelseformFriköpt
  • Biarea98
  • Tomtarea1 035 m²
  • Byggnadsår1938

Beskrivning

Välkommen till Oskarsgatan 15 i Huskvarna, en fastighet med gott om intäkter och möjligheter.
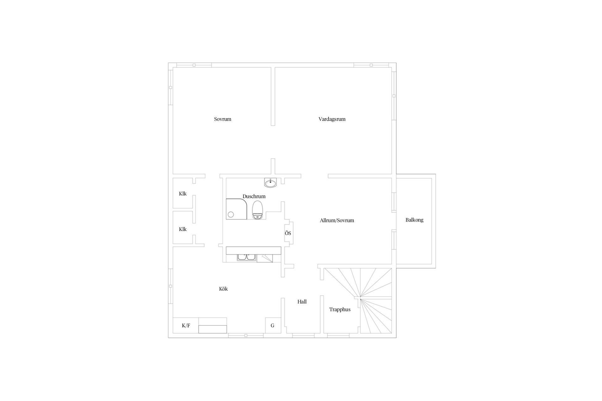
Detta hus har fyra våningsplan inklusive källare och inredd vind, är renoverat och genomtänkt utformat för att erbjuda en både spännande och funktionell planlösning.

Lägenhet 1

Ljus 2 rok med altan, parkett i vardagsrum, helkaklat duschrum och klassiskt kök.
Hyresintäkt: 10 000 kr/mån.

Lägenhet 2

Rymlig 3 rok med balkong, fiskbensparkett, stort kök och fräscht duschrum.
Hyresintäkt: 5 000 kr/mån.

Lägenhet 3

Praktisk 1,5 rok med pentry, ljust vardagsrum och separat dusch och wc.
Hyresintäkt: 9 500 kr/mån.

Fastighetenbeskrivning:

Totala intäkter: 306 000 kr/år

Driftkostnader: 86 441 kr/år

VA: 17 192 kr

Uppvärmning/El: 60 034 kr

Renhållning: 6 215 kr

Redovisning/bokföring: 3 000 kr

Driftnetto: 219 559 kr/år

Trots det centrala läget i Huskvarna är denna fastighet otroligt privat och fridfull. På bekvämt promenadavstånd finner du Engelska skolan, Folkets park och Huskvarnas centrum, vilket ger dig tillgång till allt du behöver inom räckhåll. Grönskan runt om huset ger en naturlig avgränsning mot omgivningen och ger dig en känsla av ro och avskildhet. Ett fristående garage och en stor uppfart med gott om plats för flera bilar gör parkeringsbekymmer till ett minne blott.

Runt knuten finns busshållplats och det är enkelt att ta sig ut på omkringliggande motorvägar för pendling.
Missade inte chansen att bli ägare till detta renoverade drömhus på Jägarbacken 9 i Huskvarna - ett perfekt hem i harmoni med oslagbar utsikt och fantastiskt läge.

På G!
Först på Boneo
Huskvarna - Söder, Jönköping

Oskarsgatan 15

Villa8 rok198 + 981 035 m² tomt

Mäklare

Mäklare

AwardBadge
Årets Mäklarkedja 2024, 2025
Vinnare av Boneo Awards
banner

Tjänster

Bolån

Räkna på bolån för Oskarsgatan 15
nordeaAlltid personlig ränta på ditt bolånRäkna här
Jämför bolån från olika banker!
lanekollPersonlig hjälp hela vägen hem!Räkna direkt!
Bostaden du tittar på matchar med 121 personer i BoneoMatch™

Hur många vill köpa din bostad?

Vi matchar din bostad mot över 500 000 köpsugna personer som går på visningar just nu.

Loading...
På G!
Först på Boneo
Huskvarna - Söder, Jönköping

Oskarsgatan 15

Villa8 rok198 + 981 035 m² tomt

Mäklare

Mäklare

AwardBadge
Årets Mäklarkedja 2024, 2025
Vinnare av Boneo Awards