linkedin pixel
Djupadal, Malmö

Bispgatan 51

Villa7 rok173 + 99757 m² tomt

Fakta

  • Pris10 750 000 kr
  • BoendetypVilla
  • Rum7 rok
  • Boyta173
  • UpplåtelseformFriköpt
  • Biarea99
  • Tomtarea757 m²
  • Pris/m² 62 139 kr/m²
  • Byggnadsår1956
  • Dagar på Boneo4 dagar

Beskrivning

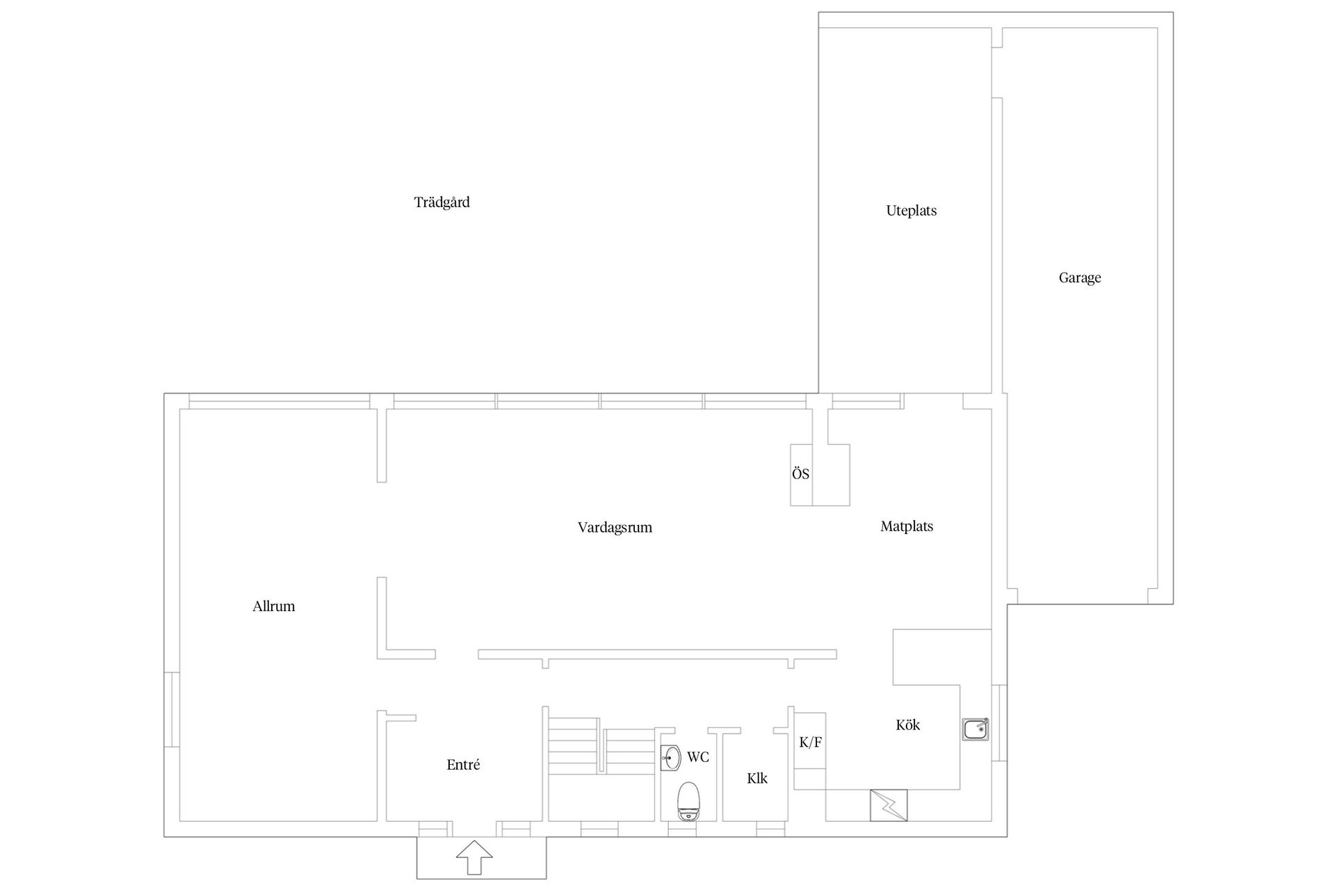
Välkommen till detta charmiga 50-talshus där klassisk karaktär möter modern komfort. Huset bjuder på generösa sociala ytor med vardagsrum, matplats och kök i öppen planlösning – perfekt för både vardagsliv och festliga tillställningar. Det nyrenoverade och stilrena köket erbjuder gott om arbetsyta och smart förvaring, medan den murade öppna spisen tillsammans med den teglade väggen ger hemmet en varm och inbjudande atmosfär. Vackra glasdörrar skiljer vardagsrummet från det intilliggande sällskapsrummet. De stora fönsterna mot trädgården släpper in massor av ljus.

Trädgården, som ligger i västerläge, är en grönskande oas med gott om plats för aktiviteter och odling för den intresserade. Här kan hela familjen njuta av både lek och avkoppling. Ta gärna ett dopp i spabadet och njut av en klar stjärnhimmel!

På övre plan finns en privat sovrumsavdelning med fem sovrum – perfekt för familjen som behöver gott om plats. Källaren är fräsch och rymlig med bra takhöjd. Badrummet på övre plan kompletteras med ett superfint badrum i källaren. Här är det riktig spakänsla! I källaren finns både ett stort allrum som fungerar utmärkt som ungdomarnas umgängesyta och ett rymligt gästrum intill. Totalt finns två badrum och två gästwc i huset, vilket gör vardagen smidig för både familj och gäster.

Läget är suveränt! Det är cykelavstånd till både Limhamn och Hyllie samt gångavstånd till Djupadalsskolan – ett läge som kombinerar lugn villaidyll med närhet till service, skolor och kommunikationer. Ni kommer uppskatta närheten till Djupadalsparken. Fina promenadstråk och blomstrande odlingslotter ligger runt husknuten - perfekt för hundpromenaden och barnlek.

En stor fördel är att många kostsamma renoveringar är gjorda såsom t ex dränering, byte elstammar, byte vattenstammar, badrumsrenovering och köksrenovering.

Här flyttar ni in ett hem som verkligen har allt: karaktär, rymd, sociala ytor och en underbar trädgård att njuta av – redo för nya ägare att skapa minnen för många år framöver.

Välkommen på visning!

Visningar

Mäklare

Sofia Nebrelius
Ansvarig mäklare
AwardBadge
Årets Mäklarkedja 2024
Vinnare av Boneo Awards
Bjurfors Limhamn
Järnvägsgatan 20, LIMHAMN
Agency
Agency
AwardBadge
Årets Mäklarkedja 2024
Vinnare av Boneo Awards
banner

Planritning

Tjänster

Bolån

Räkna på bolån för Bispgatan 51
nordeaAlltid personlig ränta på ditt bolånRäkna här
Jämför bolån från olika banker!
lanekollPersonlig hjälp hela vägen hem!Räkna direkt!
Bostaden du tittar på matchar med 794 personer i BoneoMatch™

Hur många vill köpa din bostad?

Vi matchar din bostad mot över 500 000 köpsugna personer som går på visningar just nu.

Loading...