linkedin pixel
På G!
Långbro Park, Stockholm

Johan Skyttes väg 392

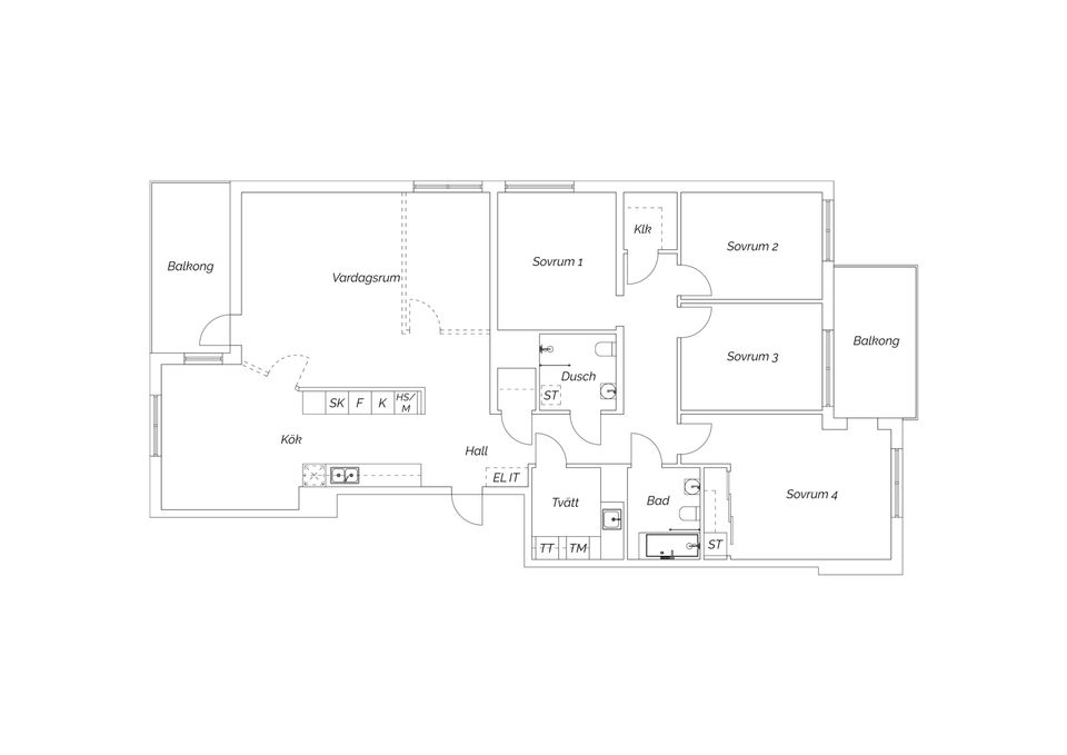
Lägenhet5 rok137

Fakta

  • BoendetypLägenhet
  • Rum5 rok
  • Boyta137
  • UpplåtelseformBostadsrätt
  • Byggnadsår2013
  • Våning 2 av 4
  • HissJa
  • Månadsavgift9 985 kr

Beskrivning

Två balkonger
Öppen planlösning mellan kök och vardagsrum
Fullutrustat kök med vinkyl
Tre bra sovrum, plats för hela familjen eller hemmakontor
Två badrum + separat tvättstuga
Garage i huset & källarförråd
Cykelrum, barnvagnsrum och tillgång till odlingslådor i föreningen
Grönskande innergård med utemöbler
Nära kommunikationer, service, skolor och natur

Mäklare

Christian Grsic
Ansvarig mäklare
Erik Olsson Fastighetsförmedling
Störtloppsvägen 18, Hägersten
Agency
Agency
banner

Planritning

Tjänster

Bolån

Räkna på bolån för Johan Skyttes väg 392
nordeaAlltid personlig ränta på ditt bolånRäkna här
Jämför bolån från olika banker!
lanekollPersonlig hjälp hela vägen hem!Räkna direkt!

Hur många vill köpa din bostad?

Med BoneoMatch™ ser du hur många som letar efter en liknande bostad i ditt område.

Läs mer
Loading...