linkedin pixel
Tillbaka till sökresultatet
Fullskärm
Fullskärm
Tillbaka till sökresultatet
externalLinkIconAlla bilder
På G!
Först på Boneo
Lägenhet2,5 rok97

Fakta om bostaden

  • Pris2 495 000 kr
  • BoendetypLägenhet
  • Antal rum2,5 rok
  • Boyta97
  • UpplåtelseformBostadsrätt
  • Kvadratmeterpris (kr/m²) 25 722 kr/m²
  • Byggnadsår1898
  • Våning 3 av 3
  • HissNej
  • Avgift till föreningen5 698 kr/mån

Beskrivning

Välkommen till en elegant och tidlös 2,5-rumslägenhet belägen högst upp i en vacker sekelskiftesfastighet mitt i centrala Växjö. Här bor ni i ett hem där klassiska detaljer möter modern komfort – med en lugn, grönskande innergård som kontrast till det levande stadslivet precis utanför porten. Dessutom finns det tillgång till en gemensam balkong mot innergården – en perfekt plats för en stunds avkoppling.

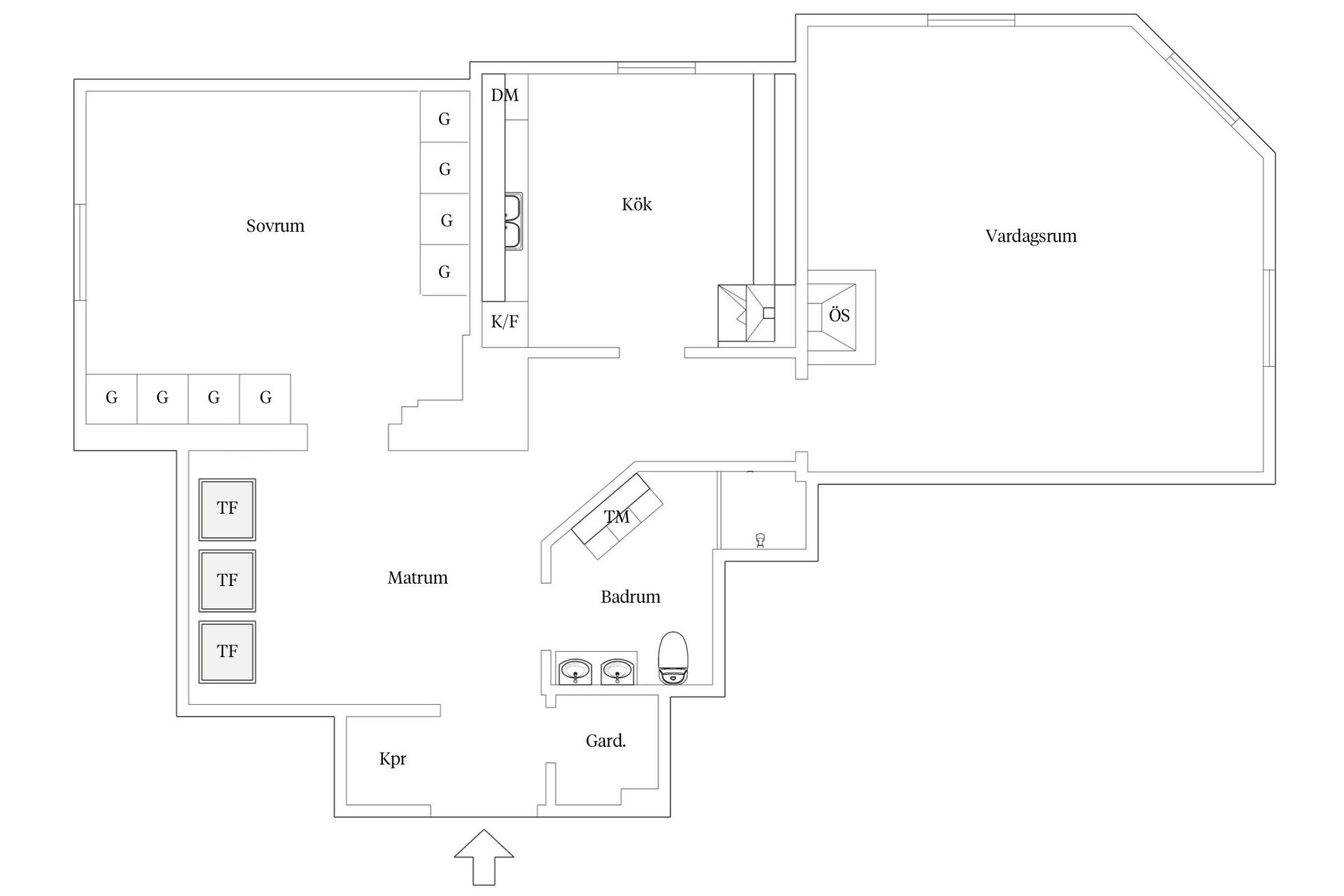
Bostaden är en representativ våning med generös takhöjd och med bevarad sekelskiftescharm såsom takrosetter, stuckatur, öppen spis och vackra dörrfoder. Den naturliga planlösningen skapar ett luftigt flöde mellan rummen, där fönsterpartierna bidrar med rikligt ljusinsläpp och förstärker känslan av rymd.

Lägenheten erbjuder ett charmigt och funktionellt kök med tidstypiska detaljer som harmonierar med bostadens stil – perfekt för såväl vardag som middagar med vänner. Det nyrenoverade badrummet är smakfullt inrett med moderna materialval och har dessutom en integrerad tvättdel med arbetsbänk och tvättmaskin – en praktisk lösning som förenklar vardagen. Den luftiga hallen binder samman bostadens rum på ett naturligt sätt och är tillräckligt stor för att idag fungera som en trevlig matsalsdel, vilket skapar extra sällskapsyta. Det rymliga sovrummet erbjuder gott om förvaring och en rofylld plats för återhämtning.

Det här är ett hem för er som söker något utöver det vanliga – där historisk charm kombineras med nutida bekvämlighet, i ett av stadens mest eftertraktade lägen.

Bostadens cityläge gör att ni har bekvämt avstånd till allt. Som granne finner ni Regionteatern, Kulturskolan och Ringsbergskolan som skapar en kulturell och kreativ miljö. Centrums stora utbud med mysiga butiker och prisbelönta restauranger adderar mervärde och livskvalitet. Naturen njuter ni av genom att ta en promenad runt Växjösjön och endast ett stenkast från boendet ligger Ringsbergs vackra ekar och den grönskande Hovsbergsparken. Dessutom tar ni er enkelt runt till resten av Växjö och andra städer genom pulserande resecentrum.
På G!
Först på Boneo
Centrum, Växjö

Kungsgatan 23

Lägenhet2,5 rok97

Mäklare

Mäklare

AwardBadge
Årets Mäklarkedja 2024, 2025
Vinnare av Boneo Awards
banner

Tjänster

Bolån

Räkna på bolån för Kungsgatan 23
nordeaAlltid personlig ränta på ditt bolånRäkna här
Jämför bolån från olika banker!
lanekollPersonlig hjälp hela vägen hem!Räkna direkt!
Bostaden du tittar på matchar med 63 personer i BoneoMatch™

Hur många vill köpa din bostad?

Vi matchar din bostad mot över 500 000 köpsugna personer som går på visningar just nu.

Loading...
På G!
Först på Boneo
Centrum, Växjö

Kungsgatan 23

Lägenhet2,5 rok97

Mäklare

Mäklare

AwardBadge
Årets Mäklarkedja 2024, 2025
Vinnare av Boneo Awards