linkedin pixel
På G!
Först på Boneo
Prästgårdsområdet, Båstad

Långagärdsvägen 30

Villa6 rok153 + 64875 m² tomt

Fakta

  • Pris2 995 000 kr
  • BoendetypVilla
  • Rum6 rok
  • Boyta153
  • UpplåtelseformFriköpt
  • Biarea64
  • Tomtarea875 m²
  • Pris/m² 19 575 kr/m²
  • Byggnadsår1978

Beskrivning

Högt och fritt läge

Välkommen till Långagärdsvägen 30 – en välskött suterrängvilla med ett högt och fritt läge på en lugn återvändsgata i omtyckta Prästgårdsområdet i Förslöv. Här bor du med utsikt mot Hallandsåsen, nära skola, förskola, idrottsplats och tågstation – perfekt för den aktiva familjen.

Huset är uppfört i trä med klassisk röd fasad och grönmålade detaljer, omgiven av en lummig trädgård med gräsmatta, fruktträd och blommande klätterväxter. Flera uteplatser gör det enkelt att följa solen under dagen, och tomten gränsar till ett trevligt grönområde som ger extra rymd och lugn.

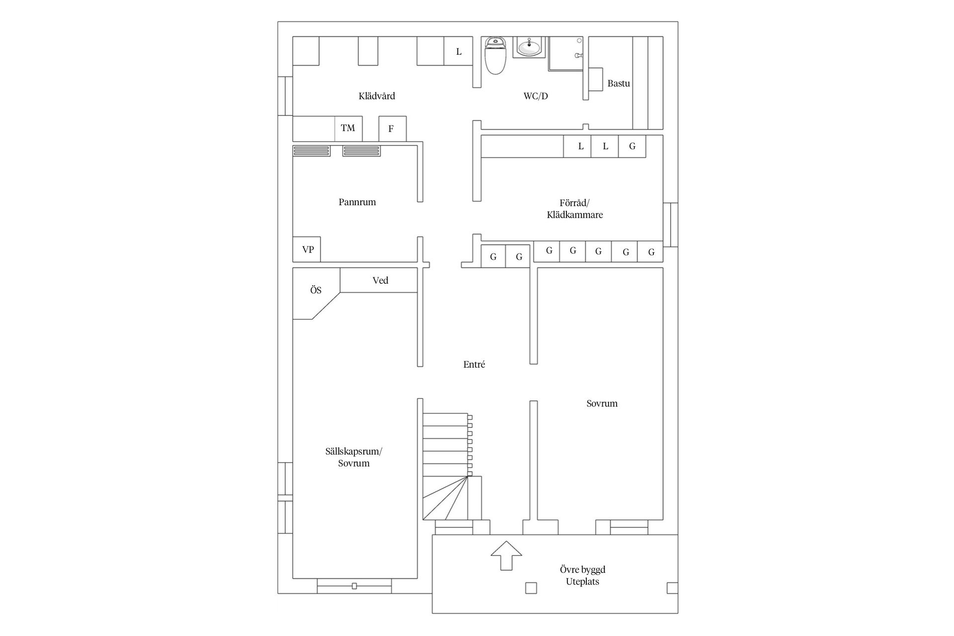
Entréplanet rymmer ett sällskapsrum med eldstad, ett sovrum, badrum med bastu, tvättrum och goda förrådsutrymmen – en praktisk och flexibel del som passar lika bra för gäster som tonårsbarn eller hemarbete. Från detta plan nås även en skyddad uteplats under husets balkong.

På övre plan finns vardagsrum, kök och matplats i öppen planlösning, med stora fönster och utgång till en härlig balkong. Härifrån ser man bort mot åsen och de gröna omgivningarna. På samma våningsplan finns tre sovrum, badrum samt gott om garderober.

Huset har löpande underhållits och förmedlar en tydlig känsla av omsorg. Läget på återvändsgata, med det fina grönområdet intill och den välplanerade interiören gör detta till ett mycket trivsamt och tryggt hem för barnfamiljen som söker lugn, närhet och en praktisk vardag.

Övrigt: golvbeläggning i trä och laminat, granitbänkskiva i kök, provtryckt och godkänd skorsten. Kassaskåp i källare ingår i köpet (endast en nyckel finns). Kombinerad tvättmaskin och torktumlare.

Mäklare

Maria Nygren
Ansvarig mäklare
AwardBadge
Årets Mäklarkedja 2024
Vinnare av Boneo Awards
Bjurfors Båstad
Köpmangatan 4, Båstad
Agency
Agency
AwardBadge
Årets Mäklarkedja 2024
Vinnare av Boneo Awards
banner

Planritning

Tjänster

Bolån

Räkna på bolån för Långagärdsvägen 30
nordeaAlltid personlig ränta på ditt bolånRäkna här
Jämför bolån från olika banker!
lanekollPersonlig hjälp hela vägen hem!Räkna direkt!
Bostaden du tittar på matchar med 106 personer i BoneoMatch™

Hur många vill köpa din bostad?

Vi matchar din bostad mot över 500 000 köpsugna personer som går på visningar just nu.

Loading...