linkedin pixel
På G!
Först på Boneo
Valbo, Gävle

Skolvägen 12H

Lägenhet3 rok76

Fakta

  • Pris1 795 000 kr
  • BoendetypLägenhet
  • Rum3 rok
  • Boyta76
  • UpplåtelseformBostadsrätt
  • Pris/m² 23 618 kr/m²
  • Våning 1 av 2
  • HissNej
  • Månadsavgift5 001 kr

Beskrivning

Välkommen till en gavellägenhet utöver det vanliga!

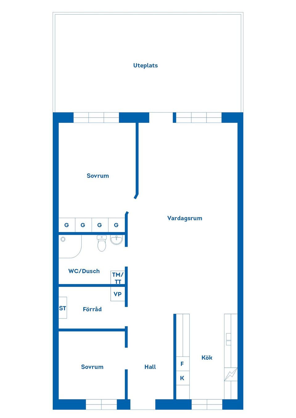
Bostaden disponeras med tre rum och kök om 76 kvm med en fantastisk takhöjd på närmare 3 meter. Här finns egen ingång direkt i markplan, fin öppen planlösning och uteplats i ett härligt söderläge. Lägenheten med byggår 2015 har dessutom en ljus färgsättning, påkostade val som; Marbodalkök med bänkskiva i sten, rostfria vitvaror, parkettgolv, klinker i hall och genomgående golvvärme.

Planlösningen i bostaden är väl genomtänkt med härlig öppen yta mellan köksdel och vardagsrum för socialt umgänge, vilken rymmer både soffgrupp och matbord. Dessutom två rymliga sovrum, ett stilrent helkaklat badrum med tvättpelare samt förråd. Från vardagsrummet har du direkt utgång till den egna trädgårdstäppan där du kan njuta av solen. Lägenheten är belägen på en gavel, vilket ger ett ostört och stillsamt boende.

Bostaden ligger i populära Valbo med goda förbindelser till Gävle, härifrån tar det ca 10 minuter med bil in till City. Här finns möjlighet till p-plats med laddstolpe för elbil samt promenadavstånd till närmaste busshållplats. Barnvänligt område med närhet till kommunikationer, förskola, skola, hälsocentral och Valbo Köpcentrum.

Varmt välkommen att kontakta ansvarig mäklare för mer information!

Eva Fällström, LF Fastighetsförmedling
073-801 38 89

Mäklare

Eva Fällström
Ansvarig mäklare
LF Fastighetsförmedling Gävle
Drottninggatan 35, Gävle
Agency
Agency
banner

Planritning

Tjänster

Bolån

Räkna på bolån för Skolvägen 12H
nordeaAlltid personlig ränta på ditt bolånRäkna här
Jämför bolån från olika banker!
lanekollPersonlig hjälp hela vägen hem!Räkna direkt!

Hur många vill köpa din bostad?

Med BoneoMatch™ ser du hur många som letar efter en liknande bostad i ditt område.

Läs mer
Loading...