linkedin pixel
Gamla Limhamn, Malmö

Gamla gatan 6

Villa13 rok391 + 261 593 m² tomt

Fakta

  • Pris32 000 000 kr
  • BoendetypVilla
  • Rum13 rok
  • Boyta391
  • UpplåtelseformFriköpt
  • Biarea26
  • Tomtarea1 593 m²
  • Pris/m² 81 841 kr/m²
  • Dagar på Boneo6 dagar

Beskrivning

Smågatsten i bågmönster glänser under höstsolens milda strålar. Längs trottoarerna radar gathus i olika former och karaktärer upp sig med solida fasader av puts och handslagen tegel. Gamla gatan är utan tvekan en idyll men också en plats som bär på en lång historia. Gatan var inte bara en naturlig huvudled mellan kalkbrott och kalkbruk, utan också en livlig affärsgata från mitten av 1800-talet och framåt. På nummer 6, där Sarvgränd förgrenar sig i riktning mot havet, breder den långa huskroppen med fasad av kalkputs ut sig. De spröjsade fönsterraderna, liksom entrédörren och portarna är målade i en mossgrön ton. Uttrycket är rakt igenom tidstroget och välskött med en inramning av kullersten, marktegel och rosenrabatter. Att fastigheten inte enbart består av detta gathus, utan är del av en kringbyggd gård, är en välbevarad hemlighet sett från gatan.

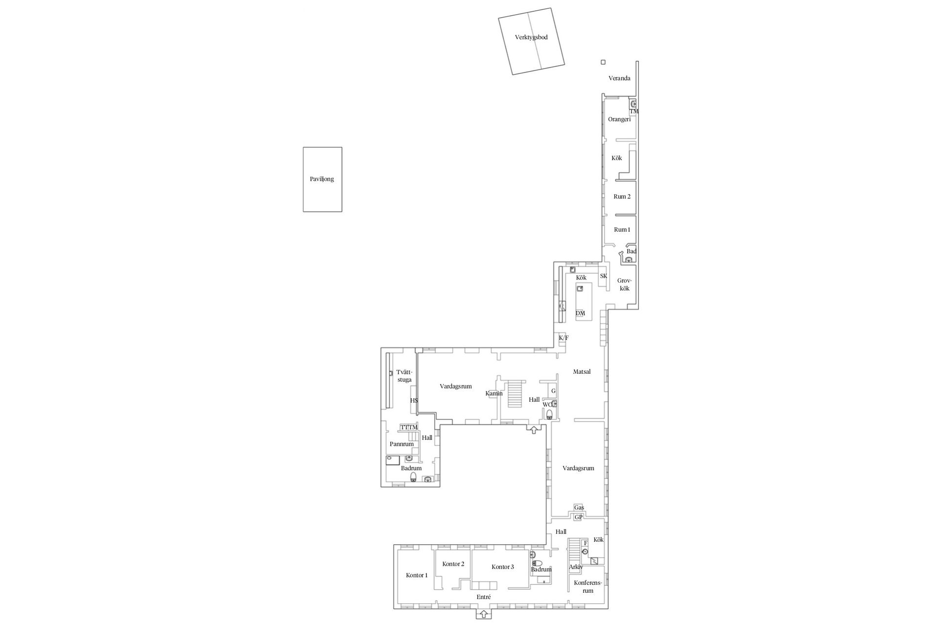
När Gallagården uppfördes är okänt men benämns redan 1840 och delar av fastigheten härstammar troligtvis ännu längre tillbaka, från 1700-talet. Gården består av fem kringbyggda huslängor med en total boyta om cirka 600 kvadratmeter och en insynsskyddad tomt på närmare 1 600 kvadratmeter. Namnet på gården kommer från husar Ola Nilsson Gall som öppnade en populär restaurang 1849 i huset utåt gatan efter att främst ha sysslat med jordbruk, djurhållning och fiske. Krogen som öppnades för att locka resande fiskare blev en omedelbar succé. Inte enbart för maten och brännvinet som serverades utan även för de originella gästerna som stod för underhållningen. Besökarna sägs ha bestått av allt från apor, björnar och kameler till musikanter och knivkastare. Om väggarna kunde tala hade det sannolikt funnits historier för att fylla ett helt bibliotek. Idag används gathuset för en betydligt lugnare verksamhet; revisionsbyrå, som välkomnar kunder praktiskt från entrén utåt gatan. En betydlig mer avskild placering har bostadsdelen, gästbostaden och den drömlika trädgården på andra sidan. Möjligheterna för att disponera fastigheten är i princip gränslösa. Kanske blir det ett kontor, gästlägenheter, butik, generationsboende, konstnärsateljé? Fastigheten erbjuder en enastående chans att förverkliga bostadsdrömmen i kombination med arbete eller uthyrning för intäkter.

Det var något av en räddningsaktion som ägde rum när den nuvarande ägaren förvärvade den då tomma, förfallna och rivningshotade byggnaden 2010. Den långa resan att restaurera och återuppbygga byggnaderna påbörjades året efter förvärvet och stod klart 2025. Allt, in i minsta lilla detalj, har utförts på ett genomgående hantverksmässigt och tidstroget vis - utan några som helst kompromisser. Uteslutande exklusiva material i tidsenlig anda och gediget återbruk med snickerilösningar som noga anpassats för varje rum har använts hela vägen igenom, Retrospegeldörrar används i hela fastigheten, varav några specialtillverkades för att passa de sluttande väggarna på andra våningen. För att säkerställa den höga kvaliteten hela vägen igenom anlitades en dansk murare med gedigen kunskap i hantverk och traditionella byggnadsmetoder. Även om det mesta är nytt och återuppbyggt finns en del bevarade skatter från huset kvar såsom bjälkar, fönsterbänkar av sten och eldstäder. Gemensamt för hela fastigheten är det enhetliga uttrycket som råder med en utsökt balans mellan samtida funktioner och svunna tiders karaktär. Golvytor av trä i ask, väggar och valv av handslagen tegel, svarta strömbrytare från Renova, grönmålade, gråmålade lister och vägguttag i tidsenlig stil är genomgående inslag i hela fastigheten. Tomten erbjuder flera miljöer såsom en kringbyggd innergård, medelhavspassage, flera stenlagda uteplatser och en damm med gångbro som leder till en parkliknande trädgårdsdel. Allt har planerats och anlagts i samråd med en trädgårdsarkitekt.

Tre år efter den påbörjade renoveringen belönades Gallagården med Limhamns Miljöförenings bevarandepris 2014. Här vilar konsten fridfullt och vackert i återskapandet. Där varje detalj känns naturlig och utstrålar en osedvanlig hantverksmässig kvalitet. Ett historiskt hem som ger dig en fristad nära stadens puls.

Visningar

Mäklare

Ali Majeed
Ansvarig mäklare
AwardBadge
Årets Mäklarkedja 2024
Vinnare av Boneo Awards
Bjurfors Malmö City
Tessins väg 2, Malmö
Agency
Agency
AwardBadge
Årets Mäklarkedja 2024
Vinnare av Boneo Awards
banner

Planritning

Tjänster

Bolån

Räkna på bolån för Gamla gatan 6
nordeaAlltid personlig ränta på ditt bolånRäkna här
Jämför bolån från olika banker!
lanekollPersonlig hjälp hela vägen hem!Räkna direkt!

Hur många vill köpa din bostad?

Med BoneoMatch™ ser du hur många som letar efter en liknande bostad i ditt område.

Läs mer
Loading...