linkedin pixel
Tillbaka till sökresultatet
Fullskärm
Fullskärm
Tillbaka till sökresultatet
På G!
Först på Boneo
Lägenhet5 rok139

Fakta om bostaden

  • BoendetypLägenhet
  • Antal rum5 rok
  • Boyta139
  • UpplåtelseformBostadsrätt
  • Byggnadsår1962
  • Våning 1
  • HissJa
  • Avgift till föreningen6 500 kr/mån

Beskrivning

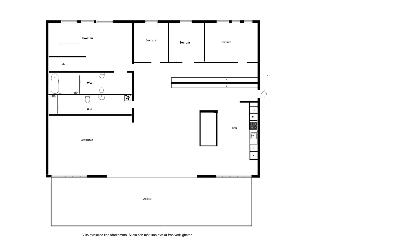
I hjärtat av Vasastan döljer sig ett hem som andas exklusivitet och finess. På 139 kvm öppnar sig generösa ytor där varje detalj är omsorgsfullt vald för att skapa harmoni och stil. Fyra sovrum, två sofistikerade badrum och öppna sällskapsytor ger utrymme för både representation och avskild ro. Från vardagsrummet når du bostadens stolthet och pricken på I:et – en magnifik uteplats om hela 40 kvadratmeter. Här kan du njuta av morgonkaffet i solen, duka upp långa middagar under stjärnorna eller helt enkelt luta dig tillbaka i en egen grönskande fristad, skyddad från stadens brus.


Välkommen till en bostad där varje detalj är genomtänkt för att skapa en känsla av exklusivitet, rymd och komfort. Denna unika femrummare om generösa 139 kvadratmeter kombinerar elegans och funktion på ett sätt som sällan erbjuds i Stockholms innerstad.

Representativa sällskapsytor
Här möts man av en inbjudande planlösning med luftiga rumshöjder och ett naturligt ljusinsläpp som flödar genom stora fönsterpartier. Vardagsrum och matsal smälter samman till en social yta perfekt för både vardag och fest.

Privat oas mitt i stan
Från vardagsrummet når du bostadens stolthet – en magnifik uteplats om hela 40 kvadratmeter. Här kan du njuta av morgonkaffet i solen, duka upp långa middagar under stjärnorna eller helt enkelt luta dig tillbaka i en egen grönskande fristad, skyddad från stadens brus.

Genomtänkt boende för hela familjen
Fyra rogivande sovrum ger gott om plats för både familj och gäster. Två stilfullt inredda badrum, varav det ena med badkar, erbjuder vardagslyx och bekvämlighet. Materialvalen är sobra och påkostade, med tidlös design som håller över tid.

Ta chansen i akt redan idag och anmäl ditt intresse för förhandsinformation och möjlighet till privatvisning.
Kontakta ansvarig mäklare Fredrik Aarskog på 070 165 94 99
På G!
Först på Boneo
Vasastan - Sibirien, Stockholm

Tulegatan 49, En innerstadsoas med internationell elegans!

Lägenhet5 rok139

Mäklare

banner

Tjänster

Bolån

Räkna på bolån för Tulegatan 49, En innerstadsoas med internationell elegans!
nordeaAlltid personlig ränta på ditt bolånRäkna här
Jämför bolån från olika banker!
lanekollPersonlig hjälp hela vägen hem!Räkna direkt!
Bostaden du tittar på matchar med 618 personer i BoneoMatch™

Hur många vill köpa din bostad?

Vi matchar din bostad mot över 500 000 köpsugna personer som går på visningar just nu.

Loading...
På G!
Först på Boneo
Vasastan - Sibirien, Stockholm

Tulegatan 49, En innerstadsoas med internationell elegans!

Lägenhet5 rok139

Mäklare