linkedin pixel
Fullskärm
Fullskärm
externalLinkIconAlla bilder
På G!
Först på Boneo
Fritidshus4 rok1301 920 m² tomt

Fakta om bostaden

  • Pris5 250 000 kr
  • BoendetypFritidshus
  • Antal rum4 rok
  • Boyta130
  • UpplåtelseformFriköpt
  • Tomtarea1 920 m²
  • Kvadratmeterpris (kr/m²) 40 385 kr/m²
  • Byggnadsår1980

Beskrivning

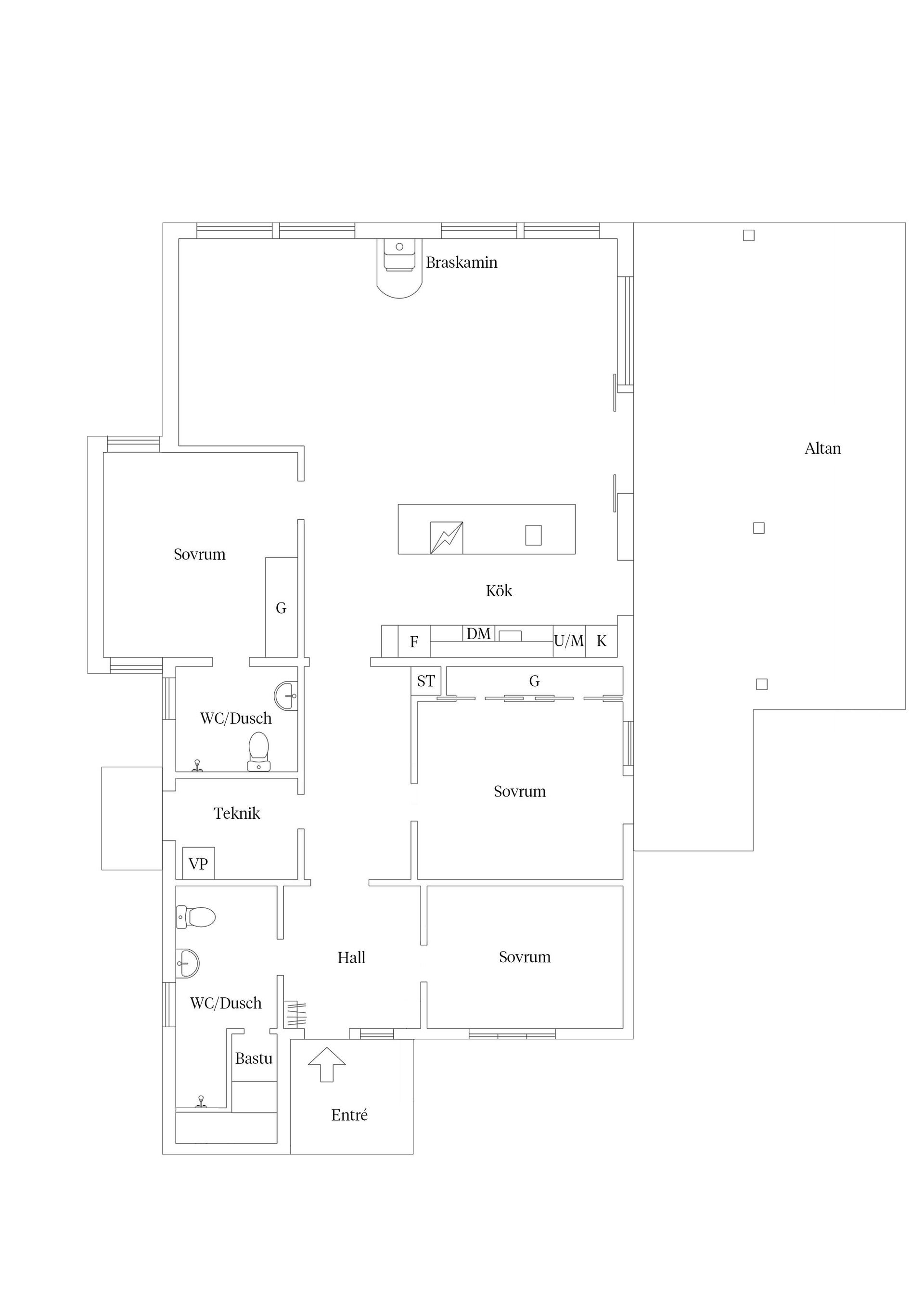
Välkommen till ett boende som kombinerar hög komfort, stilren design och naturnära livskvalitet - med ett fantastiskt strandläge vid vackra Hornsjön. Denna välplanerade enplansvilla om 130 m² erbjuder ett genomtänkt hem med vattenburen golvvärme i samtliga rum, exklusiva materialval och en boendemiljö som passar lika bra för året runt-boende som för fritidshus.

Husets hjärta är det öppna köket och allrummet med imponerande takhöjd på fyra meter och stora fönsterpartier som ger ett fantastiskt ljusinsläpp och sjöutsikt. Det stilrena Ballingslöv-köket är fullutrustat med bl.a köksö, vinkyl och häll med integrerad fläkt allt för att passa den matlagningsintresserade som gärna bjuder in vänner och familj till umgänge. Här finns gott om arbetsytor och förvaring, vilket gör köket både praktiskt och estetiskt tilltalande. Den vedeldade kaminen skapar en varm och inbjudande atmosfär, perfekt för både vardagsmys och middagar med utsikt mot vattnet. Rummet bjuder in till socialt umgänge och blir en naturlig samlingspunkt för familj och vänner, oavsett årstid. En altandörr tillsammans med stort skjutdörrsparti som suddar ut gränsen mellan inne och ute, och knyter elegant ihop vardagsrummet med den generösa altanen - perfekt för sommarens måltider och avkoppling i solen.

Bostaden har tre sovrum, varav ett föräldrasovrum med direktaccess till ett eget "en-suite" badrum. Här finns gott om förvaring och vackra fönsterpartier som släpper in naturen. Det andra sovrummet har utgång till altanen och en garderobsvägg med skjutdörrar, medan det tredje är ett rofyllt rum med utsikt mot infarten. Badrummen är stilfullt inredda med helkaklade väggar, klinkergolv och stämningsfull belysning. Bastun erbjuder en egen hemmaspa-upplevelse - perfekt efter en dag ute i naturen.

Tvättstugan är praktisk med groventré och utgång till trädgården. Uppvärmningen sker via frånlufts-värmepump, vilket tillsammans med solceller ger en mycket god boendeekonomi och ett hållbart energisystem.

Utomhusmiljön är lika imponerande som insidan. Den stora altanen är delvis under tak och erbjuder plats för både loungedel och matgrupp. Intill strandkanten finns en grillplats med murad öppen spis och en brygga där du kan lägga till båten. Tomten är uppväxt och grönskande med ett fantastiskt strandläge vid Hornsjön. På fastigheten finns även ett isolerat dubbelgarage med elbilsladdare, ett charmigt båthus med gjuten sula, ett oisolerat förråd med garageportar - perfekt till förvaring av snöskoter eller motorcykel - samt en friggebod med förrådsutrymme och utedass. Läget är lugnt och naturnära längst in på återvändsgata, men ändå med goda pendlingsmöjligheter till Östersund. Här bor du med naturen som granne, med möjlighet till ett aktivt friluftsliv året runt - och samtidigt med bekvämt avstånd till stadens service. Nuvarande ägare disponerar även angränsande fastighet (Slåtte 1:21). Möjlighet finns för köpare att förvärva båda fastigheterna om köparen önskar ett generationsboende eller en plats där familj och vänner kan samlas.

Välkommen att uppleva ett boende där varje dag känns som en semester - med låg driftkostnad, hög livskvalitet och ett läge som är svårt att slå.
På G!
Först på Boneo
Slåtte-Österböle-Hållsta, Östersund

Slåtte 319

Fritidshus4 rok1301 920 m² tomt

Mäklare

Mäklare

AwardBadge
Årets Mäklarkedja 2024, 2025
Vinnare av Boneo Awards
banner

Tjänster

Bolån

Räkna på bolån för Slåtte 319
nordeaAlltid personlig ränta på ditt bolånRäkna här
Jämför bolån från olika banker!
lanekollPersonlig hjälp hela vägen hem!Räkna direkt!

Hur många vill köpa din bostad?

Med BoneoMatch™ ser du hur många som letar efter en liknande bostad i ditt område.

Läs mer
Loading...
På G!
Först på Boneo
Slåtte-Österböle-Hållsta, Östersund

Slåtte 319

Fritidshus4 rok1301 920 m² tomt

Mäklare

Mäklare

AwardBadge
Årets Mäklarkedja 2024, 2025
Vinnare av Boneo Awards