linkedin pixel
Tillbaka till sökresultatet
Fullskärm
Fullskärm
Tillbaka till sökresultatet
externalLinkIconAlla bilder
På G!
Först på Boneo
Villa8 rok1155 264 m² tomt

Fakta om bostaden

  • Pris1 925 000 kr
  • BoendetypVilla
  • Antal rum8 rok
  • Boyta115
  • UpplåtelseformFriköpt
  • Tomtarea5 264 m²
  • Kvadratmeterpris (kr/m²) 16 739 kr/m²
  • Byggnadsår1909

Beskrivning

Välkommen till detta trivsamma och karaktärsfulla hus som bjuder på både historia, charm och plats för hela familjen! Här på Kungsleden 14 bor du i ett lugnt område med närhet till både natur och service, samtidigt som du får ett hem med mycket känsla och många möjligheter.

Den röda träfasaden med vit snickarglädje ger huset sin klassiska och inbjudande karaktär. Den stora tomten omges av grönska och erbjuder generösa gräsytor för lek, odling eller bara avkoppling i solen. Här finns också en stor gårdsplan med gott om plats för flera bilar.

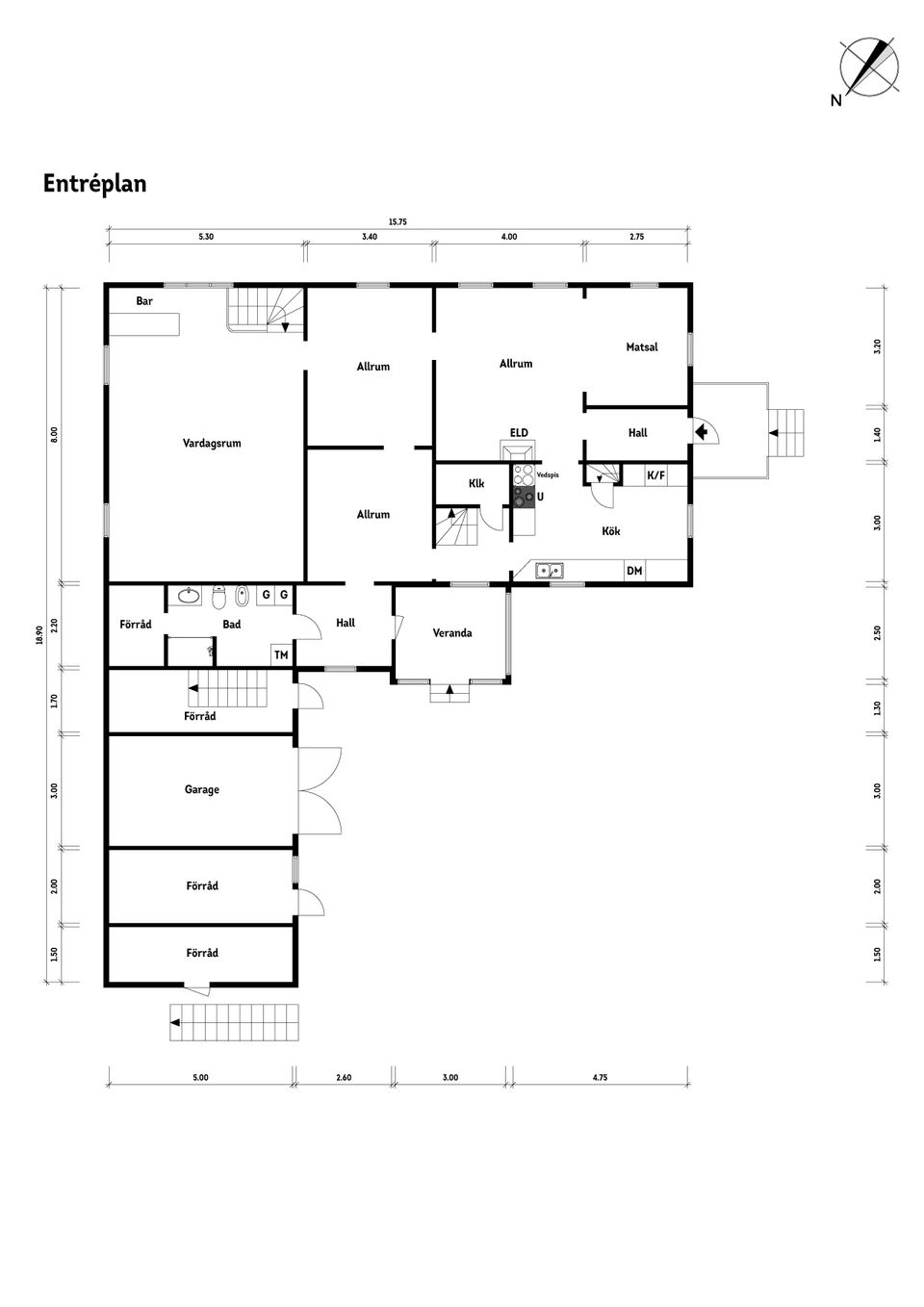
Invändigt möts du av en varm och hemtrevlig atmosfär. På entréplanet finner du de sociala ytorna med vardagsrum och matsal i fil, vackra parkettgolv och kaminer som sätter stämningen under årets kallare dagar. Fönstren i två väderstreck skapar ett härligt ljusinsläpp och bidrar till den öppna och inbjudande känslan. Köket är charmigt med en lantlig touch, gott om arbetsyta, förvaring och plats för mindre matbord. Här finns diskmaskin, spis och flera praktiska detaljer som gör vardagen smidig.

På övre plan finns ett ljust allrum som passar utmärkt som arbetsrum eller sällskapsyta samt två sovrum, varav det större har utgång till balkong – en perfekt plats för morgonkaffet med utsikt över trädgården.

Källarplanet bjuder på extra utrymme med med två förråd som ger gott om plats för förvaring, hobby eller spelrum. Dessutom finns ett inrett gästrum ovanpå garagebyggnaden, nåbart via separat ingång – idealiskt för tonåringen, gäster eller som hemmakontor.

Kungsleden 14 är ett hus som erbjuder mycket mer än vad som syns vid första anblick. Här finns utrymme, charm och potential att skapa ett riktigt drömhem i en trivsam miljö.

Välkommen att upptäcka möjligheterna på plats!
På G!
Först på Boneo
Eket, Örkelljunga

Kungsleden 14

Villa8 rok1155 264 m² tomt

Mäklare

banner

Tjänster

Bolån

Räkna på bolån för Kungsleden 14
nordeaAlltid personlig ränta på ditt bolånRäkna här
Jämför bolån från olika banker!
lanekollPersonlig hjälp hela vägen hem!Räkna direkt!

Hur många vill köpa din bostad?

Med BoneoMatch™ ser du hur många som letar efter en liknande bostad i ditt område.

Läs mer
Loading...
På G!
Först på Boneo
Eket, Örkelljunga

Kungsleden 14

Villa8 rok1155 264 m² tomt

Mäklare