linkedin pixel
Tillbaka till sökresultatet
Fullskärm
Fullskärm
Tillbaka till sökresultatet
externalLinkIconAlla bilder
På G!
Först på Boneo
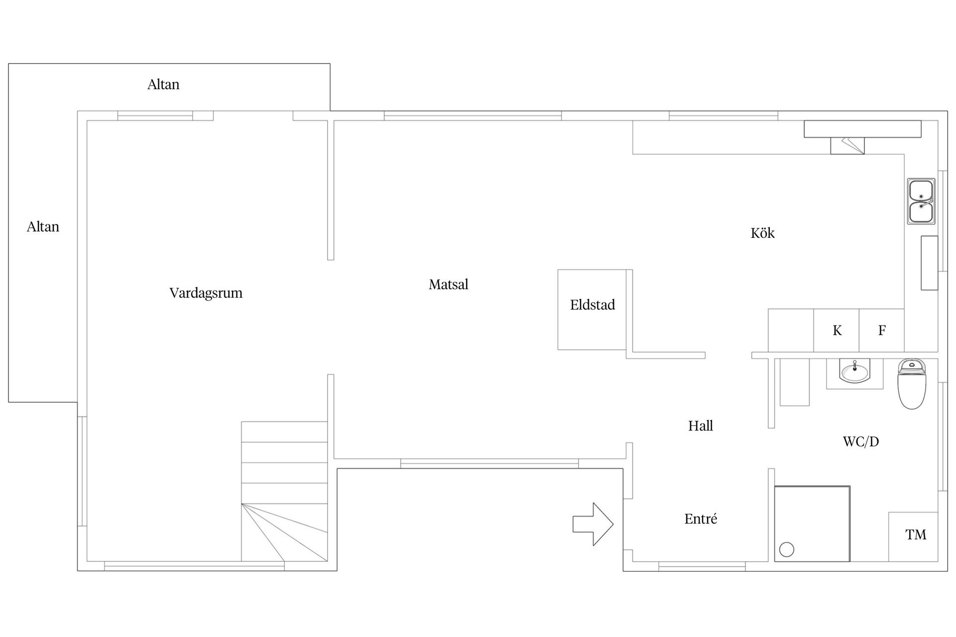
Fritidshus3 rok571 610 m² tomt

Fakta om bostaden

  • Pris5 995 000 kr
  • BoendetypFritidshus
  • Antal rum3 rok
  • Boyta57
  • UpplåtelseformFriköpt
  • Tomtarea1 610 m²
  • Kvadratmeterpris (kr/m²) 105 175 kr/m²
  • Byggnadsår1950

Beskrivning

Nu finns en sällsynt möjlighet att förvärva en fastighet med fantastiskt läge på Skeviksstrandsvägen 14 – en plats där havsbrisen möter skogens stillhet. Här bor du med frihetskänsla, naturens närvaro och vacker utsikt mot vattnet.

Fastigheten ligger på en högt belägen tomt med huvudbyggnaden placerad på den högsta punkten, vilket ger ett härligt ljusinsläpp och en utsikt som skiftar med årstiderna. Infarten är välkomnande med grusad uppfart, carport och gott om plats för både bil och gäster.

Här finns en äldre byggnad som med lite kärlek kan förvandlas till ett charmigt fritidsboende – eller så tar du tillfället i akt och skapar något helt nytt. Möjligheterna är många, och platsen ger en fantastisk grund för dig som drömmer om att bygga ditt eget hem med utsikt över vattnet och närhet till naturen.

Tomten erbjuder en trivsam mix av öppna ytor och insynsskyddande grönska. Här kan du njuta av sol hela dagen, ordna middagar på altanen med utsikt över glittrande vatten eller bara låta tiden stå still i din egen oas.

Detaljplan: Enligt detaljplanen är största byggnadsarea för huvudbyggnad 160 kvm och största bruttoarea för huvudbyggnad 220 kvm. Utöver huvudbyggnad får komplementbyggnader med sammanlagd yta om 50 kvm uppföras
Komplementära byggnader: I dagsläget finns 3 komplementära byggnader (carport, uthus nyttjas som gym, gäststuga med el.


Området kring Skeviksstrand är uppskattat för sin lugna och naturnära atmosfär, samtidigt som det är lätt att ta sig in till service, skolor och kommunikationer. Här bor du nära både bad, båtliv, vandringsleder och ett rikt friluftsliv – perfekt för dig som söker balans mellan stad och natur.

Detta är ett tillfälle för dig som vill skapa något eget, på en av områdets mest tilltalande adresser. En plats där möjligheterna är många och utsikten aldrig blir gammal.

SL båt: Från koviksudde går SL båten till Slussen och strömkajen

Välkommen att uppleva Skeviksstrandsvägen 14 – en fastighet med själ, potential och ett läge som måste upplevas på plats!
På G!
Först på Boneo
Gustavsberg - Skevik, Värmdö

Skeviksstrandsvägen 14

Fritidshus3 rok571 610 m² tomt

Mäklare

Mäklare

AwardBadge
Årets Mäklarkedja 2024, 2025
Vinnare av Boneo Awards
banner

Tjänster

Bolån

Räkna på bolån för Skeviksstrandsvägen 14
nordeaAlltid personlig ränta på ditt bolånRäkna här
Jämför bolån från olika banker!
lanekollPersonlig hjälp hela vägen hem!Räkna direkt!
Bostaden du tittar på matchar med 114 personer i BoneoMatch™

Hur många vill köpa din bostad?

Vi matchar din bostad mot över 500 000 köpsugna personer som går på visningar just nu.

Loading...
På G!
Först på Boneo
Gustavsberg - Skevik, Värmdö

Skeviksstrandsvägen 14

Fritidshus3 rok571 610 m² tomt

Mäklare

Mäklare

AwardBadge
Årets Mäklarkedja 2024, 2025
Vinnare av Boneo Awards