linkedin pixel
Tillbaka till sökresultatet
Fullskärm
Fullskärm
Tillbaka till sökresultatet
externalLinkIconAlla bilder
Lägenhet3 rok67

Fakta om bostaden

  • Pris2 195 000 kr
  • BoendetypLägenhet
  • Antal rum3 rok
  • Boyta67
  • UpplåtelseformBostadsrätt
  • Kvadratmeterpris (kr/m²) 32 761 kr/m²
  • Byggnadsår2014
  • Dagar på Boneodecember 2025
  • Våning 2 av 2
  • HissNej
  • Avgift till föreningen5 084 kr/mån

Beskrivning

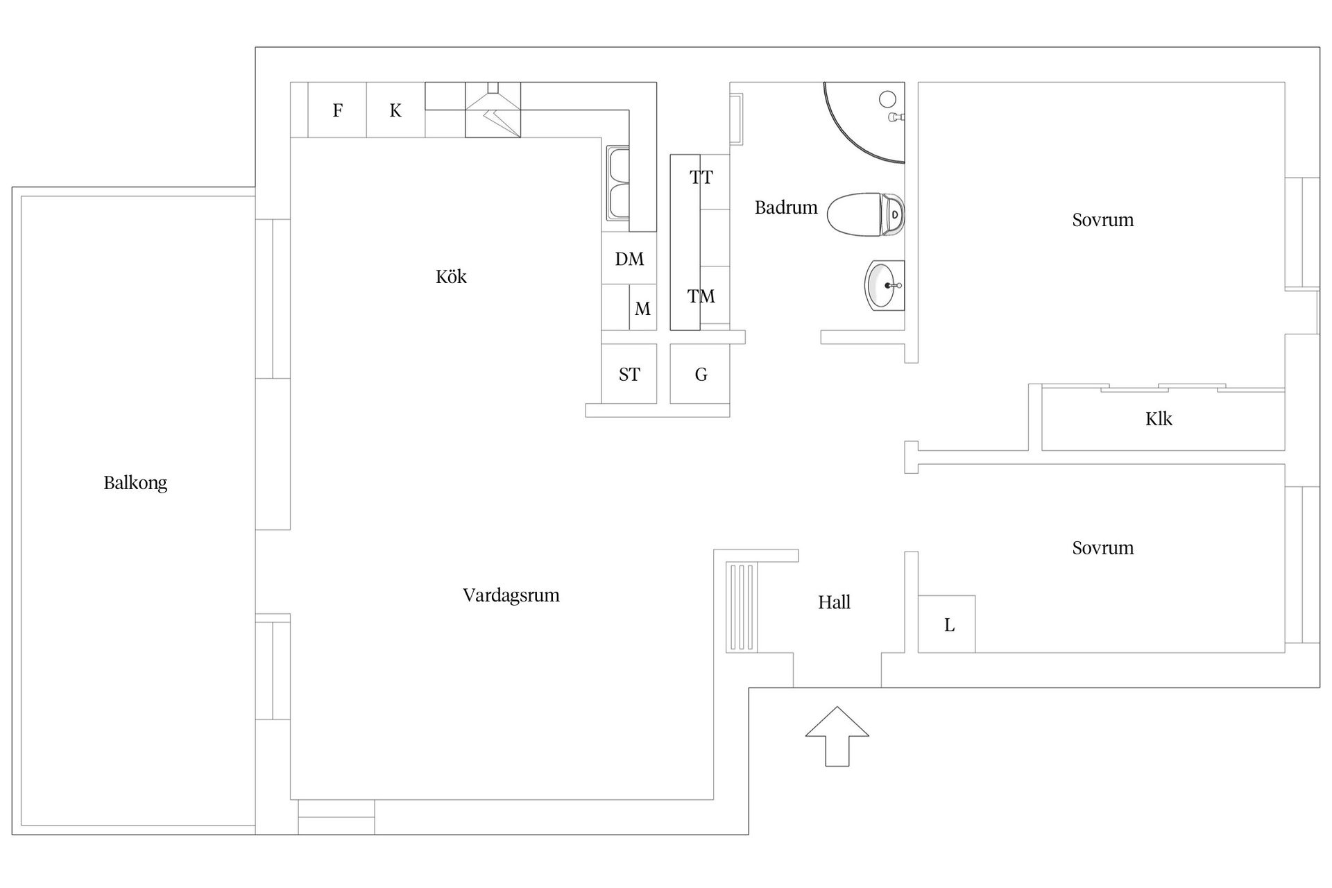
Välkomna till Öjabyvägen 25B! Ett sjönära hem med alla förutsättningar för ett bekvämt och harmoniskt boende. Här bor ni med närhet till både natur och stadskärnan i ett eftertraktat område där den inbjudande miljön lockar året om. Bostaden har en genomtänkt planlösning där boytan är smart fördelad för att passa både privatliv och sociala sammanhang.

Den luftiga och öppna planlösningen mellan kök och vardagsrum skapar en naturlig samlingspunkt där ni kan umgås. Känslan förstärks av en härlig takhöjd som är genomgående i lägenheten. Här samspelar de sociala ytorna på ett sätt som gör hemmet både funktionellt och inbjudande. Ljuset från fönstren i två väderstreck förstärker känslan av rymd. Från vardagsrummet når ni bostadens balkong. Här finns plats för en sittgrupp och från balkongen kan ni blicka ut över Räppe kanal. De två sovrummen ligger avskilt från de sociala ytorna vilket ger både ro och balans i vardagen. Det större sovrummet erbjuder gott om plats och förvaring medan det mindre rummet passar perfekt som barnrum eller hemmakontor. Badrummet är helkaklat i stilrena toner och utrustat med flera praktiska bekvämligheter. Här finns både en praktisk tvättdel för klädvård samt en duschhörna.

På Öjabyvägen 25B kan ni med enkla medel skapa samma harmoniska känsla invändigt som utemiljön bjuder på. Ett hem att trivas i där varje yta fyller sin funktion utan att tumma på trivseln.

På Helgevärma bor ni på ett attraktivt läge som erbjuder vacker natur och spännande promenadstråk. Här bor ni nära naturen och har Norra Bergundasjön och Helgasjön bara ett stenkast bort. I Öjaby finns flertalet förskolor samt skola med årskurserna F-6. I Bredvik finns även Pär Lagerkvists Skola med årskurserna F-9. I närheten finns också ett nytt sportfält. Med goda kommunikationer tar ni er lätt in till Växjö Centrum och till handelsområdena Grand Samarkand och I11. För den aktive finns arenastaden med sitt stora utbud inom bekvämt avstånd. Det finns fina cykelbanor in till centrum och busshållplats vid vägen som har en frekvent tidtabell till både centrum och Småland airport.

Visningar

Helgevärma, Växjö

Öjabyvägen 25B

Lägenhet3 rok67

Mäklare

Mäklare

AwardBadge
Årets Mäklarkedja 2024, 2025
Vinnare av Boneo Awards
banner

Tjänster

Bolån

Räkna på bolån för Öjabyvägen 25B
nordeaAlltid personlig ränta på ditt bolånRäkna här
Jämför bolån från olika banker!
lanekollPersonlig hjälp hela vägen hem!Räkna direkt!
Bostaden du tittar på matchar med 485 personer i BoneoMatch™

Hur många vill köpa din bostad?

Vi matchar din bostad mot över 500 000 köpsugna personer som går på visningar just nu.

Loading...
Helgevärma, Växjö

Öjabyvägen 25B

Lägenhet3 rok67

Mäklare

Mäklare

AwardBadge
Årets Mäklarkedja 2024, 2025
Vinnare av Boneo Awards