linkedin pixel
Fullskärm
Fullskärm
externalLinkIconAlla bilder
Budgivning pågår
Visa bud
Lägenhet1,5 rok35,50

Fakta om bostaden

  • Pris1 650 000 kr
  • BoendetypLägenhet
  • Antal rum1,5 rok
  • Boyta35,50
  • UpplåtelseformBostadsrätt
  • Kvadratmeterpris (kr/m²) 46 479 kr/m²
  • Byggnadsår1958
  • Dagar på Boneonovember 2025
  • Våning 4 av 10
  • HissJa
  • Avgift till föreningen3 115 kr/mån

Beskrivning

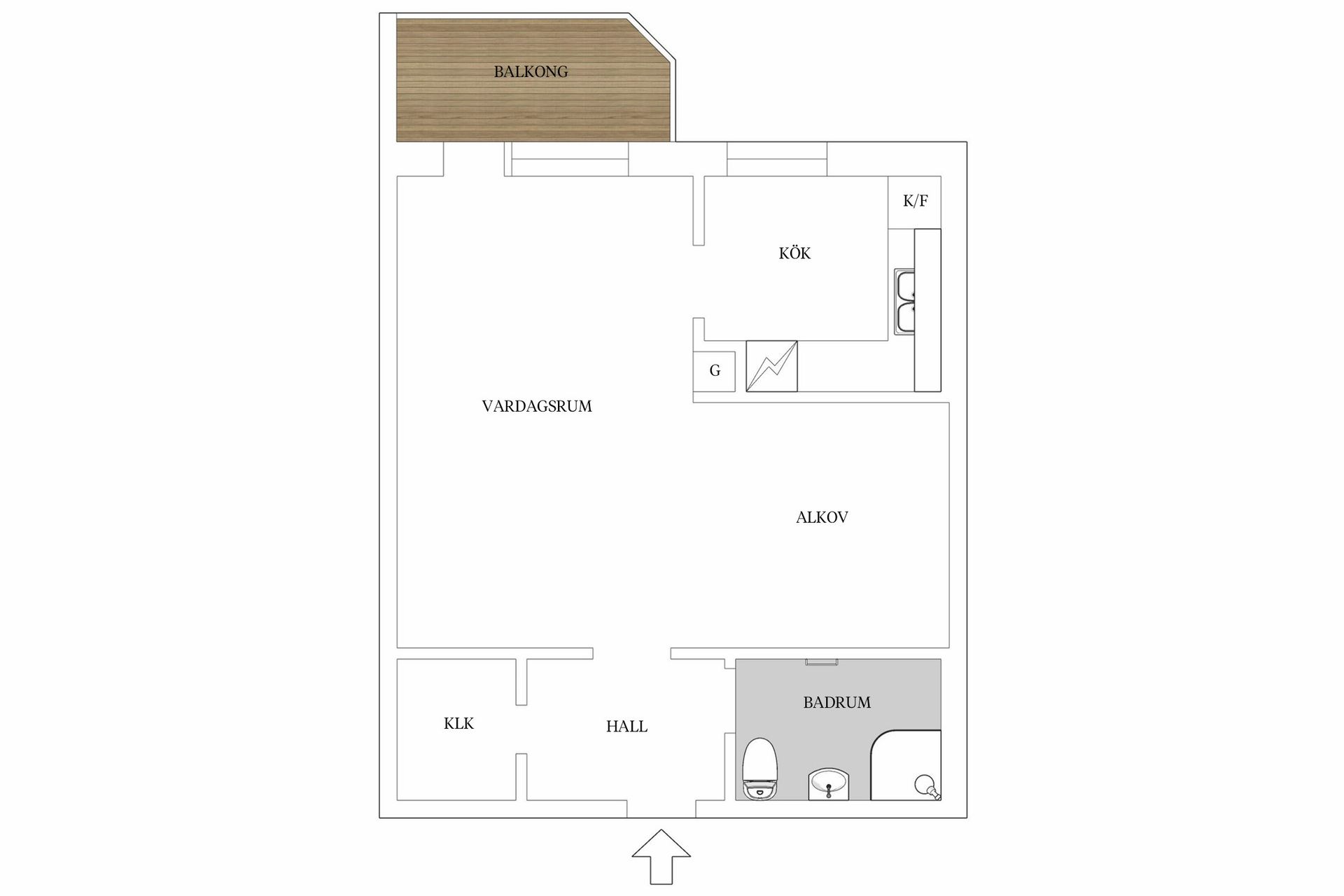
Kvadratsmart bostad med välvårdade ytskikt erbjuds nu på Hallegatan 15. Här finner du en 1.5 som nyttjar sina 35,5 kvm till fullo med smart planerade ytor. Boendet präglas av ett härligt ljusinsläpp, varma enhetliga ytskikt och lättmöblerade ytor i genomgående gott skick. Köket är praktiskt utformat i vinkel i tidlöst utförandet med vita släta luckor och beslag i rostfritt som förstärker intrycken. Allrummet är rymligt och ligger i halvöppen anslutning mot köket vilket bidrar till en social planlösning där sängen har en naturlig plats i sovalkoven som med fördel kan skärmas av. Sällskapsytorna förlängs av den generösa balkongen som är inglasad och ligger i underbart västerläge med ett insynsfritt läge mot grönskan - detta blir som ett extra rum sommartid. Vidare är badrummet med klinker och halvkaklade väggar med modern inredning. Till förvaring finns en klädkammare i hallen samt ett externt förråd som hör till bostaden.

Här bor du i en välskött samt populär HSB-förening med förmånlig avgift och du bor med centralt läge som erbjuder allt du kan tänkas behöva inom promenadavstånd som t.ex matbutik, frisör, gym, restaurang och Rambergets vackra natur. Utanför dörren finns Vågmästareplatsen med Kville saluhall och goda kommunikationer i form av spårvagn samt buss som tar dig till centrala Göteborg på ca 5 minuter. Vidare har du nära till Backaplan med stort serviceutbud.

Kontakta mäklaren för mer information.

Visningar

Budgivning pågår
Visa bud
Centrala Hisingen, Göteborg

Hallegatan 15

Lägenhet1,5 rok35,50

Mäklare

Mäklare

AwardBadge
Årets Mäklarkedja 2024, 2025
Vinnare av Boneo Awards
banner

Tjänster

Bolån

Räkna på bolån för Hallegatan 15
nordeaAlltid personlig ränta på ditt bolånRäkna här
Jämför bolån från olika banker!
lanekollPersonlig hjälp hela vägen hem!Räkna direkt!
Bostaden du tittar på matchar med 500 personer i BoneoMatch™

Hur många vill köpa din bostad?

Vi matchar din bostad mot över 500 000 köpsugna personer som går på visningar just nu.

Loading...
Budgivning pågår
Visa bud
Centrala Hisingen, Göteborg

Hallegatan 15

Lägenhet1,5 rok35,50

Mäklare

Mäklare

AwardBadge
Årets Mäklarkedja 2024, 2025
Vinnare av Boneo Awards