linkedin pixel
På G!
Först på Boneo
Centralt, Kristinehamn

Spelmansgatan 43

Lägenhet1 rok48,50

Fakta

  • Pris219 000 kr
  • BoendetypLägenhet
  • Rum1 rok
  • Boyta48,50
  • UpplåtelseformBostadsrätt
  • Pris/m² 4 515 kr/m²
  • Byggnadsår1963
  • Våning 3 av 3
  • HissNej
  • Månadsavgift3 045 kr

Beskrivning

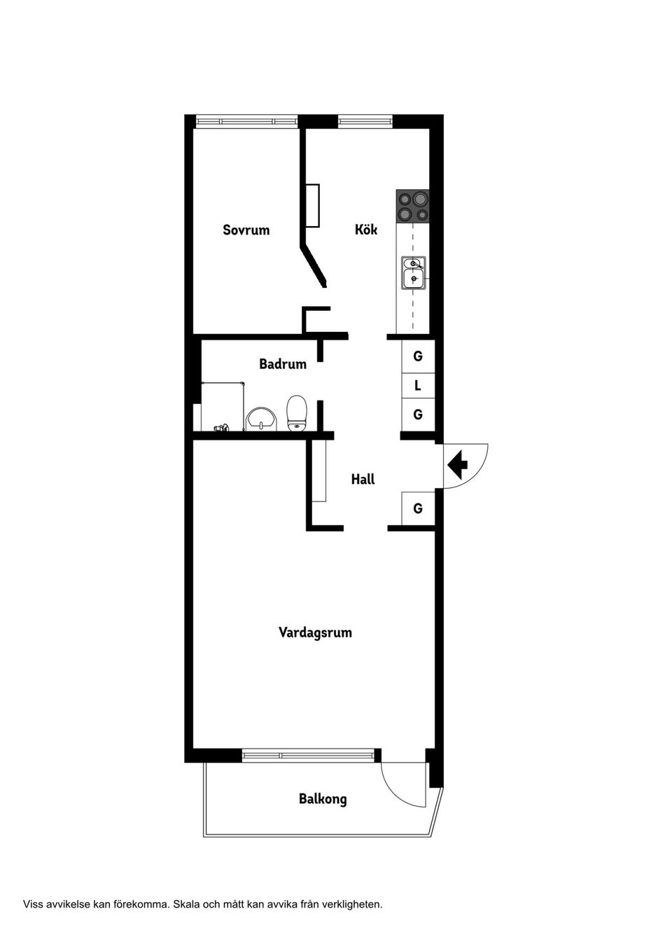
Spelmansgatan 43 – en lägenhet med funktionalitet och ett centralt läge! På 48,5 välplanerade kvadratmeter erbjuds nu en lägenhet där varje yta har tagits tillvara på bästa sätt.

Det stora och ljusa vardagsrummet fungerar som hemmets naturliga samlingsplats, här finns också utgången till balkongen i söderläge. Till detta finns ett trivsamt kök med gott om förvaring och arbetsyta, och i direkt anslutning finns ett extra rum som idag nyttjas som sovrum (tidigare matplats), vilket gör planlösningen både flexibel och smart. Lägenheten rymmer dessutom ett halv kaklat badrum med dusch som är förberett för egen tvättmaskin.

Här bor du i en välskött bostadsrättsförening med stabil ekonomi och trivsam gemenskap – på ett läge där du har nära till både handel, kommunikationer, restauranger och staden.

Ett hem som passar perfekt för dig som söker bekvämlighet, närhet och ett boende att trivas i från första stund.

Har du frågor eller intresse så tveka inte att höra av dig.
Johan Bergling
johan.bergling@lansfast.se

Mäklare

Johan Bergling
Ansvarig mäklare
LF Fastighetsförmedling Kristinehamn
Tegelslagaregatan 29, Kristinehamn
Agency
Agency
banner

Planritning

Tjänster

Bolån

Räkna på bolån för Spelmansgatan 43
nordeaAlltid personlig ränta på ditt bolånRäkna här
Jämför bolån från olika banker!
lanekollPersonlig hjälp hela vägen hem!Räkna direkt!

Hur många vill köpa din bostad?

Med BoneoMatch™ ser du hur många som letar efter en liknande bostad i ditt område.

Läs mer
Loading...