linkedin pixel
Tillbaka till sökresultatet
Fullskärm
Fullskärm
Tillbaka till sökresultatet
externalLinkIconAlla bilder
På G!
Först på Boneo
Lägenhet2 rok51

Fakta om bostaden

  • Pris4 195 000 kr
  • BoendetypLägenhet
  • Antal rum2 rok
  • Boyta51
  • UpplåtelseformBostadsrätt
  • Kvadratmeterpris (kr/m²) 82 255 kr/m²
  • Byggnadsår2023
  • Våning 7 av 13
  • HissJa
  • Avgift till föreningen3 821 kr/mån

Beskrivning

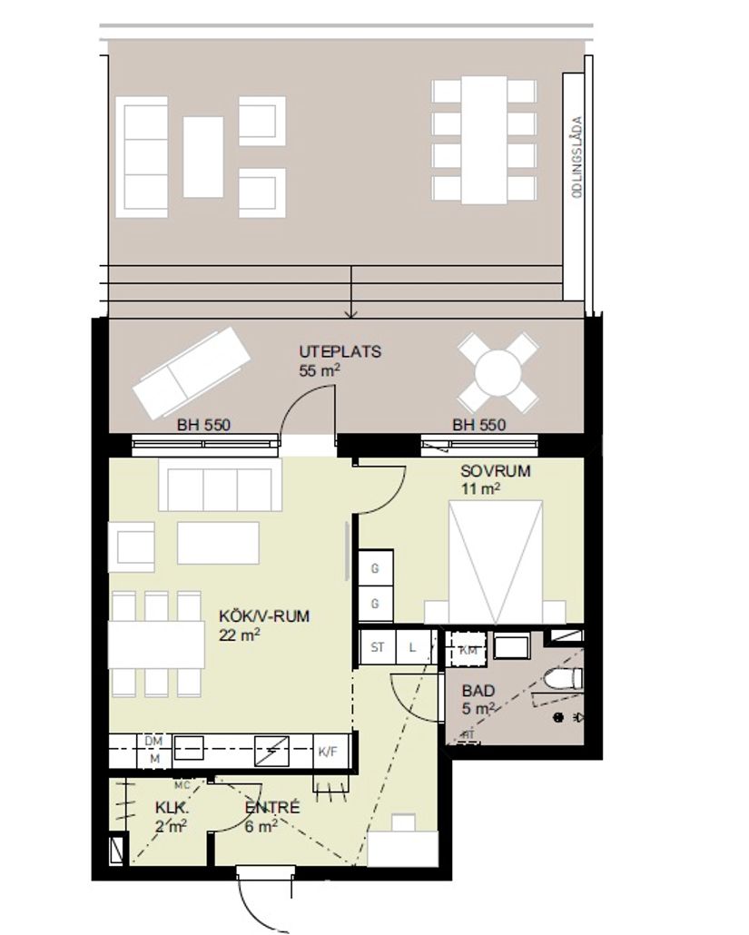
* 55 kvadratmeter terrass mot Bällstaån
* Minimal insyn
* Stabil och fin förening som äger marken

Varmt välkomna till ett osannolikt boende som får även den mest kräsne att falla.

Här bor ni i en av områdets mest spektakulära 2 rok. Utöver en bostad med fina material, välplanerat sovrum samt luftigt badrum så erbjuds här områdets största terrass om hela 55 kvadratmeter. Njut av att solen gör er sällskap under sommarkvällar. Här kan alla årstider mötas med kulissen av Marabou-parken, marinan och Sundbyberg över Bällstaån. Njut av stora bjudningar där födelsedagskalas, kräftskivor och övriga festligheter alltid kan erbjudas hos just er då terrassen rymmer vänner och släkt utan problem.

Den moderna designen och det naturliga ljusinsläppet ger en behaglig atmosfär i denna bostad. Vid entrén möts du av en välkomnande hall med en praktisk garderob och avhängningsmöjligheter.

Köket är stilrent och fullt utrustat med generösa förvaringsmöjligheter i både över- och underskåp samt arbetsytor på den gråa bänkskivan.

I vardagsrummet, med sina målade väggar och vackra ekparkettgolv, finns gott om plats för både soffgrupp och matplats, perfekt för avkoppling och umgänge.

Sovrummet rymmer en stor dubbelsäng och har gott om förvaringsutrymme i en generös garderob. Underbar utsikt mot Sundbyberg.

Det rymliga och välutrustade badrummet är generöst tilltaget och har kaklade väggar, klinkergolv i beige kulör samt moderna bekvämligheter som dusch, kommod och wc, samt en praktisk tvättmaskin.

Bostaden är i nyskick och redo för sin nästa ägare.
Kontakta gärna ansvarig mäklare för ytterligare info.
På G!
Först på Boneo
Bromma - Mariehäll, Stockholm

Mariehällsvägen 30J, TERRASS!

Lägenhet2 rok51

Mäklare

Mäklare

AwardBadge
Årets Mäklarkedja 2024, 2025
Vinnare av Boneo Awards
banner

Tjänster

Bolån

Räkna på bolån för Mariehällsvägen 30J, TERRASS!
nordeaAlltid personlig ränta på ditt bolånRäkna här
Jämför bolån från olika banker!
lanekollPersonlig hjälp hela vägen hem!Räkna direkt!
Bostaden du tittar på matchar med 1 348 personer i BoneoMatch™

Hur många vill köpa din bostad?

Vi matchar din bostad mot över 500 000 köpsugna personer som går på visningar just nu.

Loading...
På G!
Först på Boneo
Bromma - Mariehäll, Stockholm

Mariehällsvägen 30J, TERRASS!

Lägenhet2 rok51

Mäklare

Mäklare

AwardBadge
Årets Mäklarkedja 2024, 2025
Vinnare av Boneo Awards