linkedin pixel
Fullskärm
Fullskärm
externalLinkIconAlla bilder
Fritidshus5 rok160 + 151 356 m² tomt

Fakta om bostaden

  • Pris7 900 000 kr
  • BoendetypFritidshus
  • Antal rum5 rok
  • Boyta160
  • UpplåtelseformFriköpt
  • Biarea15
  • Tomtarea1 356 m²
  • Kvadratmeterpris (kr/m²) 49 375 kr/m²
  • Byggnadsår2022
  • Dagar på Boneonovember 2025

Beskrivning

Bjurfors presenterar ett spektakulärt och exklusivt fjällboende om 160 kvm, signerat arkitekt Gert Wingårdh – stilfullt klätt i ståtlig furu och skapat för att smälta samman med fjällmiljön. Arkitekturen är genomtänkt in i minsta detalj, med omsorgsfullt utvalda naturmaterial, platsbyggda lösningar och en designfilosofi där landskapet alltid står i centrum. De stora fönsterpartierna med djupa, inbjudande nischer låter naturen bli till konst inne i hemmet och förstärker den lugna, skandinaviska identiteten.

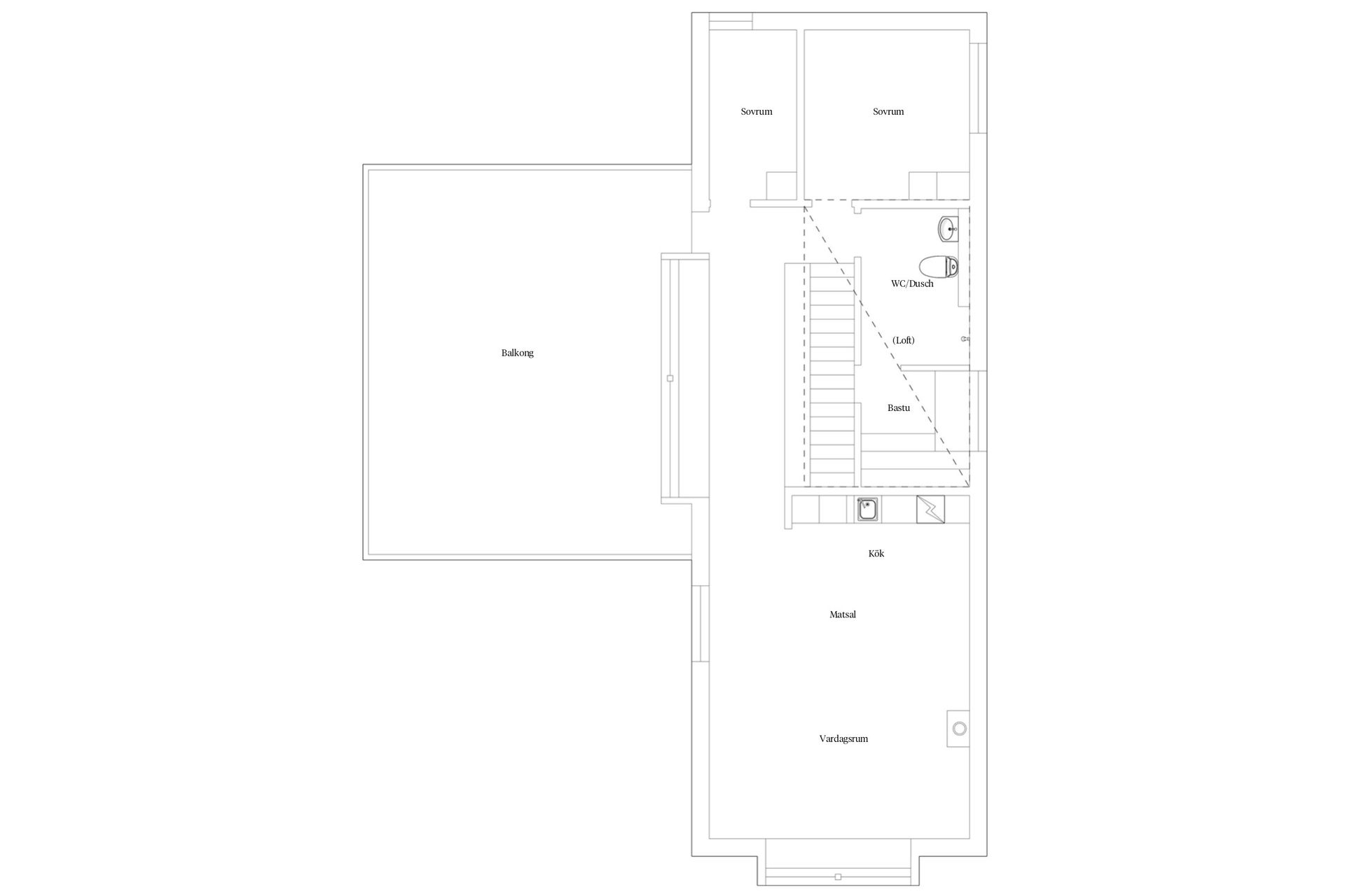
Här finns flera sovrum i varierande storlek: rymliga rum med plats för dubbelsäng, mindre rum med platsbyggd våningssäng samt ytterligare sovplatser på det generösa loftet. På övre plan når fönstren ända ner till golvet, vilket skapar en luftig känsla och en nära kontakt med fjället utanför.

Huset ligger högt och vackert med generösa sociala ytor och en stor takterrass som bjuder på vidsträckta vyer över Vemdalens fjällvärld. Efter en dag i backarna samlas familj och vänner i det stora vardagsrummet där takhöjden, braskaminen och materialens enhetlighet skapar en varm, exklusiv och nästan sakral atmosfär.

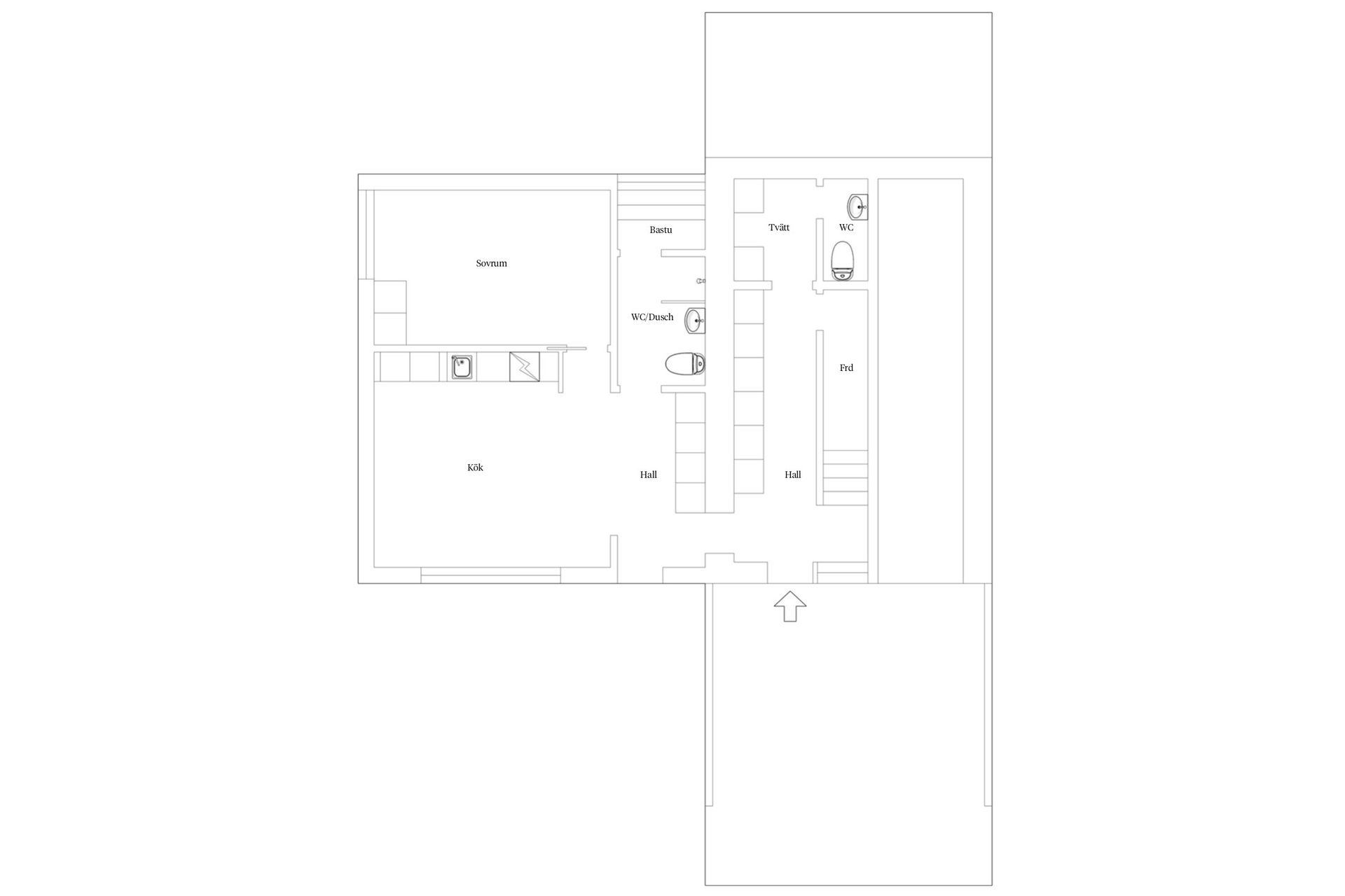
På nedre plan finns en separat gästlägenhet med eget allrum, fullt utrustat kök, sovrum och badrum med bastu – en genomtänkt och flexibel del som passar perfekt för gäster, äldre barn eller uthyrning. Hela huset är ritat för att fungera som en naturlig samlingsplats året runt, oavsett om dagarna fylls av vandring, jakt, cykel eller vintertid av pister, längdspår och skoterutflykter.

Ute erbjuder fastigheten en rymlig tomt om 1 356 kvm med förberedd plats för framtida garage.

Här finns totalt fyra sovrum, två badrum varav båda med bastu, gäst-wc, två kök, stora sällskapsytor på båda planen, öppen spis samt gott om plats för flera bilar. Det höga och soliga läget är både vackert och praktiskt – en miljö där Wingårdhs arkitektur låter naturen vara den självklara huvudpersonen.
Vemdalsskalet, Härjedalen

Vemdalsskalet Myrbärsstigen 39

Fritidshus5 rok160 + 151 356 m² tomt

Mäklare

Mäklare

AwardBadge
Årets Mäklarkedja 2024, 2025
Vinnare av Boneo Awards
banner

Tjänster

Bolån

Räkna på bolån för Vemdalsskalet Myrbärsstigen 39
nordeaAlltid personlig ränta på ditt bolånRäkna här
Jämför bolån från olika banker!
lanekollPersonlig hjälp hela vägen hem!Räkna direkt!

Hur många vill köpa din bostad?

Med BoneoMatch™ ser du hur många som letar efter en liknande bostad i ditt område.

Läs mer
Loading...
Vemdalsskalet, Härjedalen

Vemdalsskalet Myrbärsstigen 39

Fritidshus5 rok160 + 151 356 m² tomt

Mäklare

Mäklare

AwardBadge
Årets Mäklarkedja 2024, 2025
Vinnare av Boneo Awards