linkedin pixel
Tillbaka till sökresultatet
Fullskärm
Fullskärm
Tillbaka till sökresultatet
externalLinkIconAlla bilder
Villa8 rok200 + 38476 m² tomt

Fakta om bostaden

  • Pris7 195 000 kr
  • BoendetypVilla
  • Antal rum8 rok
  • Boyta200
  • UpplåtelseformFriköpt
  • Biarea38
  • Tomtarea476 m²
  • Kvadratmeterpris (kr/m²) 35 975 kr/m²
  • Byggnadsår1968
  • Dagar på Boneojanuari 2026

Beskrivning

Välkommen till ett mycket attraktivt och rofyllt läge endast ett stenkast från havet, med närhet till charmig småbåtshamn, café, restauranger, skola och goda kommunikationer. Här erbjuds ett välplanerat och smakfullt hem med moderna kvaliteter, stora sociala ytor och havsutsikt från båda planen. Totalt disponeras huset i 8 rum varav 5 sovrum.

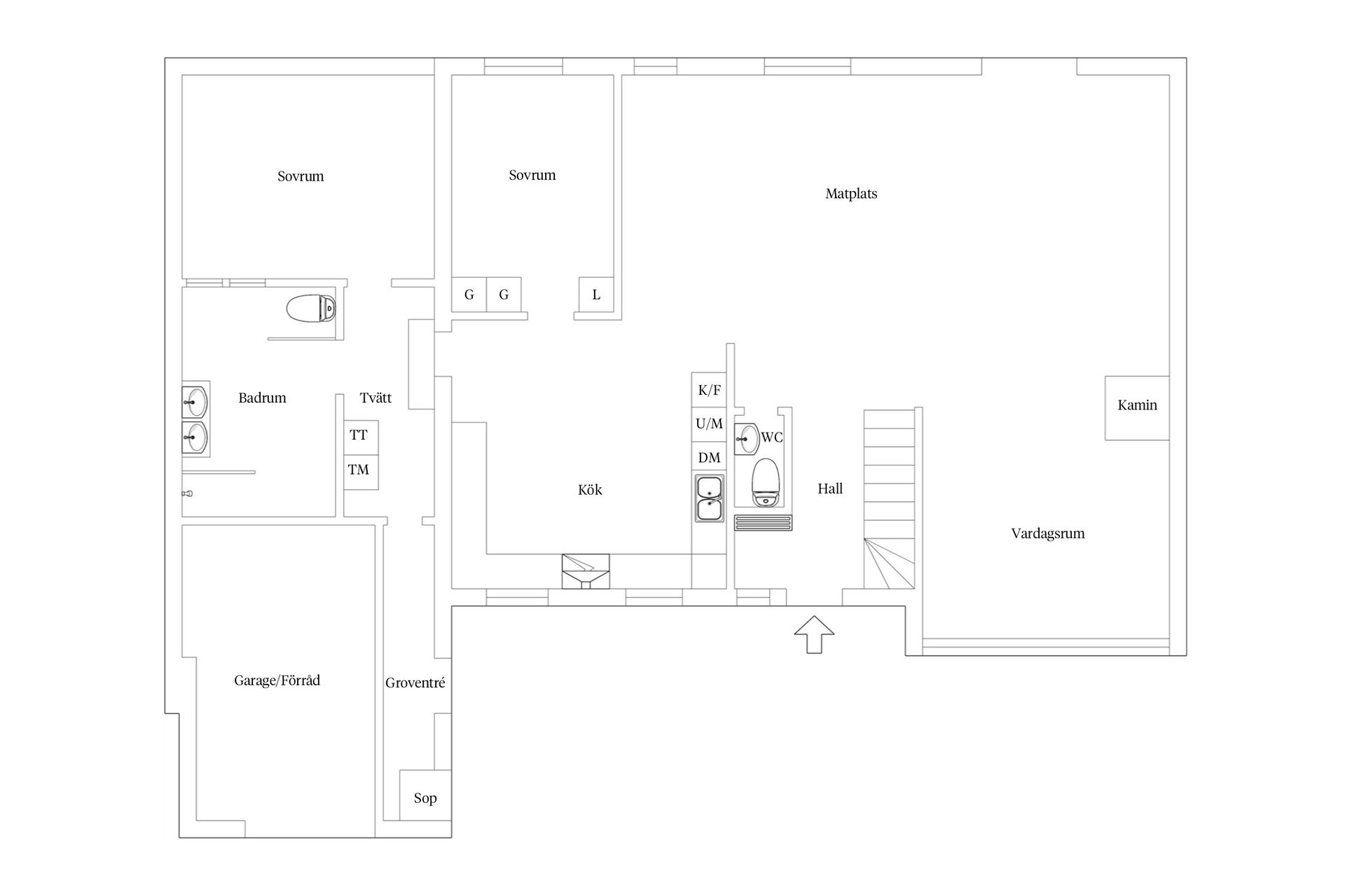
Entréplan
Generöst entréplan med stora, ljusa sällskapsytor där en täljstenskamin skapar både karaktär och trivsam värme. Köket är rymligt och funktionellt med bra arbetsytor och förvaring. Master bedroom är elegant renoverat med eget smakfullt badrum. Här finns även ytterligare ett sovrum/kontor, gäst-wc samt tvättstuga med separat grovingång och direkt access till garage.

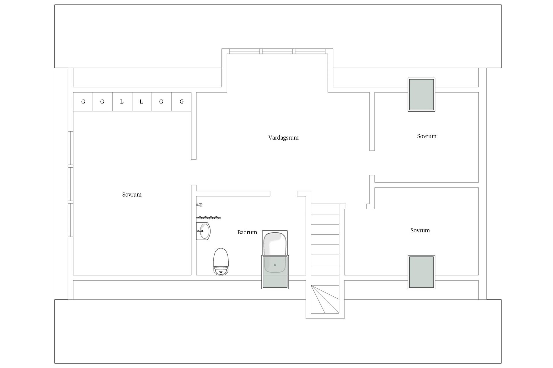
Övre plan
Övre plan erbjuder tre fina sovrum och ett allrum med stor kupa som skapar fin yta, perfekt som barnens egen sällskapsdel. Dessutom finns ett stort badrum med både badkar och dusch.

Trädgård och utemiljö
Den uppvuxna trädgården är professionellt anlagd med flera soliga uteplatser i både öst-, väst- och söderläge. Här finns även en uppskattad vinkällare och trädgården ligger skyddad från havsvinden, vilket skapar en varm och inbjudande utemiljö.

Sammanfattning
En modern och mycket trivsam familjevilla i ett eftertraktat och lugnt läge nära havet. Generösa sociala ytor, fem sovrum, väl omhändertagen både interiört och exteriört samt närhet till allt som gör vardagen bekväm.

Visningar

Gislövs läge, Trelleborg

Öringvägen 3

Villa8 rok200 + 38476 m² tomt

Mäklare

Mäklare

AwardBadge
Årets Mäklarkedja 2024, 2025
Vinnare av Boneo Awards
banner

Tjänster

Bolån

Räkna på bolån för Öringvägen 3
nordeaAlltid personlig ränta på ditt bolånRäkna här
Jämför bolån från olika banker!
lanekollPersonlig hjälp hela vägen hem!Räkna direkt!
Bostaden du tittar på matchar med 79 personer i BoneoMatch™

Hur många vill köpa din bostad?

Vi matchar din bostad mot över 500 000 köpsugna personer som går på visningar just nu.

Loading...
Gislövs läge, Trelleborg

Öringvägen 3

Villa8 rok200 + 38476 m² tomt

Mäklare

Mäklare

AwardBadge
Årets Mäklarkedja 2024, 2025
Vinnare av Boneo Awards