linkedin pixel
Fullskärm
Fullskärm
externalLinkIconAlla bilder
Budgivning pågår
Visa bud
Lägenhet2 rok54

Fakta om bostaden

  • Pris2 990 000 kr
  • BoendetypLägenhet
  • Antal rum2 rok
  • Boyta54
  • UpplåtelseformBostadsrätt
  • Kvadratmeterpris (kr/m²) 55 370 kr/m²
  • Byggnadsår1933
  • Dagar på Boneojanuari 2026
  • Våning 2 av 2
  • HissNej
  • Avgift till föreningen4 021 kr/mån

Beskrivning

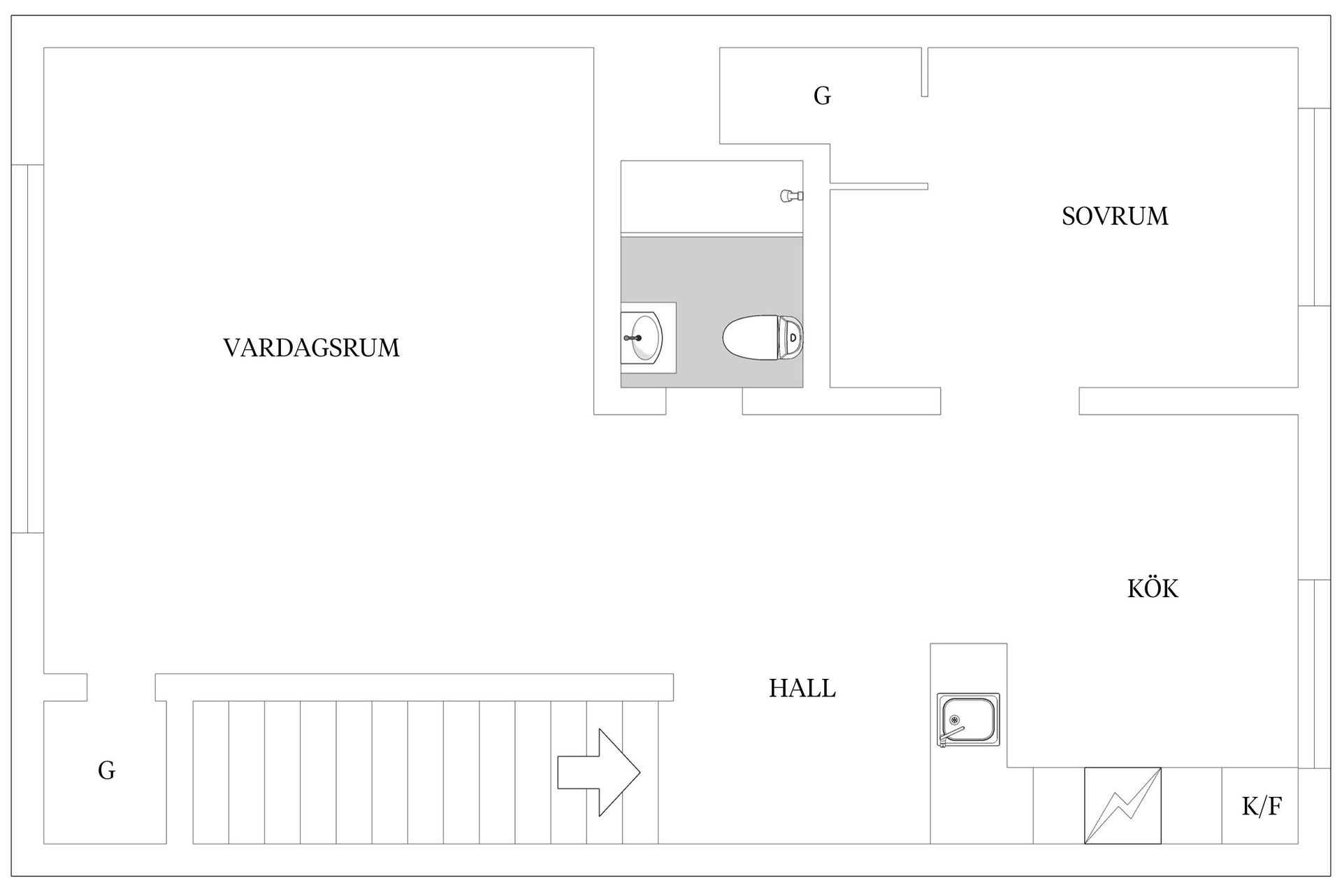
Nu presenteras denna ljuvliga hörntvåan, där charmiga detaljer från 30-talet kombineras med stilrena nyanser och väl utvalda materialval. Med ett genomgångsläge i mysiga Kålltorp blir detta en riktig drömlägenhet. Här erbjuds 54 väldisponerade kvadratmeter med en halvöppen planlösning mellan kök och vardagsrum. Vacker parkett som är väl omhändertagen och ljusa ytskikt samt generös takhöjd är genomgående i bostaden. Med vackra takrosetter, höga golvlister och breda taklister förstärks den charmiga 30-talskänslan. Med en solig uteplats som rymmer matgrupp och solstolar blir det en perfekt plats att avnjuta solens värme under dagen och härliga grillmiddagar på kvällen.

Lugnt område där mindre bostadsrättsföreningar blandas med villakvarter. Här i pittoreska Kålltorp får du det bästa av två världar. Ett stenkast ifrån nås lummiga grönområden mot Delsjön där bad och annat friluftsliv lockar. Närhet finns även till populära Skatås motionscentrum med flertalet motionsslingor, fotbolls och volleybollplaner erbjuds. Bra kommunikation med spårvagn eller buss tar dig in till centrala stan på bara 15 minuter. Runt hörnet finner man Munkebäckstorg med ICA Kvantum, frukt och grönsaksaffär, bageri och mycket mer.
Budgivning pågår
Visa bud
Kålltorp, Göteborg

Munkebäcksgatan 27A

Lägenhet2 rok54

Mäklare

Mäklare

AwardBadge
Årets Mäklarkontor 2024Årets Mäklarkedja 2024, 2025
Vinnare av Boneo Awards
banner

Tjänster

Bolån

Räkna på bolån för Munkebäcksgatan 27A
nordeaAlltid personlig ränta på ditt bolånRäkna här
Jämför bolån från olika banker!
lanekollPersonlig hjälp hela vägen hem!Räkna direkt!
Bostaden du tittar på matchar med 2 401 personer i BoneoMatch™

Hur många vill köpa din bostad?

Vi matchar din bostad mot över 500 000 köpsugna personer som går på visningar just nu.

Loading...
Budgivning pågår
Visa bud
Kålltorp, Göteborg

Munkebäcksgatan 27A

Lägenhet2 rok54

Mäklare

Mäklare

AwardBadge
Årets Mäklarkontor 2024Årets Mäklarkedja 2024, 2025
Vinnare av Boneo Awards