linkedin pixel
Tillbaka till sökresultatet
Fullskärm
Fullskärm
Tillbaka till sökresultatet
Tomt1 380 m² tomt

Fakta om bostaden

  • Pris2 395 000 kr
  • BoendetypTomt
  • UpplåtelseformFriköpt
  • Tomtarea1 380 m²
  • Dagar på Boneonovember 2025

Beskrivning

Drömmer du om avslappnade dagar med slående utsikt över skog och natur? Nu har du möjlighet att köpa denna avstyckade tomt och bygga ditt drömboende! Förhandsbesked finns för att bygga enbostadshus på tomten. Då fastigheten ligger utanför detaljplanerat område finns det ingen bestämning för det kommande husets storlek. Fastigheten är inte bunden till någon husleverantör, vilket öppnar upp för många alternativa hustyper.
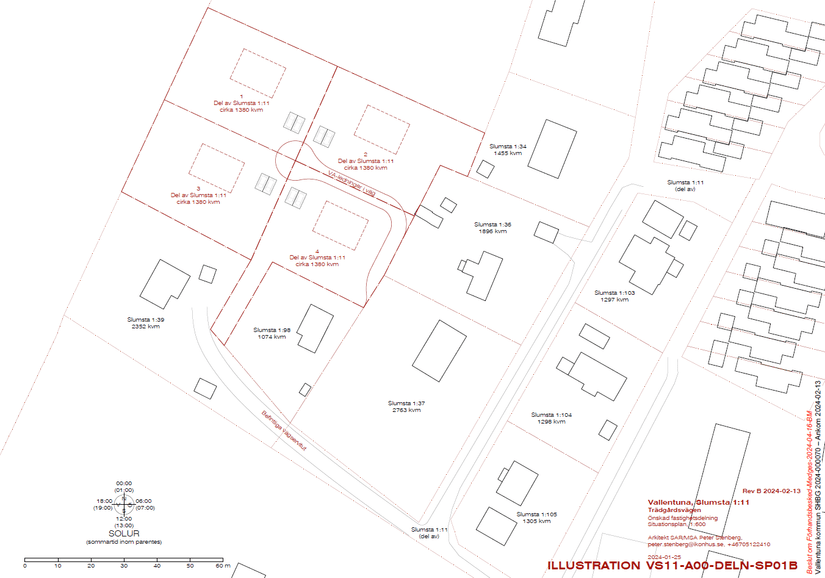
Tomten är belägen vid totalt 6 fastigheter och säljs av samma ägare i det fall köpare är intresserad av att köpa upp samtliga tomter för ett annat typ av projekt.

Det finns totalt 5 tomter som förmedlas
Tomt 1-5. Samtliga med ca. storlek på 1 380 kvm. Den faktiska storleken fastställs när förrättningen är klar.

Lindholmen är ett lantligt område beläget strax norr om Vallentuna tätort. Knappt 7 km bort ligger Vallentuna Centrum med ett generöst utbud av diverse faciliteter såsom mataffärer, restauranger, träningscenter etc. Flertalet förskolor och skolor. Roslagsbanan till Stockholm östra på 35 minuter och buss till Danderyds sjukhus på 30 minuter. Andra smidigare resvägar till Arlanda, Upplands Väsby, Norrtälje och Kista.


EL = Elanslutning och kostnad Ca: 40 000 kr.
VA = Kommunalt vatten och avlopp via roslagsvatten
Fiber = Anslutnings kostnad Ca: 30 000 kr.

Lindholmen - Här lever man i harmoni med naturen.
kontakta ansvarig mäklare för intresse, Niklas Möllenberg 070-25 24 399
Lindholmen, Vallentuna

SLUMSTA 1:11 - Tomt 1

Tomt1 380 m² tomt

Mäklare

banner

Tjänster

Bolån

Räkna på bolån för SLUMSTA 1:11 - Tomt 1
nordeaAlltid personlig ränta på ditt bolånRäkna här
Jämför bolån från olika banker!
lanekollPersonlig hjälp hela vägen hem!Räkna direkt!

Hur många vill köpa din bostad?

Med BoneoMatch™ ser du hur många som letar efter en liknande bostad i ditt område.

Läs mer
Loading...
Lindholmen, Vallentuna

SLUMSTA 1:11 - Tomt 1

Tomt1 380 m² tomt

Mäklare