linkedin pixel
Fullskärm
Fullskärm
externalLinkIconAlla bilder
På G!
Först på Boneo
Lägenhet2 rok35

Fakta om bostaden

  • BoendetypLägenhet
  • Antal rum2 rok
  • Boyta35
  • UpplåtelseformBostadsrätt
  • Byggnadsår1943
  • Våning 5 av 5
  • HissJa
  • Avgift till föreningen2 286 kr/mån

Beskrivning

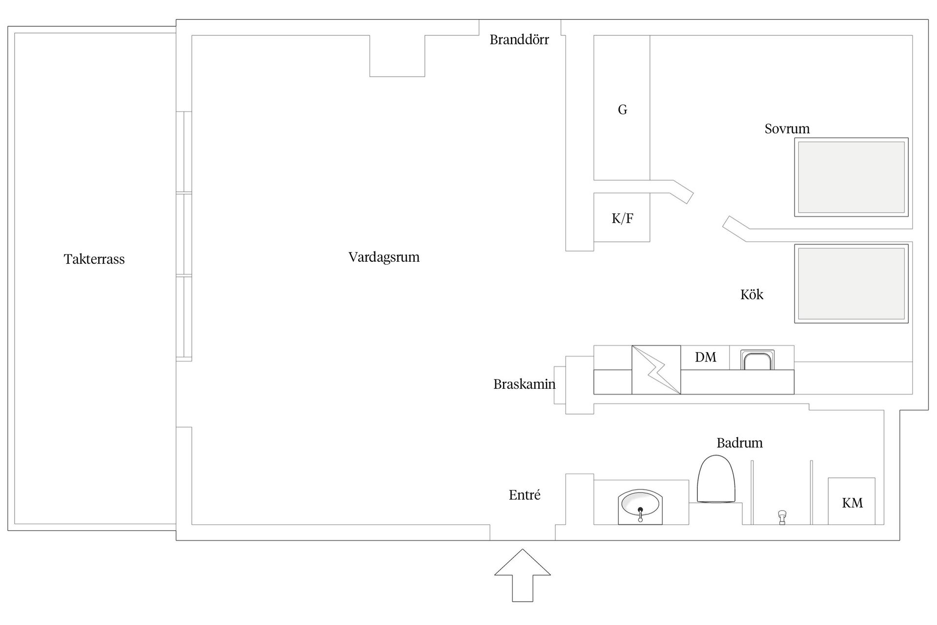
Välkommen till en unik och helt ostörd tvårummare om 35 kvm högst upp i huset – en bostad som imponerar från första ögonblicket. Här bor du på våning 5 av 5 med en privat takterrass om drygt 10 kvm, en alldeles egen oas där solen vandrar från gryning till skymning under sommarhalvåret. Perfekt för lugna morgonstunder, avkopplande eftermiddagar och långa, stämningsfulla kvällar med utsikt över Göteborgs takåsar och slående vackra solnedgångar.

Redan i hallen möts du av de sociala ytorna där vardagsrum och matplats förenas på ett naturligt sätt. Det avskilda sovrummet erbjuder ro och återhämtning, diskret placerat bort från sällskapsdelen för maximal trivsel. Bostaden bjuder på karaktär och själ, med en planlösning som känns både yteffektiv och hemtrevlig. Badrummet är nyrenoverat i exklusiva kvalitetsmaterial såsom klinkers från Bricmate och extra bred kommod från Haven. Här möts du av vardagslyx som golvvärme, kombinerad tvätt/tork och dubbla handdukstorkar – en sällsynt standard i denna storleksklass.

Här bor du i en stabil förening med god ekonomi som äger sin mark och har dolda tillgångar i form av hyresrätter – en stor trygghet inför framtiden. För den som drömmer vidare att skapa något alldeles extra finns råvindsyta intill lägenheten. Dialog har funnits om att köpa loss råvindsytan, det behövs godkännande från styrelsen.


Bo på ett helt perfekt läge där Olskroken och Bagaregården flätas samman, på en lugn och högt belägen gata med charmiga kvarter runt hörnet. Med närhet till caféer, butiker och utmärkta kommunikationer vid Redbergsplatsen, där både spårvagn 1, 3, 6, 8 samt stombuss 17 trafikerar, når du både city bara några minuter. I närområdet finner du ett fantastiskt naturliv i Skatås och Delsjön.
På G!
Först på Boneo
Bagaregården - Olskroken, Göteborg

Övre Olskroksgatan 26

Lägenhet2 rok35

Mäklare

Mäklare

AwardBadge
Årets Mäklarkontor 2024Årets Mäklarkedja 2024, 2025
Vinnare av Boneo Awards
banner

Tjänster

Bolån

Räkna på bolån för Övre Olskroksgatan 26
nordeaAlltid personlig ränta på ditt bolånRäkna här
Jämför bolån från olika banker!
lanekollPersonlig hjälp hela vägen hem!Räkna direkt!
Bostaden du tittar på matchar med 1 140 personer i BoneoMatch™

Hur många vill köpa din bostad?

Vi matchar din bostad mot över 500 000 köpsugna personer som går på visningar just nu.

Loading...
På G!
Först på Boneo
Bagaregården - Olskroken, Göteborg

Övre Olskroksgatan 26

Lägenhet2 rok35

Mäklare

Mäklare

AwardBadge
Årets Mäklarkontor 2024Årets Mäklarkedja 2024, 2025
Vinnare av Boneo Awards