linkedin pixel
På G!
Först på Boneo
Älvsjö-Långbro Park, Stockholm

Johan skyttes väg 384

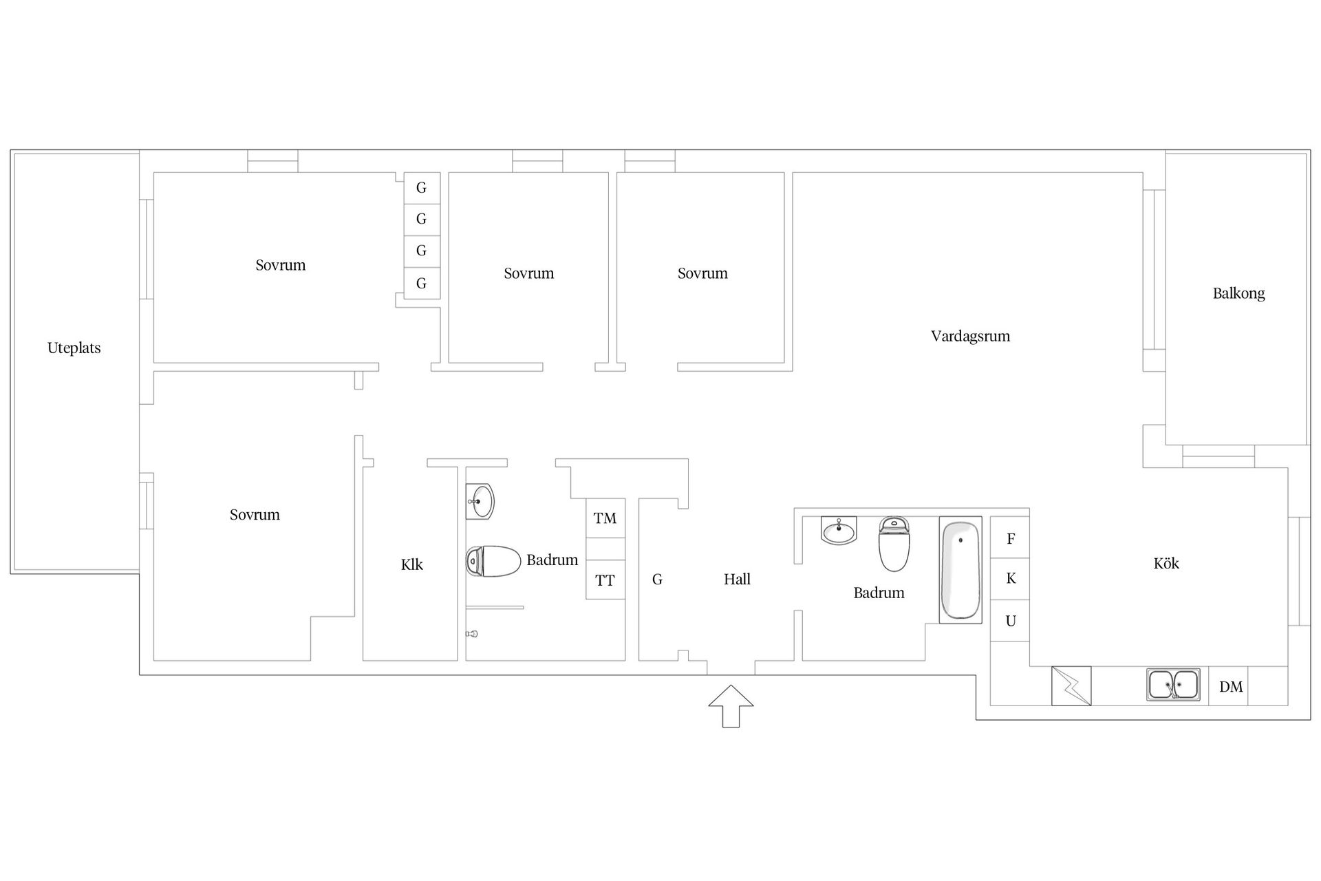
Lägenhet5 rok117

Fakta

  • BoendetypLägenhet
  • Rum5 rok
  • Boyta117
  • UpplåtelseformBostadsrätt
  • Våning 0 av 4
  • HissJa
  • Månadsavgift6 784 kr

Beskrivning

Soligt mot parken

Välkommen till ett ljust och rymligt hem med genomtänkt planlösning och öppna sociala ytor. Vardagsrummet med öppen koppling till köket blir hemmets naturliga hjärta och erbjuder gott om plats för både soffgrupp och matbord, med generöst ljusinsläpp från stora fönster. Köket är modernt och funktionellt med vitvaror från Siemens och rikligt med förvaring, samtidigt som ett stort matbord med utsikt över den grönskande parken skapar en trivsam samlingsplats för familj och vänner.

Bostaden erbjuder fyra rymliga sovrum, två helkaklade badrum med golvvärme och en praktisk klädkammare med Elfa-garderober. Från vardagsrummet nås en solig balkong i sydvästläge och via ett sovrum finns en lummig uteplats – perfekta platser för både avkoppling och sociala stunder utomhus. Med stilrena färger, generösa ytor och smarta förvaringslösningar erbjuder detta hem både komfort, funktion och trivsel i en harmonisk miljö. Välkommen.

Visningar

Mäklare

Thomas Kihlman
Ansvarig mäklare
AwardBadge
Årets Mäklarkedja 2024
Vinnare av Boneo Awards
Bjurfors Huddinge/Älvsjö
Sjödalsvägen 19A, Huddinge
Agency
Agency
AwardBadge
Årets Mäklarkedja 2024
Vinnare av Boneo Awards
banner

Planritning

Tjänster

Bolån

Räkna på bolån för Johan skyttes väg 384
nordeaAlltid personlig ränta på ditt bolånRäkna här
Jämför bolån från olika banker!
lanekollPersonlig hjälp hela vägen hem!Räkna direkt!
Bostaden du tittar på matchar med 110 personer i BoneoMatch™

Hur många vill köpa din bostad?

Vi matchar din bostad mot över 500 000 köpsugna personer som går på visningar just nu.

Loading...