linkedin pixel
Fullskärm
Fullskärm
externalLinkIconAlla bilder
På G!
Först på Boneo
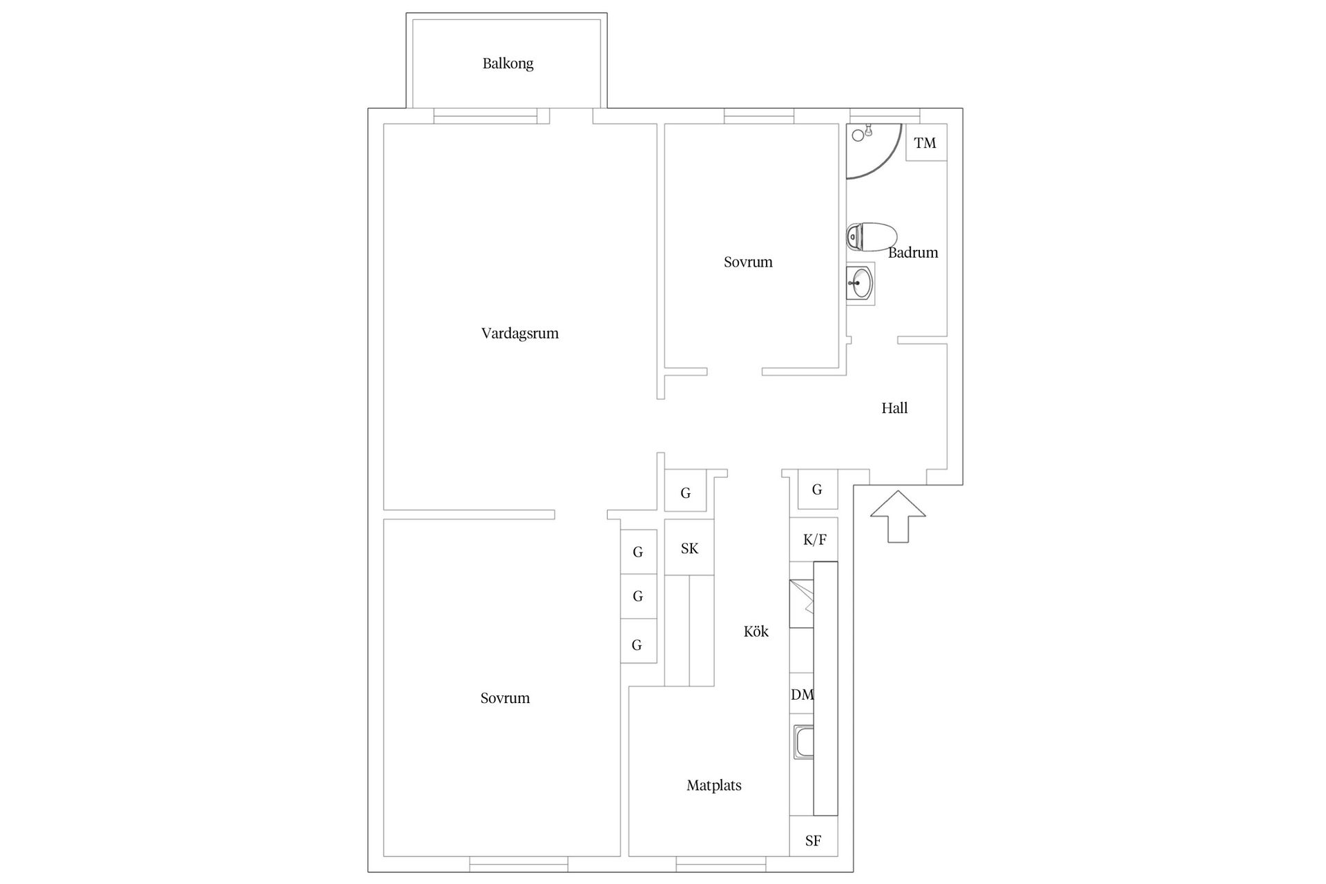
Lägenhet3 rok62

Fakta om bostaden

  • BoendetypLägenhet
  • Antal rum3 rok
  • Boyta62
  • UpplåtelseformBostadsrätt
  • Byggnadsår1955
  • Våning 2 av 3
  • HissNej
  • Avgift till föreningen5 178 kr/mån

Beskrivning

Välkommen till ett charmfullt och väldisponerat hem i lugna Björkekärr, där tidstypiska detaljer och vackra tapeter möter moderna ytskikt och en genomtänkt planlösning. Bostaden erbjuder rymliga rum, vacker parkett och generösa fönster som skapar en trivsam och hemtrevlig atmosfär. Här finns plats för både sociala sammankomster och avkopplande stunder, med balkong i ostört läge som bjuder på sol och vy över grönska.

Här bor ni i en stor och välskött förening med bastu, träningslokal, övernattningsrum och goda parkeringsmöjligheter. Området erbjuder närhet till grönskande naturområden och utmärkta kommunikationer till centrala Göteborg. Ett mycket trivsamt boende med alla förutsättningar för vardagskomfort och fritid. I närområdet finns matbutik, restaurang, konditori och vårdcentral. Från Stabbetorget går buss 17 till centrala Göteborg och på 15 minuters promenad nås Östra Sjukhuset där spårvagn 1 och 5 trafikerar. Härifrån når ni även Härlanda Tjärn med natursköna strövområden, motionsspår och badplats, perfekt för både avkoppling och aktiv fritid.

Kontakta ansvarig mäklare vid intresse!
På G!
Först på Boneo
Björkekärr, Göteborg

Stabbegatan 18

Lägenhet3 rok62

Mäklare

Mäklare

AwardBadge
Årets Mäklarkontor 2024Årets Mäklarkedja 2024, 2025
Vinnare av Boneo Awards
banner

Tjänster

Bolån

Räkna på bolån för Stabbegatan 18
nordeaAlltid personlig ränta på ditt bolånRäkna här
Jämför bolån från olika banker!
lanekollPersonlig hjälp hela vägen hem!Räkna direkt!
Bostaden du tittar på matchar med 2 462 personer i BoneoMatch™

Hur många vill köpa din bostad?

Vi matchar din bostad mot över 500 000 köpsugna personer som går på visningar just nu.

Loading...
På G!
Först på Boneo
Björkekärr, Göteborg

Stabbegatan 18

Lägenhet3 rok62

Mäklare

Mäklare

AwardBadge
Årets Mäklarkontor 2024Årets Mäklarkedja 2024, 2025
Vinnare av Boneo Awards