linkedin pixel
Fullskärm
Fullskärm
externalLinkIconAlla bilder
På G!
Först på Boneo
Lägenhet1,5 rok31,50

Fakta om bostaden

  • BoendetypLägenhet
  • Antal rum1,5 rok
  • Boyta31,50
  • UpplåtelseformBostadsrätt
  • Byggnadsår1948
  • Våning 3 av 3
  • HissNej
  • Avgift till föreningen2 172 kr/mån

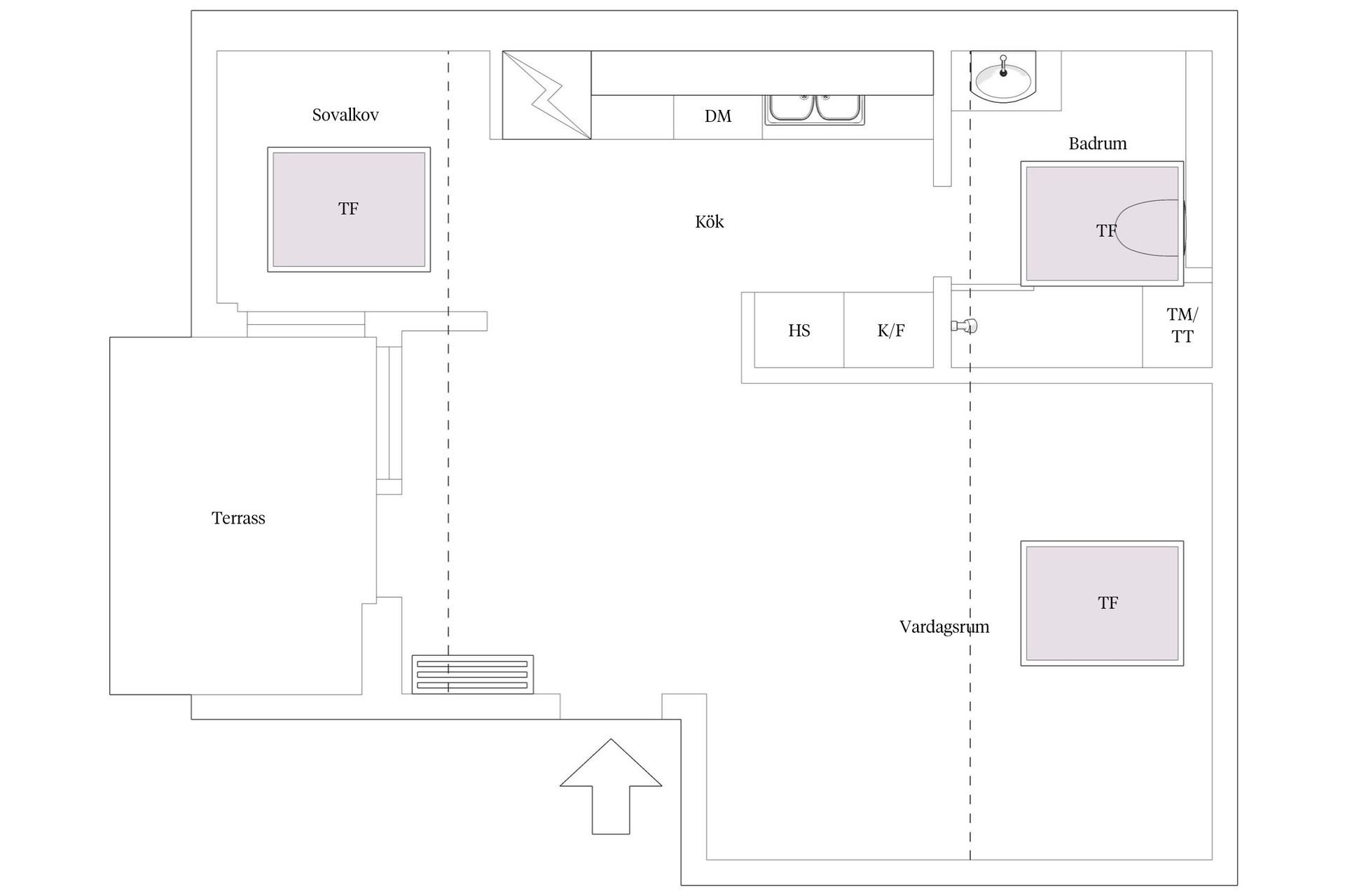
Beskrivning

Nyproducerad takvåning med terrass erbjuds på Sehlstedtsgatan 9A! Här finner du en kvadratsmart bostad om 31,5 kvm med charmig vindskaraktär där takhöjd upp till nock förstärker rymden och flertal takfönster skänker ett generöst ljus. Bostaden präglas av enhetligt ljust parkettgolv och genomgående hög boendestandard med modern komfort. Köket kommer från kvalitétsstämplade Marbodal i stilrent utförande med all utrustning för vardagen. Köket vävs samman med ett lättmöblerad vardagsrum med plats för soffgrupp med tillhörande möblemang. Sällskapsytorna förlängs av fönsterpartier från golv till tak som leder ut dig till takterrassen i västerläge där du kan njuta av sol från mitt på dagen till kvällning och eftersom du bor högst upp får du en insynsfri utsikt ut över omgivningen. Vidare har du en sovalkov med plats för säng och badrummet är helkaklat i smakfullt utförande, utrustat med kombinerad tvätt- och torkmaskin samt lyxig golvvärme. Till bostaden hör ett källarförråd.

Här bor du i en välmående förening med centralt och idylliskt läge i ett lummigt område med trevlig blandning av grönområden, villor och flerfamiljshus. Via föreningen har du tillgång till grönytor med grillmöjligheter och du når snabbt till skogsområden med motionsslingor med mera. Serviceutbud finns runt knuten och på några minuters promenad når du goda kommunikationer vid antingen Wiselgrenplatsen eller Vågmästareplatsen som snabbt tar dig vidare in till Nordstan. För den bilburne har föreningen p-platser och det finns det gratis parkeringsplatser på gatan. Vidare ligger Backaplan med all tänkbar handel på behändigt avstånd.

Kontakta mäklaren för mer information.
På G!
Först på Boneo
Centrala Hisingen, Göteborg

Sehlstedtsgatan 9A

Lägenhet1,5 rok31,50

Mäklare

Mäklare

AwardBadge
Årets Mäklarkedja 2024, 2025
Vinnare av Boneo Awards
banner

Tjänster

Bolån

Räkna på bolån för Sehlstedtsgatan 9A
nordeaAlltid personlig ränta på ditt bolånRäkna här
Jämför bolån från olika banker!
lanekollPersonlig hjälp hela vägen hem!Räkna direkt!
Bostaden du tittar på matchar med 706 personer i BoneoMatch™

Hur många vill köpa din bostad?

Vi matchar din bostad mot över 500 000 köpsugna personer som går på visningar just nu.

Loading...
På G!
Först på Boneo
Centrala Hisingen, Göteborg

Sehlstedtsgatan 9A

Lägenhet1,5 rok31,50

Mäklare

Mäklare

AwardBadge
Årets Mäklarkedja 2024, 2025
Vinnare av Boneo Awards