linkedin pixel
Tillbaka till sökresultatet
Fullskärm
Fullskärm
Tillbaka till sökresultatet
externalLinkIconAlla bilder
Budgivning pågår
Visa bud
Lägenhet5 rok156

Fakta om bostaden

  • Pris4 295 000 kr
  • BoendetypLägenhet
  • Antal rum5 rok
  • Boyta156
  • UpplåtelseformBostadsrätt
  • Kvadratmeterpris (kr/m²) 27 532 kr/m²
  • Byggnadsår1910
  • Dagar på Boneodecember 2025
  • Våning 2 av 3
  • HissNej
  • Avgift till föreningen8 709 kr/mån

Beskrivning

Sekelskiftescharm!

Stilsäker, pampig och trivsam är tre ord av många som beskriver denna fantastiska våning. Genom två balkonger, generös takhöjd och välbevarade stuckaturer andas våningen sekelskiftescharm.

Hemmet är en vacker sekelskiftespärla om generösa 156 kvm och att bo här är något alldeles särskilt. De klassiska detaljerna som takrosetter, djupa fönsternischer, stuckaturer och tidstypiska snickerier skapar en karaktär och värme som inte går att återskapa i nyproduktion. Det är den där känslan av gedigen kvalitet, hantverk och själ som gör sekelskiftesbostäder så eftertraktade och just denna lägenhet är ett utmärkt exempel på det.

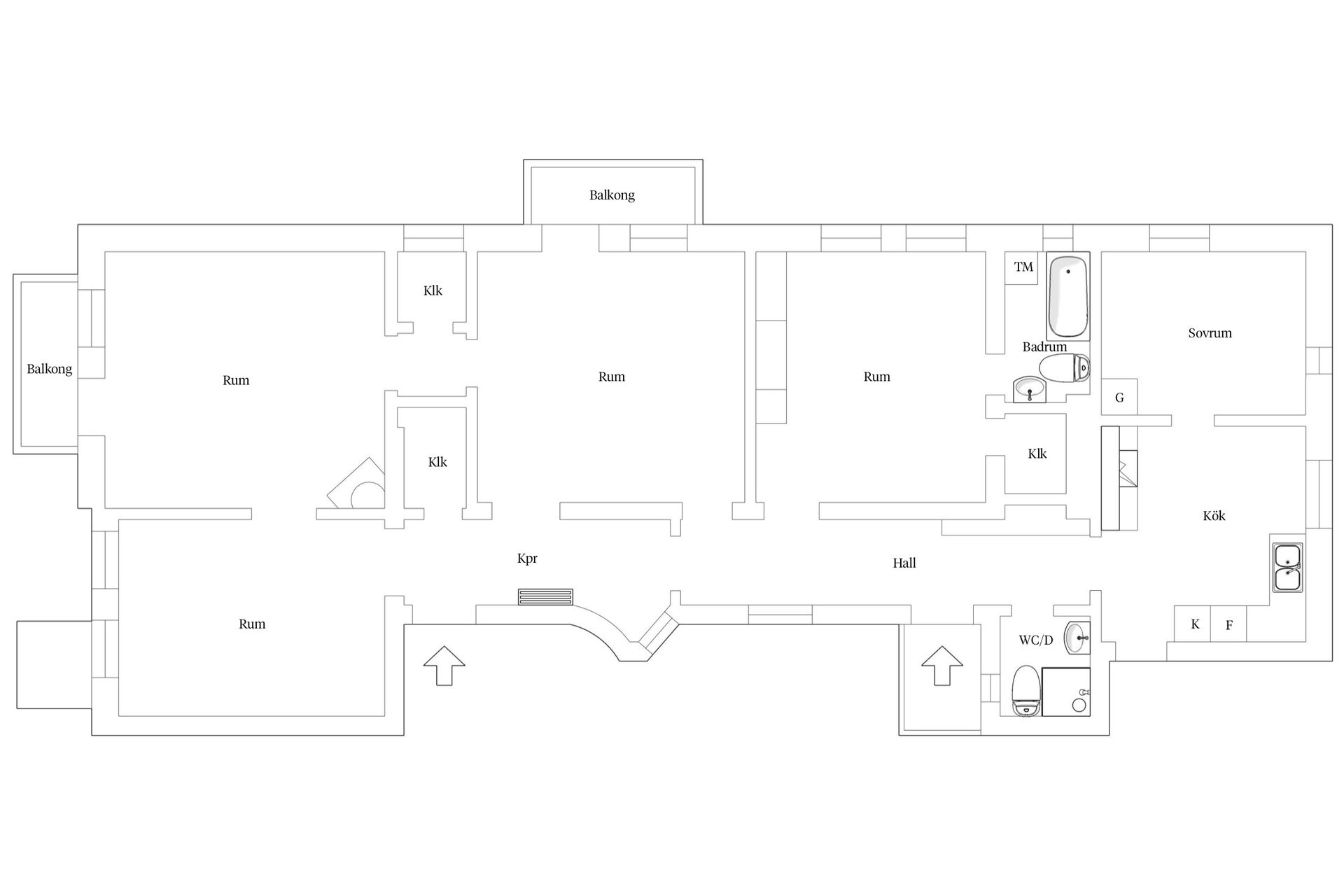
Planlösningen omfattar fem rum som du fritt kan disponera och här finns möjlighet till flera sovrum, ett ståtligt vardagsrum samt ett generöst matsalsrum som bjuder in till både vardag och fest. Våningen erbjuder dessutom två badrum, två praktiska klädkammare och inte minst två balkonger som förlänger boendet ytterligare.

Här bor du i ett hem där historien gör sig påmind i varje vrå, samtidigt som komforten är anpassad efter dagens livsstil. Varmt välkommen att kontakta fastighetsmäklare Saga Bredahl för mer information!
Budgivning pågår
Visa bud
Olympia, Helsingborg

Mellersta Stenbocksgatan 5

Lägenhet5 rok156

Mäklare

Mäklare

AwardBadge
Årets Mäklarkedja 2024, 2025
Vinnare av Boneo Awards
banner

Tjänster

Bolån

Räkna på bolån för Mellersta Stenbocksgatan 5
nordeaAlltid personlig ränta på ditt bolånRäkna här
Jämför bolån från olika banker!
lanekollPersonlig hjälp hela vägen hem!Räkna direkt!
Bostaden du tittar på matchar med 123 personer i BoneoMatch™

Hur många vill köpa din bostad?

Vi matchar din bostad mot över 500 000 köpsugna personer som går på visningar just nu.

Loading...
Budgivning pågår
Visa bud
Olympia, Helsingborg

Mellersta Stenbocksgatan 5

Lägenhet5 rok156

Mäklare

Mäklare

AwardBadge
Årets Mäklarkedja 2024, 2025
Vinnare av Boneo Awards