linkedin pixel
Tillbaka till sökresultatet
externalLinkIconAlla bilder
På G!
Först på Boneo
Veddige, Varberg

Villagatan 38

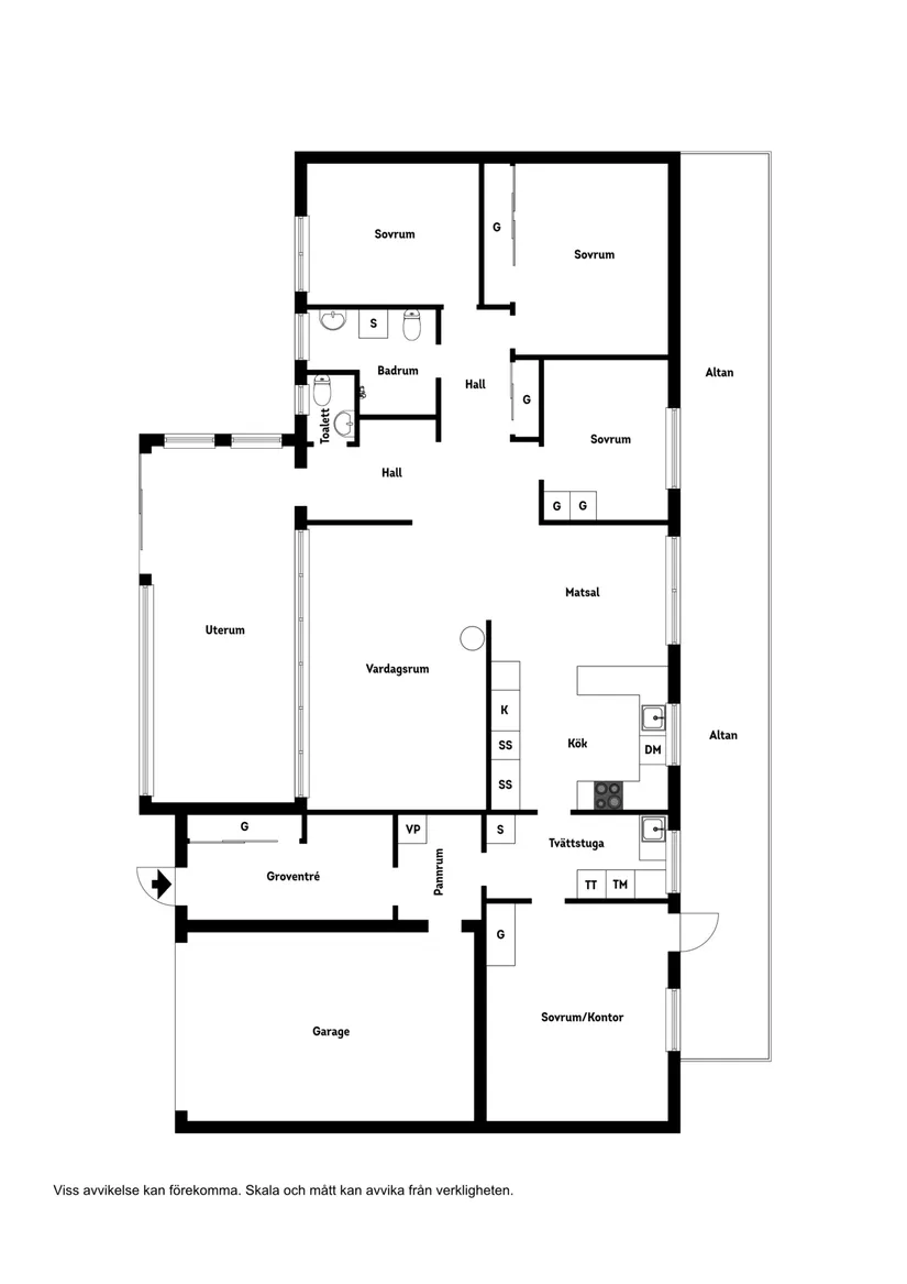
Villa5 rok101 + 61911 m² tomt

Fakta om bostaden

  • Pris3 250 000 kr
  • BoendetypVilla
  • Antal rum5 rok
  • Boyta101
  • UpplåtelseformFriköpt
  • Biarea61
  • Tomtarea911 m²
  • Kvadratmeterpris (kr/m²) 32 178 kr/m²
  • Byggnadsår1969

Beskrivning

Välkommen till gemytliga Veddige och högt belägna Villagatan. Här bor man familjevänligt med naturen inpå knuten men med alla bekvämligheter i närheten.
Huset är ett välskött hus i ett plan med stora sociala ytor och fina ljusinsläpp. Köket ligger i anslutning till det stora vardagsrummet och rymmer också en trevlig matplats.
Husets fyra sovrum är väl tilltagna så här bor även den stora familjen bekvämt.

Med sitt läge på en av Veddiges absolut trevligaste gator och läge intill naturområde där du hittar både bär och svamp samt möjlighet till härliga promenader eller löprundor är det svårt att finna något trevligare ställe att bo på. Gatan präglas av fin gemenskap och en hjälpande hand är aldrig långt borta för den som behöver det.

Varbergs centrum nås på ca 15 minuter och närhet till bad i både sjöar och hav ligger nära till hands.

I Veddige finns ett flertal skolor och förskolor, mataffär, idrottshall, ishall, bank och vårdcentral.

Detta fina hus kommer snart ut till försäljning. Välkommen med intresseanmälan redan nu!

Huset kommer att besiktigas lite längre fram.
På G!
Först på Boneo
Villa5 rok101 + 61911 m² tomt

Mäklare

banner

Tjänster

Bolån

Räkna på bolån för Villagatan 38
nordeaAlltid personlig ränta på ditt bolånRäkna här
Jämför bolån från olika banker!
lanekollPersonlig hjälp hela vägen hem!Räkna direkt!
Bostaden du tittar på matchar med 595 personer i BoneoMatch™

Hur många vill köpa din bostad?

Vi matchar din bostad mot över 500 000 köpsugna personer som går på visningar just nu.

Loading...