linkedin pixel
Tillbaka till sökresultatet
Fullskärm
Fullskärm
Tillbaka till sökresultatet
externalLinkIconAlla bilder
På G!
Först på Boneo
Lägenhet4 rok89

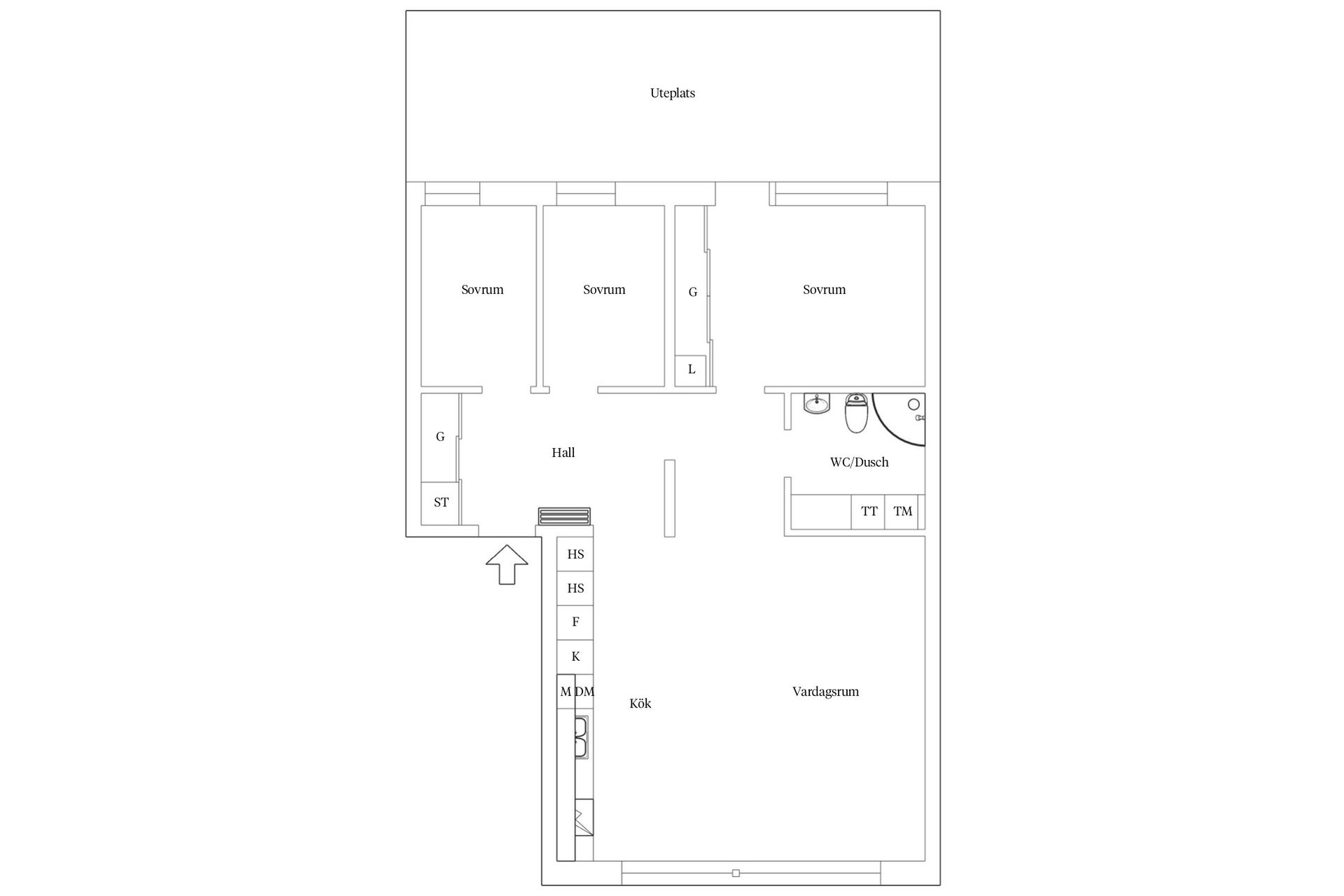
Fakta om bostaden

  • BoendetypLägenhet
  • Antal rum4 rok
  • Boyta89
  • UpplåtelseformBostadsrätt
  • Byggnadsår2020
  • Våning 1 av 4
  • HissJa
  • Avgift till föreningen5 865 kr/mån

Beskrivning

Här finns en fyrarummare med ett utsökt solläge och generösa ytor både inne och ute, perfekt för dig som söker ett bekvämt och kvalitativt boende på en attraktiv cityadress. Den öppna och luftiga planlösningen skapar en inbjudande helhet med fint ljusinsläpp och väl tilltagna sällskapsytor. Den stora uteplatsen i söderläge blir hemmets naturliga samlingspunkt under årets varmare månader och erbjuder gott om plats för både matgrupp, loungemöbler och planteringar.

Bostaden präglas av stilrena ytskikt och en genomgående god standard i såväl kök som badrum. Planlösningen är genomtänkt med flera sovrum, god förvaring och flexibla ytor som passar både familjeliv och umgänge. Här kan du flytta rakt in utan att behöva ta hänsyn till omfattande renoveringar eller underhåll.

Läget på Kålgården är svårslaget. Här bor du med stadens utbud precis utanför dörren och med gångavstånd till service, restauranger, grönområden samt sjö och strand. Området är välkänt för sin trivsamhet och sitt bekväma citynära läge där det mesta nås till fots.

Fastigheten tillhör en omtyckt bostadsrättsförening med moderna och tilltalande faciliteter. Som boende har du tillgång till bland annat en gemensam takterrass, underjordiskt garage, bastu, övernattningslägenhet samt en grön och välskött innergård med sittplatser och grillmöjligheter.

Välkommen till Odengatan 33 och ett hem som på ett naturligt sätt kombinerar generösa ytor, utsökt solläge och hög boendekvalitet mitt i Jönköping.
På G!
Först på Boneo
Kålgården, Jönköping

Odengatan 30

Lägenhet4 rok89

Mäklare

Mäklare

AwardBadge
Årets Mäklarkedja 2024, 2025
Vinnare av Boneo Awards
banner

Tjänster

Bolån

Räkna på bolån för Odengatan 30
nordeaAlltid personlig ränta på ditt bolånRäkna här
Jämför bolån från olika banker!
lanekollPersonlig hjälp hela vägen hem!Räkna direkt!
Bostaden du tittar på matchar med 187 personer i BoneoMatch™

Hur många vill köpa din bostad?

Vi matchar din bostad mot över 500 000 köpsugna personer som går på visningar just nu.

Loading...
På G!
Först på Boneo
Kålgården, Jönköping

Odengatan 30

Lägenhet4 rok89

Mäklare

Mäklare

AwardBadge
Årets Mäklarkedja 2024, 2025
Vinnare av Boneo Awards