linkedin pixel
Fullskärm
Fullskärm
externalLinkIconAlla bilder
Lägenhet2 rok41,50

Fakta om bostaden

  • Pris2 495 000 kr
  • BoendetypLägenhet
  • Antal rum2 rok
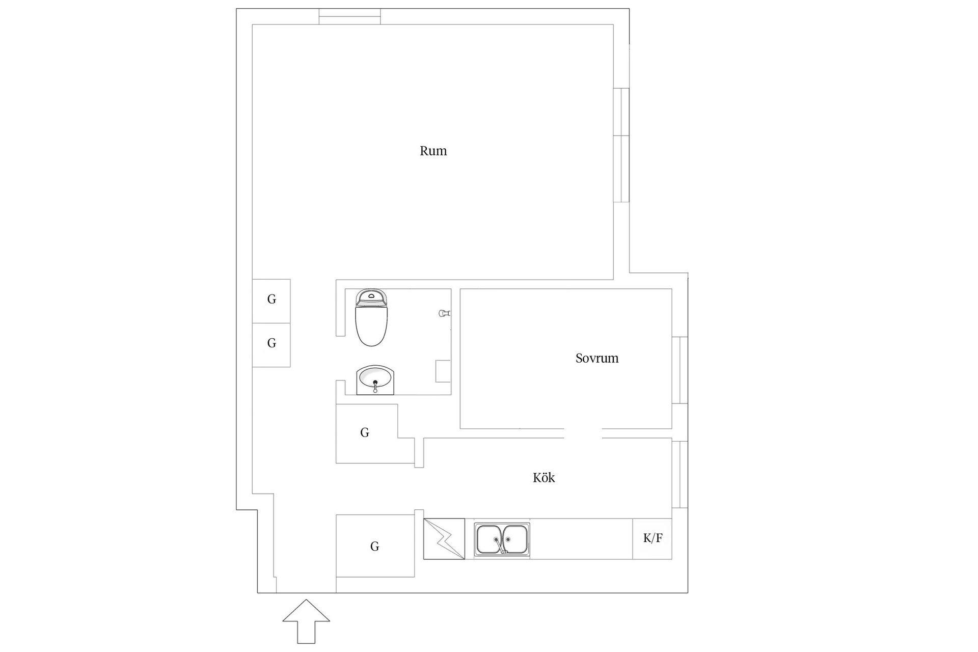
  • Boyta41,50
  • UpplåtelseformBostadsrätt
  • Kvadratmeterpris (kr/m²) 60 120 kr/m²
  • Byggnadsår1944
  • Dagar på Boneojanuari 2026
  • Våning 0
  • Avgift till föreningen2 636 kr/mån

Beskrivning

- Belägen på en lugn återvändsgränd
- Fönster i två väderstreck

På lugn återvändsgränd, i attraktivt gavelläge, finner du denna trivsamma tvåa om 41,5 kvm. Här erbjuds ett hem med generöst ljusinsläpp tack vare fönster i flera väderstreck och en smart planlösning som tar vara på varje kvadratmeter. Bostaden är belägen i en stabil och välskött förening med låg avgift, vilket ger ett ekonomiskt fördelaktigt och tryggt boende. Det stillsamma läget kombineras perfekt med närheten till stadens puls – Sundbybergs rika utbud av restauranger, caféer, service och kommunikationer nås på bara några minuter.

Här bor du i ett ultimat läge med direkt närhet till Sundbyberg och dess utbud av butiker, restauranger, caféer, gym, välsorterade matbutiker och apotek med mycket mera. Du har även helt oslagbara kommunikationsmöjligheter i form av tunnelbanans blåa linje, tvärbana, flertalet busslinjer och pendeltåg endast ca 10 minuters promenad från bostaden. Härifrån tar du dig till Stockholms city på endast 5 minuter med pendeltåget (Odenplan). En kort promenad från bostaden går även busslinje 113 som tar dig till Sundbybergs centrum på 2-3 minuter och även busslinje 112 som ansluter till Alvik och tunnelbanans gröna linje. På promenadavstånd ligger Bromma Flygplats och gallerian Bromma Blocks som har ett stort utbud av butiker och restauranger.

Varmt välkommen på visning!
Bromma - Mariehäll, Stockholm

Klintbacken 1

Lägenhet2 rok41,50

Mäklare

Mäklare

AwardBadge
Årets Mäklarkedja 2024, 2025
Vinnare av Boneo Awards
banner

Tjänster

Bolån

Räkna på bolån för Klintbacken 1
nordeaAlltid personlig ränta på ditt bolånRäkna här
Jämför bolån från olika banker!
lanekollPersonlig hjälp hela vägen hem!Räkna direkt!
Bostaden du tittar på matchar med 1 101 personer i BoneoMatch™

Hur många vill köpa din bostad?

Vi matchar din bostad mot över 500 000 köpsugna personer som går på visningar just nu.

Loading...
Bromma - Mariehäll, Stockholm

Klintbacken 1

Lägenhet2 rok41,50

Mäklare

Mäklare

AwardBadge
Årets Mäklarkedja 2024, 2025
Vinnare av Boneo Awards