linkedin pixel
Fullskärm
Fullskärm
På G!
Först på Boneo
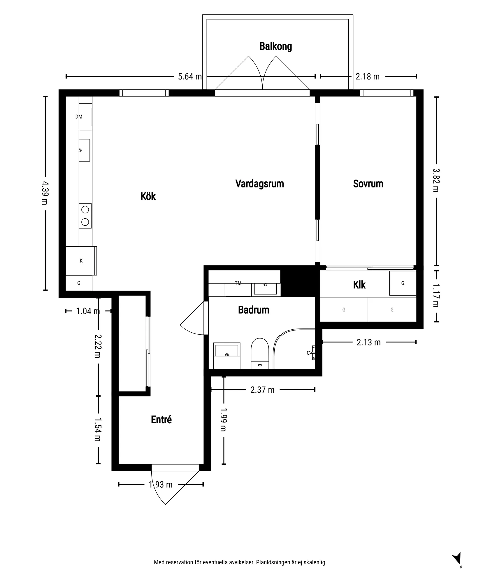
Lägenhet2 rok49

Fakta om bostaden

  • BoendetypLägenhet
  • Antal rum2 rok
  • Boyta49
  • UpplåtelseformBostadsrätt
  • Byggnadsår2020
  • Våning 9 av 9
  • HissJa
  • Avgift till föreningen3 533 kr/mån

Beskrivning

Högst upp i huset finner ni denna lyxiga och moderna lägenhet med stilfull interiör. Lägenheten är luftig och har ett ljuvligt ljusinsläpp från lägenhetens balkong med dörrar från tak till golv. Här erbjuds solljus från lunchtid till sen kväll.

Inredningen är mycket smakfull och tilltalande och den öppna planlösningen mellan kök och vardagsrum gör lägenhetens kvadratmetrar väldisponerade. Köket är inrett med släta vita köksluckor från Marbodal och erbjuder både gott om arbetsyta och förvaring.

Den smarta sovrumsdesignen i norsk tappning ger plats för såväl dubbelsäng, walk in garderob samt plats för en kontorsplats, även två om så önskas. Walk in garderoben har uppgraderats till lyxiga lådor och hyllor i ekfanér där varje kvadratmeter nyttjats till fullo på ett stilfullt sätt.

Rymligt badrum prytt med stora vita kakelplattor på väggarna och ljusgrått klinkergolv. Här finns kombinerad maskin för tvätt och tork och plats bredvid för tvättsortering.

Hallen erbjuder både utrymme för upphängning av ytterkläder direkt vid ingång och en stor garderob i full höjd för maximal förvaring utrustad med kvadratsmarta skjutdörrar.

Som extra bekvämlighet är hela lägenheten utrustad med Plejd, vilket ger en modern och flexibel ljusstyrning i alla rum.

På plan 2 finner ni den välskötta föreningens stora gemensamma terrass utrustad med gasolgrill och orangeri som fritt kan nyttjas av medlemmarna.

Lägenheten är belägen i nära anslutning till populära skogssjön Härlanda Tjärn och Skatås motionscentral i Delsjöområdets naturreservat. Boendet är perfekt för dig som vill ha nära till motion och friluftsliv. Här tar du dig till centrala Göteborg med stadsbuss 17 utanför dörren, svart express från Backvägen eller varför inte spårvagnsalternativ från Östra Sjukhuset en kort promenad bort.

Kontakta ansvarig mäklare Rebaz Darwesh på 073-518 88 62 för mer information.

Visningar

På G!
Först på Boneo
Björkekärr, Göteborg

Smörslätten 30

Lägenhet2 rok49

Mäklare

banner

Tjänster

Bolån

Räkna på bolån för Smörslätten 30
nordeaAlltid personlig ränta på ditt bolånRäkna här
Jämför bolån från olika banker!
lanekollPersonlig hjälp hela vägen hem!Räkna direkt!
Bostaden du tittar på matchar med 2 386 personer i BoneoMatch™

Hur många vill köpa din bostad?

Vi matchar din bostad mot över 500 000 köpsugna personer som går på visningar just nu.

Loading...
På G!
Först på Boneo
Björkekärr, Göteborg

Smörslätten 30

Lägenhet2 rok49

Mäklare