linkedin pixel
Fullskärm
Fullskärm
externalLinkIconAlla bilder
Lägenhet2 rok68,50

Fakta om bostaden

  • Pris2 250 000 kr
  • BoendetypLägenhet
  • Antal rum2 rok
  • Boyta68,50
  • UpplåtelseformBostadsrätt
  • Kvadratmeterpris (kr/m²) 32 847 kr/m²
  • Dagar på Boneofebruari 2026
  • Våning 2 av 10
  • HissJa
  • Avgift till föreningen5 374 kr/mån

Beskrivning

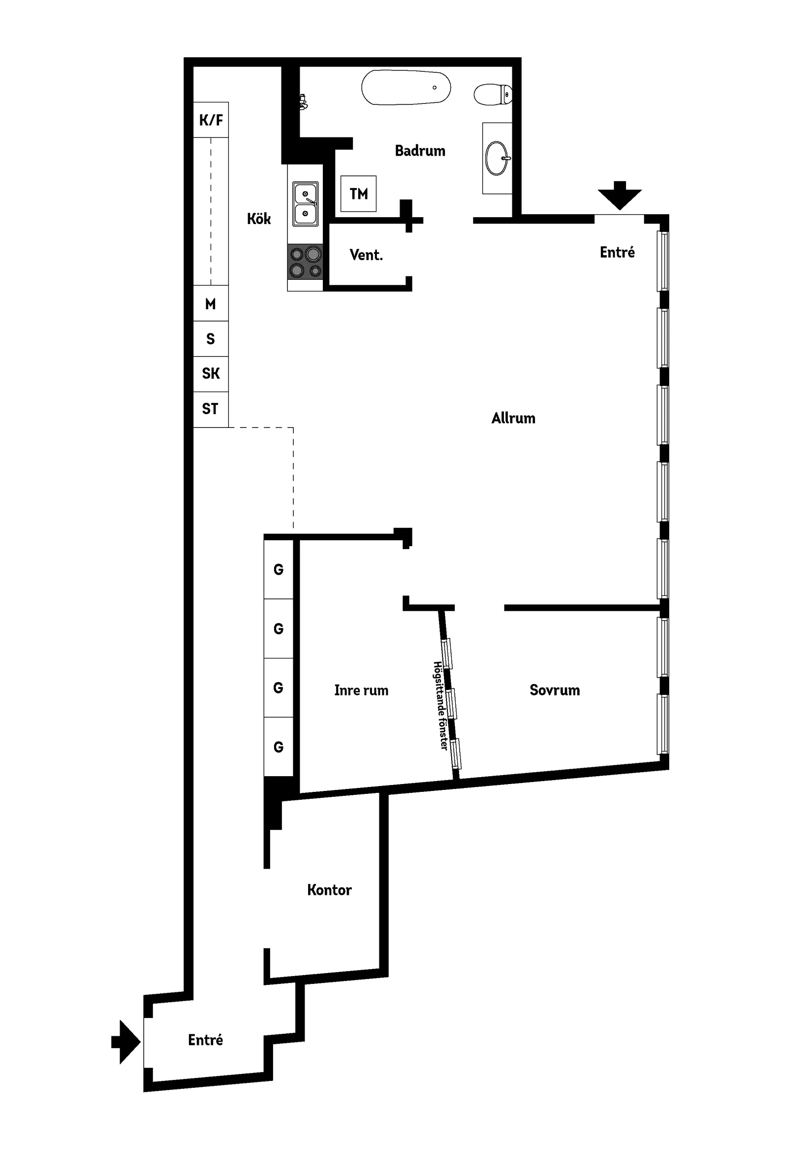
På andra våningen med hiss till våningsplanet ligger denna fint renoverade lägenhet med unik planlösning. Den totala ytan uppgår till 101 kvm, 68,5 kvm av dessa utgör boarea. Lägenheten har två entréer. Den ena med spiraltrappa från husets framsida eller från det ena parkeringsgaraget. Den andra entrén är via trapphuset försett med hiss. Detta gör att lägenheten som är handikappanpassad också blir mycket lättillgänglig. Mellan köket, entrén och allrummet är planlösningen öppen och de stora fönsterpartierna ger ett rikligt ljusinsläpp. Utsikten är trivsam och när man blickar ut mellan takåsarna och grönskan utanför fönsterna kan man skymta havets glimrande och hamninloppet. I allrummet finns gott om utrymme för både soffhörna och matplats.

I närtid har bostaden förädlats genom flera påkostade renoveringsåtgärder. Bland annat har elcentralen och all el bytts ut. Belysningen kan styras via lampknapp eller mobilapp. Även ventilationssystemet i lägenheten har bytts ut och ett teknikrum har byggts för att gömma installationerna samtidigt som de lämnas lättåtkomligt. Den mest påkostade och tveklöst mest standardhöjande åtgärden är badrumsrenoveringen. Badrummet är exklusivt utfört med påkostade materialval, helkaklade väggar och matchande klinkergolv med golvvärme. Här finns både badkar och separat duschhörna – för dig som inte vill kompromissa. Vidare erbjuds ett väl tilltaget tvättställ med kommod, tvättmaskin samt förberett utrymme för torktumlare. Intill duschhörnan sitter en vattenburen handdukstork som bidrar till både komfort och funktion. Även köket är fint med vita skåp, luckor och lådfronter. I de många skåpen finns gott om förvaringsutrymmen, även för skafferivaror och städutrustning. Överskåpen med vitrinskåpsluckor ger en elegant inramning och låter det finare porslinet komma till sin rätt. Ovanför spisen sitter en ny och påkostad kolfilterfläkt av hög kvalitet.

I lägenheten finns tre stycken rum. Sovrummet ligger intill allrummet med fönster mot husets framsida. Här finns gott om utrymme för dubbelsäng. Innanför sovrummet ligger ett inre rum med högsittande fönster mot sovrummet som bidrar med ljusinsläpp. I anslutning till entrén från trapphuset finns ett kontor med dubbeldörrar som kan användas som en mysig sovalkov, hemmakontor eller som ett praktiskt förråd. I korridoren mot köket finns generösa förvaringsutrymmen i de många garderoberna som sitter infällda längst högra väggen.

På våning 10 ligger den gemensamma takterrassen och bastun för förenings medlemmar samt en intilliggande övernattningslägenhet som kan hyras dygnsvis. På terrassen kan man samlas under sommarhalvåret och njuta av tillvaron utan insyn och blicka ut över rörelsen i staden och skärgårdsbåtarna och färjorna som rör sig in och ut ur hamninloppet.

På Månberget bor man med ett centralt läge mellan Centrum och norra delen av Nynäshamn i en stabil och populär bostadsrättsförening. På några minuter promenerar man ned till Centrum där det finns mysiga kaféer, butiker, apotek, systembolaget och annan service. Intill ligger Nynäshamns gästhamn med fiskrökeri, flera fina restauranger och en underbar skärgårdsmiljö. Här finns även Nynäshamns station med tåg och bussar som rör sig inom kommunen och mot Stockholm. Från Månberget är det också gångavstånd till flera välsorterade matvarubutiker. Detta är ett boende ni inte vill missa! Anmäl ditt intresse redan idag!

Visningar

Centrala Nynäshamn, Nynäshamn

Vikingavägen 15

Lägenhet2 rok68,50

Mäklare

Tjänster

Bolån

Räkna på bolån för Vikingavägen 15
nordeaAlltid personlig ränta på ditt bolånRäkna här
Jämför bolån från olika banker!
lanekollPersonlig hjälp hela vägen hem!Räkna direkt!

Hur många vill köpa din bostad?

Med BoneoMatch™ ser du hur många som letar efter en liknande bostad i ditt område.

Läs mer
Loading...
Centrala Nynäshamn, Nynäshamn

Vikingavägen 15

Lägenhet2 rok68,50

Mäklare